Have you ever looked up at an inner city Victorian shopfront and wondered what’s going on upstairs?
Truth is, many of these residences are vacant or underutilised.
Smith Street Caretakers offered us the perfect opportunity to bring this type of building stock into the modern era: thriving business downstairs, sanctuary above.
Specialist violin sellers and repairers, tsai Design’s clients had retreated to a rundown kitchen, living, and bedroom above their Collingwood shop for 15 years.
A veritable time capsule, there were few creature comforts, and midnight treks downstairs to the bathroom were gruelling in winter.
tsai Design’s plan was to hero simple, modern conveniences as well as some hidden pleasures.
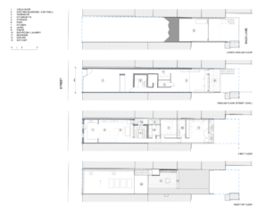
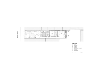
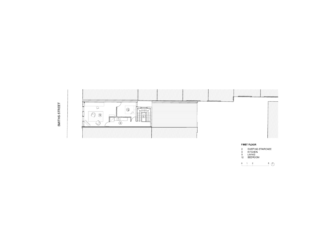
Typical of these shopfront terraces, the floor plan was long, dark and narrow – just 4.5m across at its widest point.
Bringing light to the heart of the home would be central to the new design’s success. To address the apartments shading the full length of the building to the north, tsai Design overhauled the central stairwell, introducing a translucent roof that would flood the living space with light and warmth.
It is rare for buildings of this type to enjoy access to the outdoors, so tsai Design added a green wall and transparent roofing to the internal stairs, making it feel more like a well-lit courtyard than a threshold between business and home.
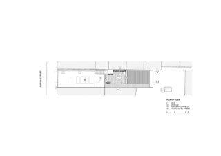
tsai Design planned for three outdoor decks where there had been none, too.
By adding a second set of stairs, they made an entertainer’s roof deck possible, and a courtyard deck off the guest bedroom will double as a drying space for laundry.
Finally, the main bedroom deck is the perfect sunny perch for a morning coffee.
Warmth defines the new kitchen and living space, where timber shelving and cork flooring sit well with the new heating.
No more miserable winters!
Past the stairwell, a new main bedroom with skylit ensuite and second bedroom caters for the couple and any guests.
Once lacklustre, the upstairs of this building now capitalises on this great property.
It was satisfying for the tsai Design team to see how a heritage renewal could bring their clients joy while adding life to one of Melbourne’s busiest shopping strips.
Project Details
Project size – 230 m2
Site area – 150 m2
Completion date – 2019
Building levels – 3
Project Team
Architecture
Tsai Design
Dimly-lit terraces. Busy shops with under-utilised first floor residences. Family homes that do little to support a life with kids. Tsai Design challenges these buildings to step up: to work harder; to make better use of the spaces they occupy, and to contribute more meaningfully to their neighbourhoods.
Construction
Sustainable Homes Melbourne
Sustainable Homes Melbourne was founded as an alternative for people that care for the environment, our children’s future, and genuinely want to build a home to be proud of.
www.sustainablehomesmelbourne.com.au
Photography
Tess Kelly
Tess Kelly is a commercial photographer based in Melbourne, Australia. She specialises in architecture, interiors, and still life photography.
Photo Gallery
Click on a thumbnail image to enlarge.
Design © 2020 tsai Design. All Rights Reserved.| Images © 2020 Tess Kelly. All Rights Reserved.
Get the Builtworks Letter
In every edition of the Builtworks Letter, you’ll get the behind-the-scenes backstory as to how buildings are designed, built, and brought to life.
You’ll hear compelling stories, learn surprising ideas, meet engaging characters, and discover unique voices.































