When you own a collection of exotic supercars, you need to keep them secure.
But keeping them locked up out of sight in a far-away car warehouse is about as much fun as keeping your best wines in a climate-controlled cellar across town, your finest artwork in a hard-to-access bunker, or your finest jewelry in a safe deposit box at the bank.
Part of the joy of possessing rare, exotic, and beautiful objects of desire is to be able to admire them, feel them, and touch them.
The client for this project, an avid motor sport enthusiast, wanted to improve vehicle circulation for visitors to his residence and increase onsite storage space for his special car collection, while integrating a games/rumpus space too.
Thus, BB Garage was conceived.
Tony Lippis, Architect Director of Architects Ink in Adelaide, Australia said the design philosophy they adopted was more akin to a museum than a garage, taking cues from race car design and the function of an ‘aircraft hangar’.
With a restricted planning envelope, the design concept was inspired by a stealth bomber jet, made black and triangular here for deflecting the visual mass.
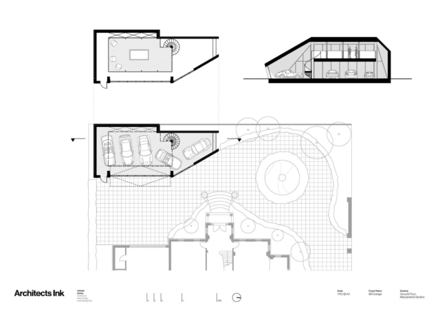
The diminishing ‘open nose cone’ building form is reminiscent of a formula one race car and houses a sixties Dino GT Ferrari plus four other highly-collectible vehicles within a double-height space.
Internally, BB Garage was designed as a single white volume to highlight the car colours.
The mezzanine level, accessed via a piston like spiral stair, is suspended from the ceiling thereby providing a column-free interior for easy car circulation and uninhibited display.
The mezzanine games room is free of walls, creating a more ambient space below, with its gloss black ceiling reflecting the cars below.
Project Details
Building size – 160 m2
Completion date – 2017
Building levels – 2
Project Team
Architecture and Interior Design
Architects Ink
Architects Ink is an award-winning Architecture and Interior Design practice established in 1996 with offices in Adelaide and Sydney, Australia. The practice specializes in high-quality residential design; new houses, alterations and additions, and multi-residential projects.
Photography
Sam Noonan
Sam Noonan is an Australian-based specialist architectural and interior photographer with 30 years of professional experience.
Project Resources
Download Project Photo Essay (PDF)
Photo Gallery
Click on a thumbnail image to enlarge.
Get the Builtworks Letter
In every edition of the Builtworks Letter, you’ll get the behind-the-scenes backstory as to how buildings are designed, built, and brought to life.
You’ll hear compelling stories, learn surprising ideas, meet engaging characters, and discover unique voices.










