Civilex, a civil contracting company, started modestly with two founders, in Victoria, Australia.
The business thrived and grew quickly.
But its internal structure was a bit creaky, with disjointed departments, teams, and sub-companies.
So as they were turning ten, Civilex planned an office move as part of a wider cultural transformation and brand renewal initiative.
They commissioned STUDIOMINT, an award-winning design practice from Melbourne, Australia to design their new office fitout.
Woven into the fabric of the design are elements that reflect the engineering and civil focus of the company, the company’s family-orientated culture, and workplace well-being.
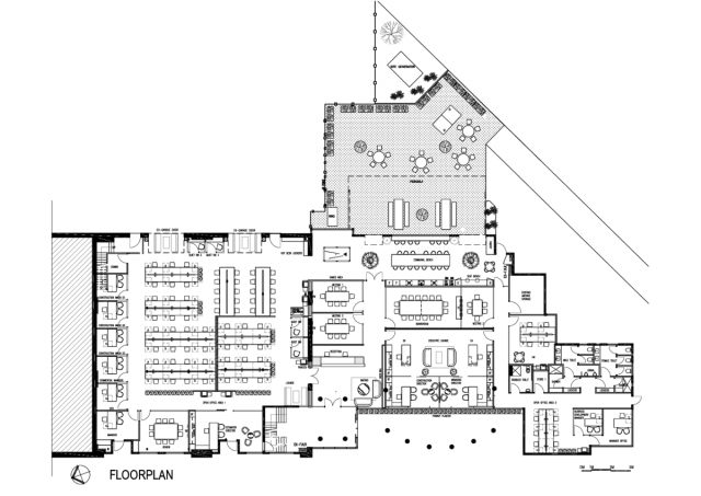
The biggest challenge STUDIOMINT faced was to bring together all members of the organisation into one shared space where all of their business processes were accommodated and building a unified cultural workplace that tapped into the company’s values.
So STUDIOMINT first sought to understand the Civilex corporate values and business workflows.
Then, during design development, they planned a central breakout hub where food is shared, informal meetings are held, and organic interactions naturally occur.
Carefully crafted zones were established to facilitate meetings, project collaboration, and deep work.
Floor to ceiling tilt doors in the open office area created an inside/outside environment. On sunny days these large doors open up completely so that the team can enjoy the feeling of being outside.
STUDIOMINT specified locally sourced materials to compliment the fitout.
Design elements like the massive green wall at the entry, a fun and vibrant kitchen and outdoor area, and a private professional business-lounge executive area deliver a great workplace experience.
Bottom line?
The staff, management, and founders now greet guests and family members with a new sense of pride as they share and show off their new workplace they call home.
Project Details
Project size – 1,095 m2
Site size – 1,095 m2
Project Budget – $2,600,000
Completion date – 2018
Building levels – 1
Project Team
Workplace Designer
STUDIOMINT
STUDIOMINT is a luxury architecture and interior design firm focusing on commercial and residential spaces. They are based in Melbourne, Australia. Their philosophy encompasses all the qualities that create a positive workplace environment: productivity, collaboration, well-being, and happiness.
Photography
Peter Clarke
Peter Clarke is an established photographer with over 20 years’ experience in his field. Over the years, Peter has gained extensive knowledge and experience documenting the built environment, as well as natural and man-made landscapes.
His collaborative approach and strong vision has seen his unique graphic style applied to a wide range of industries including architecture, construction, mining and aviation.
Peter works with a diverse range of clients including architects, design practices, government bodies, listed companies, and publishers.
Key Products Used
Furniture – Eastern Commercial Furniture (ECF)
Natural Oak, Laminate – Polytec
Venetian Render – Civilex
Cube, Echopanel – Autex
Hemlock Dressed All Round, Diamond Clad, Timber Wall Cladding – Cedar Sales
Tectonic Esker, Carpet Tile – Ontera
Photo Gallery
Click on a thumbnail image to enlarge.
Design © 2020 STUDIOMINT. All Rights Reserved.| Images © 2020 Peter Clarke. All Rights Reserved.
Get the Builtworks Letter
In every edition of the Builtworks Letter, you’ll get the behind-the-scenes backstory as to how buildings are designed, built, and brought to life.
You’ll hear compelling stories, learn surprising ideas, meet engaging characters, and discover unique voices.




















