Designed by FIGR Architecture Studio, the Courtyard House is a nod to the tradition of the Italian Palazzo and Australian courtyard house, celebrating the constant connection between outdoor and indoor spaces.
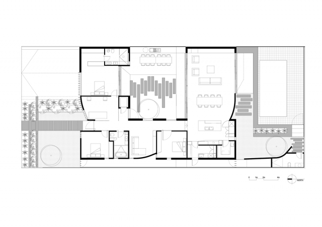
The house is divided by three landscaped zones: the front yard, the courtyard, and the rear yard.
The landscaped courtyard is the heart of the house, masking the neighbouring dwellings while at the same time revealing canopies of the surrounding trees.
This tranquil, calm space has an intimate connection with the interior spaces of the house which reveal themselves from various angles.
Further celebration of the landscape and nature is achieved through the material palette.
The internal timber batten ceiling not only guides and navigates visitors through the spaces but also creates a dramatic juxtaposition to the white concrete flooring.
Elongated brown brick was used to celebrate the exterior fabric of the surrounding context of Templestowe and a further play on the horizontal nature of the built form proportions.
A utilitarian material that sits comfortably within its context is also a reminder of this once working-class suburb.
The brick is also used inside, creating a series of colonnades that are broken by windows, allowing the light of the courtyard to spill into the corridor.
Project Details
Project Size – 280 m2
Site Size – 650 m2
Completion Date – 2016
Building Levels – 2
Project Team
Architecture
FIGR Architecture Studio
Melbourne-based Figr is an award-winning architecture studio established by Adi Atic and Michael Artemenko.
Photography
Tom Blachford
Based in Melbourne, Australia Tom Blachford specialises in Interiors, Architecture, Aerial, and Fine Art photography.
Tom has worked for architectural and design clients including DKO, Techne Architects, FIGR, Elenberg Fraser, Wood Marsh, Jackson Clement & Burrows, GOLDEN, Ritz and Ghougassian, IF architecture, Foolscap, and Studio Esteta.
Photo Gallery
Click on a thumbnail image to enlarge.
Design © 2021 FIGR Architecture Studio. All Rights Reserved.| Images © 2021 Tom Blachford. All Rights Reserved.
The Builtworks Quest
At Builtworks, we’re on a multi-year quest to document, showcase, and spotlight the best of Australia’s built environment.
That’s why we’re creating this comprehensive online archive and educational resource that showcases a diverse and eclectic range of project types and scales.
Together with showcasing older exemplars of enduring merit, we spotlight and celebrate the very best new and recent additions to Australia’s built environment.








