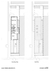
Within this Victorian era terrace house, a sequence of airy, cascading spaces responds to the natural fall of the site. The kitchen and dining area opens out onto a large, secluded north-facing courtyard garden. The stair winds past a study nook to the private accommodation upstairs.
This design achieved a 7 star energy rating. Leading ESD consultants were engaged to open up possibilities for environmentally sustainable design in the areas of water, energy and material use.
Acoustic consultants were also engaged so as to ensure that this home is a tranquil retreat within a bustling, inner-suburban neighbourhood.
Project Details
Completion date – 2015
Building levels – 2
Project Team
Architects
Julie Firkin Architects
Julie Firkin Architects was established in 2009 and specializes in designing aspirational, carefully crafted and commodious homes. Our projects can transform older dwellings, unlock the potential of constrained, inner-city or suburban sites, or embrace the natural beauty of regional and rural areas. We incorporate passive solar design principles to ensure that our designs are thermally efficient, light and comfortable.
Julie has been involved in the design and delivery of a variety of projects both in Australia and internationally, including large mixed-use projects in Melbourne and bespoke projects in Europe and the USA. Julie holds a Master in Architecture degree from Harvard University and regularly leads design studios at the University of Melbourne, Monash University and RMIT.
Builders
Camson Homes
Camson is an Australian owned, small family domestic building company that has been operating for over 40 years. Established by Peter Campbell in 1970, Camson is now driven by Wayne and Ann Maree Campbell.
Camson build, extend or renovate environmentally sustainable, individual contemporary homes that are administered by an architect or building designer, throughout urban, coastal, and rural Melbourne and throughout Queensland.
Photography
Peter Bennetts
Peter’s work regularly features in the Australian publications Architecture Australia, Artichoke, Belle, Inside, AR, Monument, inside and Vogue.
He is a frequent contributor to Wallpaper*, Frame, Mark, Dwell, Domus, Casabella and other international publications too.
His photography has appeared in numerous books including four monographs and the two volumes of the Phaidon Atlas of Contemporary World Architecture.
Peter’s architectural images have been described as having “a remarkable crystalline stillness” and he is known for his “straight-shooting” style of architectural photography, focusing on the formal, material and atmospheric qualities of a project.
Photo Gallery
Click on a thumbnail image to enlarge.
Get the Builtworks Letter
In every edition of the Builtworks Letter, you’ll get the behind-the-scenes backstory as to how buildings are designed, built, and brought to life.
You’ll hear compelling stories, learn surprising ideas, meet engaging characters, and discover unique voices.



















