Designed by Ashley Halliday Architects, the Australian Grain Technologies (AGT) Southern Crop Breeding Centre is a specialist primary industry research facility.
It is one of the largest, most advanced, and well-equipped crop breeding centres in the world.
Within this hotbed of technology, talent innovation culture, and celebrated scientific breakthroughs, AGT’s dedicated team uses new mechanical solutions, robotics, computer science, GPS, tissue culture, and the latest biological theory in their daily work.
Excited by the process of seeing scientific concepts transformed into real solutions, the AGT Centre is more than a mere landmark, image, or icon.
It is the product of dialogue between scientists, farmers, business people, and the regional community.
The Ashley Halliday Architects design team’s architectural response delivered something different, innovative, and unexpected.
It has been likened to a merger between a cellar door, rural head office, and research laboratory.
The company’s unique teamwork model, its rural workplace culture, and the desire for a relaxed yet professional work environment created opportunities for architectural moments of discovery, surprise, joy, and tranquillity.
The design created an attractive workplace and a memorable place for staff and clients to conduct their business.
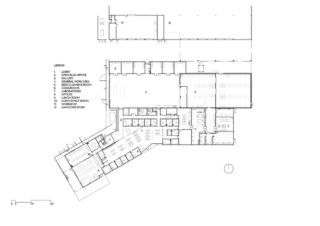
The Ashley Halliday design team defined the architectural significance of the project by the resolution and reduction of the highly complicated spatial program into a simple composition of form, space, and order that maintains a high level of integrity.
The complicated spatial program includes 6,600m2 of co-joined administrative and specialized work facilities including a dough rheology laboratory, temperature-controlled robotic seed storage carousel towers, cool storage facilities, workshop, harvester shedding, greenhouses, and a controlled environment research facility.
Single-level facilities are clustered around a central core containing a reception point, general work and administrative spaces, and tea rooms.
This arrangement creates a practical and highly efficient functional layout and circulation pattern.
Cranking the main building form around the centre’s key circulation node defines a highly legible and welcoming public reception and gallery (education) space.
A patterned copper-coloured perforated operable screen wall (inspired by the pattern of harvesters in wheat fields) veils the north and north-western aspects of the main building from harsh solar conditions, significantly improving the building’s energy performance as well as preserving sightlines and vistas through the interior to the sites rural setting.
The form, scale, and materiality of each building were influenced in equal measures by the opportunity to make natural light and ventilation ubiquitous and by the requirement to make each space as practical and efficient as possible.
Open space flows freely through the interior spaces following well-defined circulation patterns.
The Ashley Halliday team has created a practical, efficient and professional ambiance through an open plan layout, legible wayfinding, an abundance of natural lighting and ventilation, and an uncomplicated materials palette.
Project Details
Project Size – 6,600 m2
Project Budget – $20,000,000
Completion Date – 2018
Building Levels – 1
Project Team
Architecture
Ashley Halliday Architects
Ashley Halliday is an acclaimed contemporary architecture and interior design practice rapidly drawing attention for its high profile and award-winning work.
Photography
Sam Noonan
Sam Noonan is a specialist architectural and interior photographer based in Australia.
Photo Gallery
Click on a thumbnail image to enlarge.
Design © 2022 Ashley Halliday Architects. All Rights Reserved.| Images © 2022 Sam Noonan. All Rights Reserved.
The Builtworks Quest
At Builtworks, we’re on a multi-year quest to document, showcase, and spotlight the best of Australia’s built environment.
That’s why we’re creating this comprehensive online archive and educational resource that showcases a diverse and eclectic range of project types and scales.
Together with showcasing older exemplars of enduring merit, we spotlight and celebrate new and recent additions to Australia’s built environment.
























