Breathe Architecture, in conjunction with DREAMER, designed an apartment project at 388 Barkly Street, Brunswick in Melbourne.
The project is located on the cusp of the area’s sprawling parklands and outdoor amenities, and just beyond Melbourne’s bustling CBD.
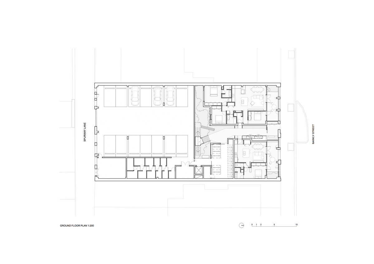
Their developer client wanted an ethical eleven apartment development within an existing 1940s era brick warehouse.
The project was to have minimal impact on the environment and a positive contribution to the urban realm and local neighbourhood.
The apartments were to be highly functional and comfortable, offering a realistic alternative to a detached house.
Spaces should be created that help to facilitate connection to nature, with access to natural light, high ceilings and good ventilation.
In particular the client wanted to create comfort through warm and inviting spaces with places within the apartments for both sanctuary and social connection.
Touches of the “handmade and human” had to be present, alongside materials that improve with age.
In response to their client’s brief, Breathe Architecture’s design is a distillation of the best practices of ethical architecture and a hopeful contribution to the field of design.
During their research phase, the Breathe Architecture team questioned what is typically absent from apartments and present in family homes.
They asked how an apartment could become a realistic alternative to the suburban home and a backdrop for the cherished experiences of family living.
The interiors were designed to exude comfort and warmth, while small everyday moments like morning benchtop coffees and opening French doors to a terrace contribute to a homely feel.
Each residence also features generous storage options cleverly integrated into the design, such as bench-seats that double as storage and mud rooms at entrances.
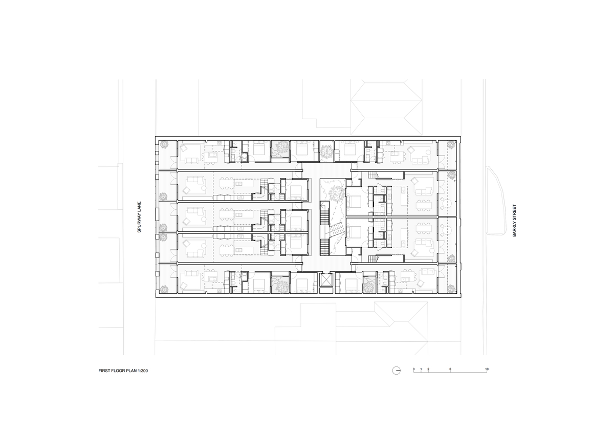
Barkly Street is integrated with biophilic design strategies.
The building has been carefully considered to strengthen residents’ connection with nature through an abundance of natural light sources, dynamic vegetation and unobstructed views to native planting.
Many details are informed by an understanding of the benefits conferred by interacting with organic life, such as the sunken lush central atrium, planted light wells and operable windows that enable natural light and fresh air.
A key theme in the design process was the idea of doing less to give more.
Exploring the concept of void spaces such as light wells, skylights, double height spaces and the central atrium allowed Breathe Architecture to deliver more for the residents, though with less saleable floor area.
Void spaces at different scales of the building bring light, vegetation and air circulation into the tight confines of the existing warehouse.
A human centered design approach led to the creation of diverse spatial experiences.
The point of entry and central atrium create a sense of welcome that flows naturally into each subsequent space, while the internal façade of the heritage brick shell has a rhythm that subtly curtails the interior to human scale with a textured, tactile appearance.
With collaboration as a key strength of the project, collaborations on locally made bespoke elements included to enhance everyday life, including distinctive hand-forged door handles by @rowsaan, a custom rain bench by @_bmdo and custom light fixtures by @ambiencelighting.
The project is a fossil fuel and gas free development powered by 100% green energy with a 30KW Plus Solar array on the roof and centralised heating and cooling.
High performance glazing and operable windows contribute to occupier thermal comfort and further reduce energy use.
The homes are crafted with ethically sourced materials selected for their durability and a reduction in VOC off-gassing and carbon footprint.
Key details include FSC-certified timber, recycled content in insulation and plasterboard, and eschewing harmfully produced elements such as chromed fittings.
This is DREAMER’s Case Study 04 and a research essay written about the project is available here.
Project Details
Site area – 920 m2
Completion date – 2020
Building levels – 3
Project Team
Developer
OUTsideIN
Outside In take an ethical approach to property development, with a focus on projects that make a positive contribution to the landscape and are built with minimal impact on the environment.
Central to their process is a view to the future, and a long-term goal to elevate sustainability across Melbourne’s property and housing sector. They achieve this through collaborations with like-minded people working towards a more ethical property development and construction framework.
Architecture
Breathe Architecture
Breathe Architecture is a Melbourne based studio, designing world-class architecture with an enduring and meaningful impact on housing affordability, accessibility and sustainability.
DREAMER
DREAMER is an architecture and design company. We believe construction is often bad for society, so we look for alternatives first.
Viualisation
MR.P is a visualisation and image making practice founded and led by Phil Horton. Based in Melbourne, Australia, this team of highly skilled artists works with a diverse selection of clients from various fields – both local and international.
Photography
Rory Gardiner
Rory is a well-established commercial photographer, specialising in architecture and interiors. He has studios in London and Melbourne.
Photo Gallery
Click on a thumbnail image to enlarge.
Design © 2020 Breathe Architecture and DREAMER. All Rights Reserved.| Images © 2020 Rory Gardiner. All Rights Reserved.
Get the Builtworks Letter
In every edition of the Builtworks Letter, you’ll get the behind-the-scenes backstory as to how buildings are designed, built, and brought to life.
You’ll hear compelling stories, learn surprising ideas, meet engaging characters, and discover unique voices.















