This beach-side home, designed by Utz-Sanby Architects, was built overlooking the Pacific Ocean north of Sydney.
Their brief was for a new family home to be used by multiple generations at the same time.
Careful consideration was given to privacy and separation when fully occupied as well as comfort and pragmatism when only two people are staying.
The house was designed with all the comforts of a permanent home.
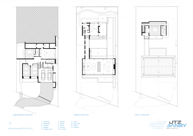
The house is designed around a central courtyard that contains the pool and outdoor entertaining areas and provides shelter from strong sea breezes whilst maintaining a strong visual connection to the stunning view.
Protecting views from neighbouring houses behind meant Utz-Sanby Architects had to design a low profile roof.
Ensuring that all rooms have ample views, light, and ventilation is always a challenge when designing large homes on coastal sites, but Utz-Sanby Architects’ design delivered those ‘must-haves’ whilst maintaining privacy via the solid masonry walls that ‘book-end’ the pavilions.
The palette of materials Utz-Sanby Architects specified included natural limestone, cream-coloured face bricks, natural anodised aluminium, and off-white rendered walls.
Selections were all neutral in colour, allowing the view to take centre stage.
The Louvretech operable roof over the outdoor dining allowed for year-round enjoyment.
This house follows a previously developed courtyard typology which is suited to the exposed location and sloping block.
The courtyard not only provides shelter from sun and wind but also helps to break down the form and depth of the building, allowing better access to natural light and cross ventilation in every room.
Project Details
Building levels – 3
Project Team
Architecture
Utz-Sanby Architects
Utz-Sanby Architects has a broad range of experience and is interested in all types of architectural projects, including one-off houses, alterations and additions, heritage listed buildings, commercial premises, corporate fit-outs, multi-residential developments and re-use.
Photography
Marian Riabic
Marian is a Sydney-based architectural and drone photographer.
Connect with Marian on LinkedIn
Photo Gallery
Click on a thumbnail image to enlarge.
Design © 2020 Utz-Sanby Architects. All Rights Reserved.| Images © 2020 Marian Riabic. All Rights Reserved.
Get the Builtworks Letter
In every edition of the Builtworks Letter, you’ll get the behind-the-scenes backstory as to how buildings are designed, built, and brought to life.
You’ll hear compelling stories, learn surprising ideas, meet engaging characters, and discover unique voices.









