Before Chris Elliott Architects’ redesign, Bourke Street Park in Sydney, Australia was small and derelict.
It was dirty, gloomy, and most unattractive.
Still, the railway viaduct provided some shelter here.
So it had become a sleeping and hangout place for Sydney’s homeless community.
Everyone wanted something done to improve the parks in the area.
But the local Council was caught between the demands of irate residents and the needs of the local homeless community that used the park 24 hours a day.
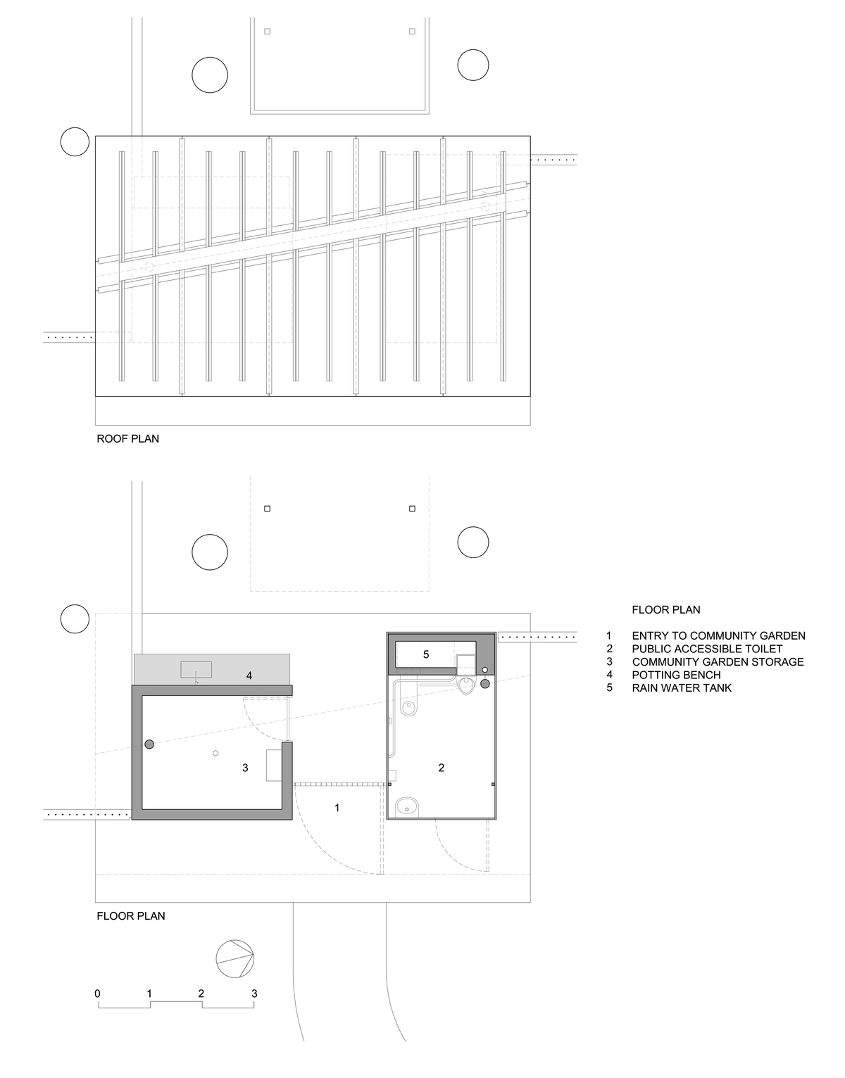
The siting of the new Bourke Street amenities block was constrained by the viaduct (it couldn’t be under it), the community garden, and some existing trees that were to be preserved.
Its layout was generated by the need to provide an entrance to the garden, an accessible toilet, and a storage room and potting bench and trough for the gardeners.
The roof is a 6mm thick steel folded plane supported by just two circular steel posts.
It sweeps up to allow in the air and light.
A new play area with colourful paving and structures was created.
This helped create a lighter, brighter, more colourful, and useful park for the local residents and their children.
Grassy areas were also provided, allowing people to sunbake, relax, or sleep on a good day.
A community garden with a pergola, potting area, and storage area are also a part of the new park.
Drains, pits, and other places where drugs could easily be concealed have all been eliminated.
All water drains naturally to the street.
The construction of the amenities block was a simple affair.
It had to be robust, easy to clean, and durable.
So Chris Elliott Architects opted for concrete block walls, and a very thin steel roof – with no structural thickness – just the 6mm thickness of the sheet steel itself.
Public toilets are more often than not dark, dank, and smelly.
The Chris Elliott Architects’ design, therefore, maximized light and airflow into the facilities.
The design solution was to create walls of a height that would provide adequate privacy, but then to have a much higher roof – allowing air, sunlight, and rain to penetrate using nature to clean and aerate the space.
The walls are lined with broken tiles – which are tough, difficult to graffiti, easy to repair, and in a way, an apt metaphor.
Project Details
Completion Date – 2011
Building Levels – 1
Project Team
Client
City of Sydney Council
Architecture
Chris Elliott Architects
Sydney-based Chris Elliott Architects, established in 1992, are committed to the opportunities provided by new technologies whilst being respectful of the natural and heritage qualities of place.
www.chriselliottarchitects.com
Landscape Architecture
Terragram
Established in 1986, Terragram is a design practice focusing on the visual and environmental aspects of the urban environment. The practice has an international reputation for creative and innovative design.
Structural Engineering
Rooney and Bye
Rooney and Bye and well-established and respected Consulting Engineers based in Crows Nest, New South Wales, Australia. The firm has operated since 1955 in the design of civil, structural, hydraulic engineering, and building maintenance.
Heritage Consultant
Geoffrey Britton
Electrical Consultant
Webb Australia Group
Webb Australia Group has a track record of over 40 years in the design of specialist engineering solutions across landmark projects in Australia, New Zealand, Asia Pacific, and the Middle East.
Access Consultant
Accessibility Solutions
Arborist
Sydney Tree Consultancy
BCA Consultant
Tom Miskovich & Associates
ESD Consultant
Cundall
Town Planning
David Crane and Associates
Photography
Richard Glover
Richard Glover is an architectural photographer, artist, and educator based in Sydney and London.
Photo Gallery
Click on a thumbnail image to enlarge.
Design © 2021 Chris Elliott Architects. All Rights Reserved.| Images © 2021 Richard Glover. All Rights Reserved.
The Builtworks Quest
At Builtworks, we’re on a multi-year quest to document, showcase, and spotlight the best of Australia’s built environment.
That’s why we’re creating this comprehensive online archive and educational resource that showcases a diverse and eclectic range of project types and scales.
Together with showcasing older exemplars of enduring merit, we spotlight and celebrate the very best new and recent additions to Australia’s built environment.
















