For this project, Kreis Grennan Architecture designed a contemporary pavilion addition with articulated link to single-level heritage cottage in Petersham, a suburb of Sydney’s inner west, located 6 km from the Central Business District.
This freestanding cottage sits on a small lot and forms a pair with an identical neighbour in a row, book-ended by a commercial building and a car park.
The Federation-style period features were well preserved and provided historic value of Sydney’s Inner West past.
Several beautiful trees stand in the rear garden of the adjoining site, providing a pleasant outlook and shelter from the summer sun.
Within this context, Kreis Grennan Architecture’s brief was to provide substantially more floor space and amenities for the existing residents.
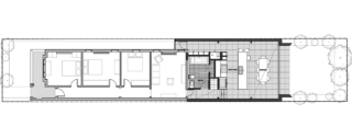
Their design response protected the main volume at the front of the existing house with four traditional rooms.
The addition is connected with an articulated link under the gutter revealing the connection through a series of skylights.
Though strategic placement of glazing, the new volume edits a beautiful view back to a historic sewer chimney stack, aligning with three chimneys of the existing dwelling.
On the opposite side, the occupant experiences a brick framed aperture, opening to the trees extending from the surrounding context.
On the ground floor, Kreis Grennan Architecture positioned a new bathroom, laundry, kitchen, and dining area with a double-storey void over.
Positioned above on a mezzanine level, KGA added an open studio space with ensuite overlooking the dining space, rear garden, and trees.
The double-storey boundary walls are constructed of local recycled bricks. The internal painted brick walls provide material and colour continuity with the existing dwelling while clearly identifying the new addition.
The external walls are face brick with a delicate tapered edge, framing the new building volume at the rear and creating a dialogue with the period houses and the heritage structures of the surrounding neighbourhood, celebrating the tradition of masterful brick craftsmanship in Sydney.
The new rear volume is crafted from on-site recycled bricks, sitting on a new concrete slab with an exposed, sustainably sourced, heavily insulated, LVL and plywood timber roof structure.
The bricks and concrete slab provide significant thermal mass assisting the occupants to control the diurnal temperature variation in summer.
In winter, this enhances the ability to store thermal energy during the day and release it several hours later.
This is achieved by controlling the solar access through the north-east facing window.
Solar control in summer is managed three ways.
The trees provide the first line of shading during summer, two levels of eaves provide the second, and retractable shading provides the third.
Passive cooling is delivered via extensive natural ventilation.
That’s achieved in the new part of the dwelling with the stack effect through the void into the open mezzanine level together with compact spaces with openable windows on both sides.
High level windows allow for heat to be released in summer.
In addition to the natural ventilation, a mechanical air exhaust system can be used to expel excessive heat on the upper level.
Project Details
Completion date – 2017
Building levels – 2
Project Team
Architecture
Kreis Grennan Architecture
Kreis Grennan Architecture is a creative collaboration between architect and licensed builder Christian Grennan, and project manager & property developer Chris Kreis.
With these complementary skills and over 20 years of experience, KGA provides the best possible integrated services in architecture, urban design, project management and property development.
Photography
Michael Nicholson
Michael Nicholson is an established commercial photographer who specialises in architectural and interiors photography.
He has a degree in architecture from the University of Sydney, and he brings the same level of vision, skill and experience to photography as an Architect brings to design, making him the photographer-of-choice for several leading architects.
Photo Gallery
Click on a thumbnail image to enlarge.
Design © 2020 Keis Grennan Architecture. All Rights Reserved.| Images © 2020 Michael Nicholson. All Rights Reserved.
Get the Builtworks Letter
In every edition of the Builtworks Letter, you’ll get the behind-the-scenes backstory as to how buildings are designed, built, and brought to life.
You’ll hear compelling stories, learn surprising ideas, meet engaging characters, and discover unique voices.














