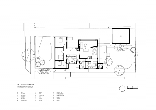
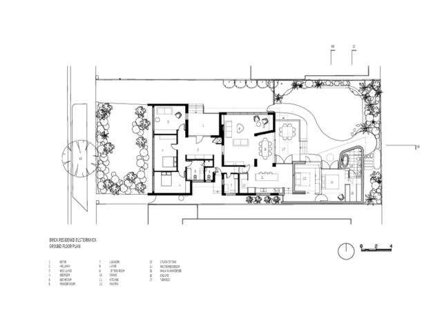
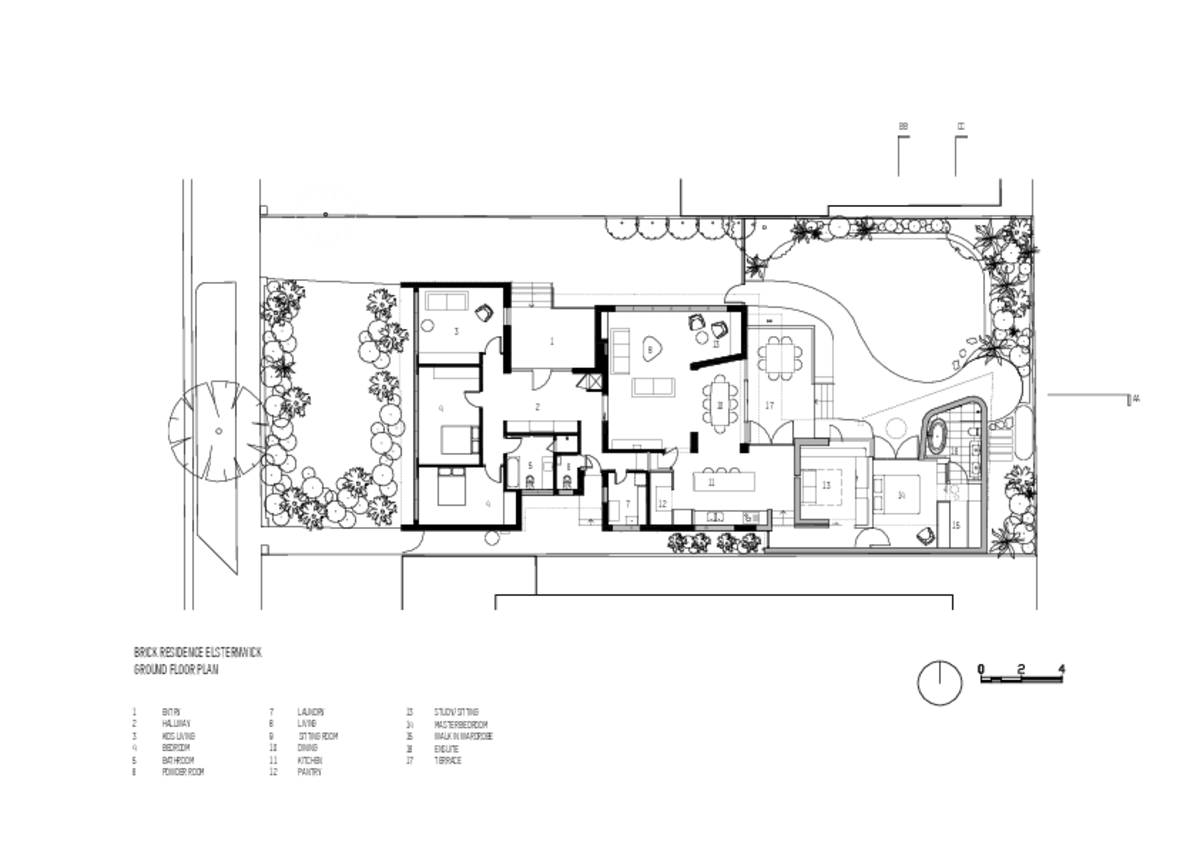
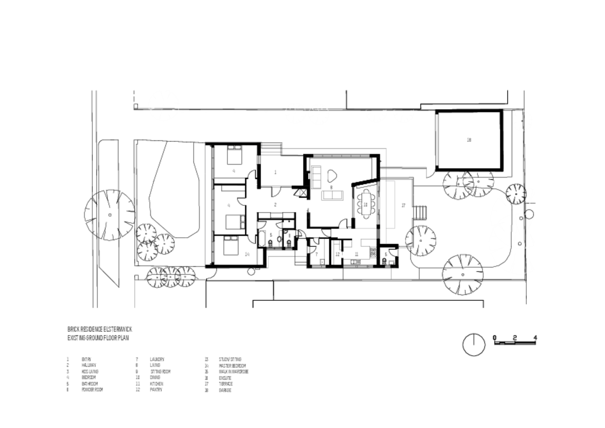
The ‘Brick Residence’ project proposed a modest extension creating a larger light-filled family home which respects and preserves the legacy of the original classic modernist house designed by Ernest Fooks; and remarkably retained in the family since its commission by Preston Lane Architects’ clients Grandfather in 1951.
The brief for this project was to design an extension to this important modernist house that respected and preserved the original house.
Conceptually the project proposed a series of spaces organised within masonry walls constructed of recycled bricks from the original garage that was demolished.
These walls are then capped with a large thin singular concrete roof that is exposed internally and slides under the existing houses eave line, clearly delineating old and new.
Internally the new recycled blonde bricks are exposed in the mid-section of the extension and then painted towards the rear where an angled wall and subtle curve is introduced in contrast to the original rectilinear planning; yet referencing a peculiar single angled wall at the rear of the original house.
A new larger kitchen, the heart of this family home, is re orientated to address the dining room and terrace directly, as well as importantly sit within the linking space between old and new.
The new exposed concrete ceiling is first experienced from above the end of the kitchen, and the existing ceiling is defined with painted lining boards connecting through to the dining room.
Joinery in the study and WIR divides the spaces between the primary brick walls and is conceived as crafted furniture elements.
The extension is located along the south of the site providing expansive north facing windows and doors supplying natural light to all rooms as well as important connections to the rear yard.
The concrete roof was designed to provide generous eaves that control the sun seasonally.
Insulation was placed on top of the concrete roof and this, as well as its natural thermal mass, ensuring the new extension is kept warm in winter and cool in summer.
Existing bricks from the garage and the original terrace handrail were re-purposed and reworked within the new proposal.
The laundry and bathroom were carefully renovated avoiding a full fit out to make use of the existing fabric which simply needed some slight updating.
The project maintains the integrity of the original house and has been enhanced with a respectful addition that has transforms this into a sustainable family home.
Key Products Used
Joinery
Constructed of Blackbutt timber veneer and edged with solid blackbutt timber around each panel providing a more refined crafted furniture-like quality to the joinery.
Flooring
New Vic Ash timber strip flooring to match existing sealed with Bona Traffic Satin water based polyurethane finish.
Insulation
Existing ceilings: R5.0 Bradford Gold High Performance Ceiling Batts to existing ceilings.
R3.5 Kingspan Kooltherm K10 Plus Soffit Board installed over new concrete roof.
10mm reflective polystyrene installed to new timber floor being replaced to dining, kitchen and pantry.
R1.9 Kingspan Kooltherm K3 Floorboard installed below concrete slab on ground to new extension
R1.9 Kingspan Kooltherm K8 Cavity Board installed to new brick cavity walls
R1.9 Kingspan K12 Framing Board installed to new brick veneer walls
Glazing
The house features timber framed, double glazed doors and windows by Noremac. Viridian Comfort Plus Clear glass are used on windows and glazed doors.
Heating and Cooling
Passive solar design features including northern orientation, external shading and effective cross ventilation reduce the need for heating and cooling devices.
In the existing house, the underfloor ducted heating and cooling is extended with new floor grilles below the island bench.
Continuous linear slot grille above the study and Master Bedroom robe joinery provide reverse cycle heating and cooling in the new extension.
Hot Water System
Existing Bosch Highflow 26e gas HWS used to include new areas.
Water Tanks
4,000 litre Bluescope Slimline Steel outdoor rain water tank.
Lighting
The house uses low energy and LED recessed down lights from Volt Lighting and surface mounted lights from ECC Lighting.
The Y Chandelier 04 in natural brass was selected for the dining area pendant fitting and Ora Pendant from Ross Gardam over the island bench.
Belleview wall light from Great Dane was installed over the study desk. Bedside pendant is the Marquise Medium from Oxley Butterworth.
Project Details
Project Size – 230 m2
Site Area – 620 m2
Completion Date – 2017
Building Levels – 1
Project Team
Architecture
Preston Lane Architects
Preston Lane Architects is an award winning architectural practice focused on providing innovative and successful design solutions that are responsive to both their client’s needs and the environment. They have an appetite for design and strongly believe that high quality design outcomes add value.
Builder
Sargant Construction
Sargant Construction is a domestic and commercially registered building service located in Melbourne, Australia and caters for all areas of the building industry.
Photography
Derek Swalwell
Derek is an architectural and editorial photographer from Melbourne, Australia. His name is synonymous with the photographic representation of the architectural landscape in Australia and beyond.
Having crossed the globe numerous times since starting out on his photographic journey over twenty years ago, Derek’s work documents some of the world’s most iconic built environments and visually articulates them in an entirely unique light.
Photo Gallery
Click on a thumbnail image to enlarge.
Design © 2020 Preston Lane Architects. All Rights Reserved.| Images © 2020 Derek Swalwell. All Rights Reserved.
Get the Builtworks Letter
In every edition of the Builtworks Letter, you’ll get the behind-the-scenes backstory as to how buildings are designed, built, and brought to life.
You’ll hear compelling stories, learn surprising ideas, meet engaging characters, and discover unique voices.














