Melbourne’s prestigious leafy suburb of Camberwell is well known for its grand, traditional homes.
So considerable investment in landscaping and garden upgrades is made by many home owners in the area.
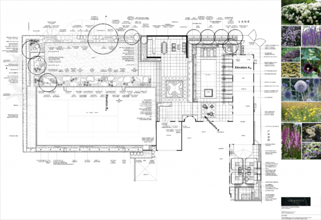
For one of these garden renovation projects, Ian Barker Gardens was commissioned to design and construct a new rear and kitchen garden that would both enhance and complement the client’s family home.
Outdoor entertaining was high on the agenda.
An maximizing useable space a priority.
In the rear garden, there was a existing swimming pool and tennis court.
These elements had to be seamlessly integrated into the new garden design.
The Ian Barker Gardens design called for the removal all existing paving and introduced new granite paving.
Two areas of Filetti ‘Endicott’ feature paving were used to frame a large existing Elm tree and create a canvas for Buxus spheres of varying sizes to poke through.
The tennis court was opened up by removing the existing fence and replacing it with a net.
Perennials were planted on all sides to soften the edges.
An open pergola adjacent to the pool was designed to help tie the garden and house together.
It provided shade and emerged as a stunning feature as the ornamental grapevine matured and crept over the structure.
The newly constructed pavilion houses a fully functioning outdoor kitchen, including a teppanyaki grill and bbq, a dining and lounge space, fireplace, sound system and retractable blinds.
Windows were included in the pavilion to enable the owners and their guests to immerse themselves in the surrounding perennial bed.
A large rectangular lawn next to the tennis court is flanked by a large garden bed filled with an array of perennials and grasses.
The planting palette for this, and all other garden beds, consist of plants with purple, blue, and yellow tones. These plants deliver stunning colour and texture throughout the seasons.
The courtyard on the north side of the property was an unusable bare and unshaded space.
Ian Barker Gardens‘ clients wanted to use this space to entertain.
To create shade, a ‘living pergola’ made of Plane Trees was planted.
That cooled down the space and provided a unique design feature.
A potted herb wall and a kitchen garden containing an outdoor kitchen covered by a glass paneled pergola was also installed.
The paving style used in the rear garden was continued with lighting on the outside of the pergola incorporated to maximise entertaining hours.
Casual seating was used specifically in this space to give this area a relaxed social feel and complement the more formal dining area leading out to the courtyard.
The plants chosen for this project were selected based on their suitability to the existing environment as well as their colour, structure, hardiness, and ability to remain attractive throughout the seasons.
As a result, the garden maintains its beauty all year round. The plants look at their best when in full bloom, but before and after flowering there is much beauty too.
The objective with these plant selections is not solely how nicely the garden blooms.
Just as important is how beautifully it decomposes.
Here in this Camberwell garden, as the lifecycle of the plants unfolds, dead seed heads and the bare skeletons of the plants will create sculptural interest and add texture to the winter garden.
Key Products Used
- 800 x 800mm sandblasted ‘Metro’ granite pavers
- Underground balance tank
- Timber pergola with Vitis Coignetiae
- Filetti “Endicott’ feature paving
- Vertical herb garden
- Retaining wall bluestone pitchers
- Black mesh with ficus pumila to rear court fence
- Prunus Lusitanica hedge
- Hydrangea ‘Annabelle’
- Aster ‘Twlight’
- Salvia ‘Caradonna’
- Echinops ‘Taplow Blue’
- Achillea ‘Moonshine’
- 1RDS/CDigitalis Purpurea
Project Details
Project size – 3,000 m2
Completion date – 2014
Awards
Winner of ‘Hard Structures in the Landscape’ at the 2017 Landscaping Victoria industry awards.
Winner of ‘Residential Landscape Construction’ at the 2017 Landscaping Victoria industry awards.
Project Team
Design, Construction, and Maintenance
Ian Barker Gardens
Ian Barker Gardens is an award-winning landscape design, construction and maintenance service based in Canterbury, Victoria.
Founded by Ian Barker in 1996, the Ian Barker team comes with a wealth of experience and knowledge, offering you a level of professionalism that is unsurpassed in the landscaping industry.
Photography
Claire Takacs
Claire Takacs is a photographer inspired by light, nature and beauty. Gardens are her canvas and she always strives to capture the essence of any garden she visits and the beauty of fleeting moments in these special places.
She knows it’s a privilege to see what she does, working with some of the world’s best designers, gardeners, writers, editors, and publishers.
Photo Gallery
Click on a thumbnail image to enlarge.
Design © 2020 Ian Barker Gardens. All Rights Reserved.| Images © 2020 Claire Takacs. All Rights Reserved.
Get the Builtworks Letter
In every edition of the Builtworks Letter, you’ll get the behind-the-scenes backstory as to how buildings are designed, built, and brought to life.
You’ll hear compelling stories, learn surprising ideas, meet engaging characters, and discover unique voices.











































