Camberwell Garden Project

Ian Barker Gardens has completed a number of projects in the prestigious leafy suburb of Camberwell in Melbourne, Australia.

Property values there can support extensive landscaping.

Many homeowners in the suburb appreciate the life-enhancing benefits of a well-designed garden.

And they know that the return on investment from a well-designed landscape and garden project is almost always worth the effort.

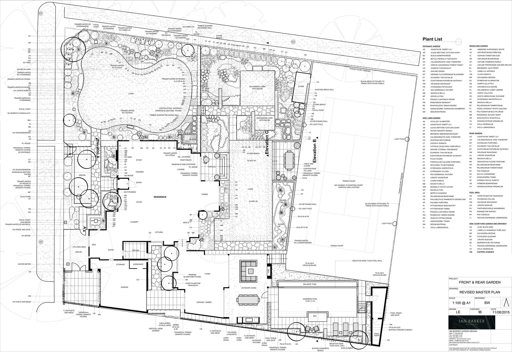
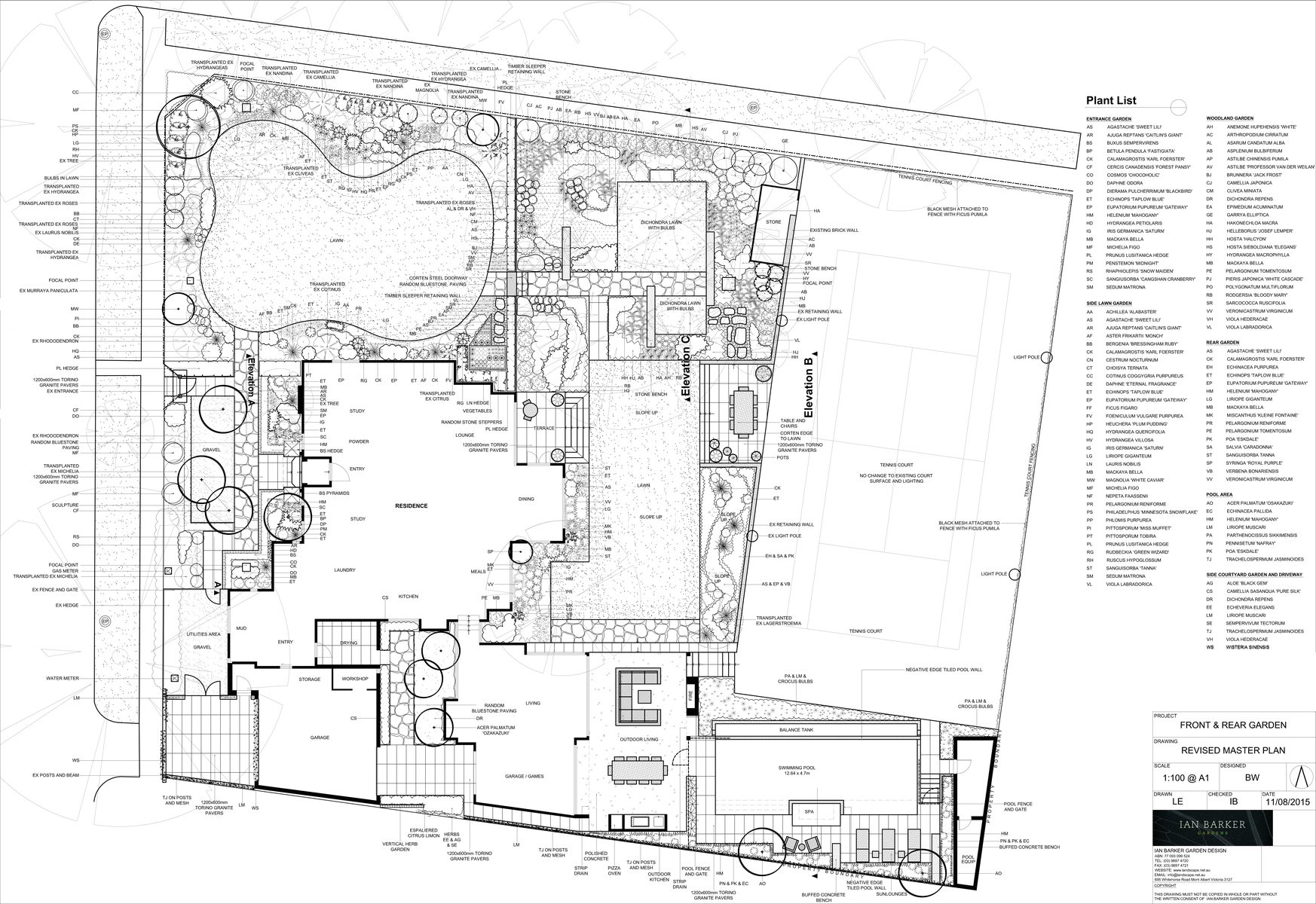
Ian and his team were briefed to design and construct an abundant garden and entertaining area surrounding this beautiful heritage-listed property.

The clients had a large extended family that gathered at the home every week or so, some young children to consider, and frequently held large functions outdoors.

Areas requiring design included an entrance garden, side lawn garden, woodland garden, rear garden, pool area, and side courtyard garden.

When designing, it was important that the garden not only complement the style of the home but also enhance the fine architecture.

Merging the old with the new, the Ian Barker Gardens’ team used blue stone crazy paving to marry in with the existing bluestone elements found in the hardscape and added in textured mottled granite for the modern element.

These two materials were used constantly throughout the build.

Steps were introduced to help manage the level changes between the grassed area, pool, and tennis court levels.

The entertainment area was set on the same level as the tennis court.

Ian Barker Gardens structured the lawn and built a red brick retaining wall to deliberately match in with the red bricks of the heritage home.

An array of magnificent perennials were used throughout the design to soften the lines of the house and provide texture and all-season colour.

Among the random placement of bluestone paving, the Ian Barker Gardens team designed and constructed stacked bluestone benches.

That added both architectural interest and seating functionality.

The hardscape bluestone features were used to pull all garden areas together, ensuring the overall design flowed.

A steel doorway structure was the final striking touch.

Key Products Used

Random Bluestone crazy paving

1200 x 600mm Torino Granite Pavers

Corten steel doorway (feature)

Polished concrete (outdoor living area)

Pizza oven

Outdoor kitchen

Timber sleeper retaining wall

Red brick retaining wall

Buffed concrete benches (in pool area)

Negative edge titled pool wall

Planting Palette

Helenium ‘Mahogany’

Agastache ‘Sweet Lili’

Calamagrostis ‘Karl Foerster’

Cercis Canadensis ‘Forest Pansy’

Echinops ‘Taplow Blue’

Mackaya Bella

Prunus Lusitanica Hedge

Dichondra lawn with bulbs

Ficus Pumila attached to tennis court fence with black mesh

Project Details

Completion date – 2016

Project Team

Design and Construction

Ian Barker Gardens

Ian Barker Gardens is an award-winning landscape design, construction and maintenance service based in Canterbury, Victoria.

Founded by Ian Barker in 1996, the Ian Barker team comes with a wealth of experience and knowledge, offering you a level of professionalism that is unsurpassed in the landscaping industry.

www.landscape.net.au

Photography

Claire Takacs

Claire Takacs is a photographer inspired by light, nature and beauty. Gardens are her canvas and she always strives to capture the essence of any garden she visits and the beauty of fleeting moments in these special places.

She knows it’s a privilege to see what she does, working with some of the world’s best designers, gardeners, writers, editors, and publishers.

www.takacsphoto.com

Photo Gallery

Click on a thumbnail image to enlarge.

Design © 2020 Ian Barker Gardens. All Rights Reserved.| Images © 2020 Claire Takacs

Get the Builtworks Letter

In every edition of the Builtworks Letter, you’ll get the behind-the-scenes backstory as to how buildings are designed, built, and brought to life.

You’ll hear compelling stories, learn surprising ideas, meet engaging characters, and discover unique voices.