Designer Megan Ryan, based in Sydney, Australia, was briefed to re-purpose an existing commercial space; dividing it into a lobby, retail space, and stockroom.
The brief focused on creating a new concept aesthetic for the clothing boutique Clever Ain’t Wise.
This concept design, developed in collaboration with Yvette Salmon, interrogated what a contemporary retail space can offer both from a branding perspective and for the customer.
The design had to consider the existing glazed facade and the separation of the tenancy above at the mezzanine level. The spatial volume of the retail space was created with a suspended open ceiling grid and minimal partition walls. This produced a contained volume to work with.
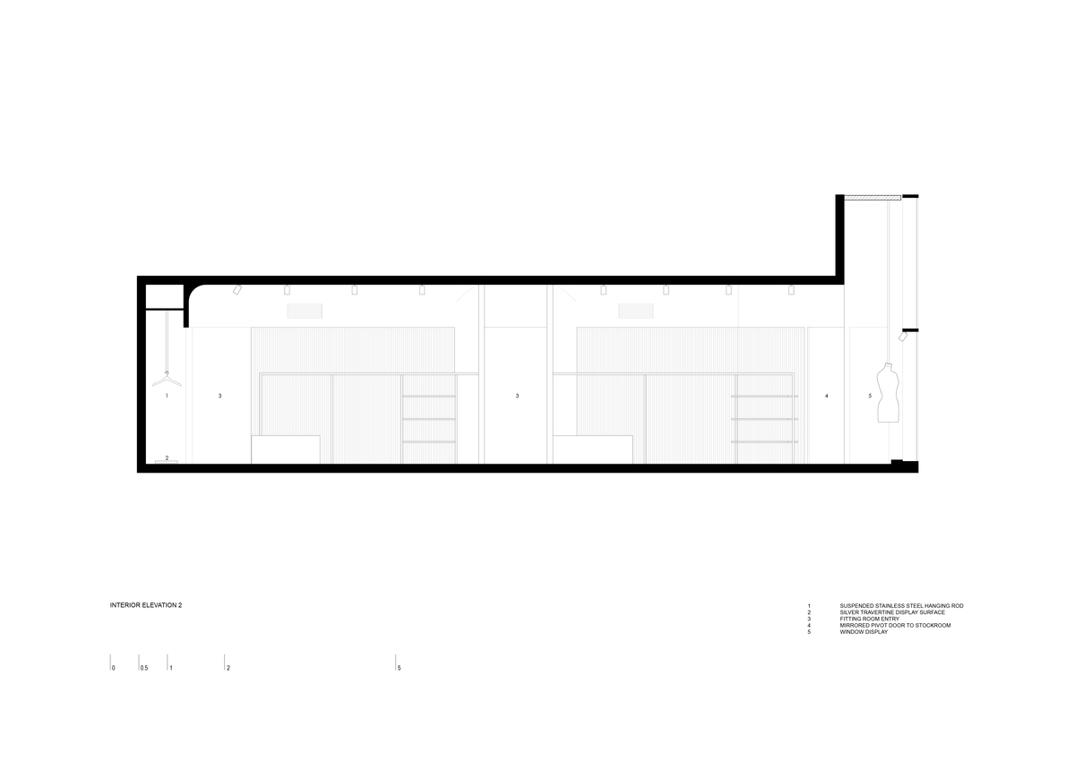
Megan Ryan’s design concept revolved around the form and materiality of the merchandise displays. This design sought to merge architecture with sculpture to artfully showcase each product. The concept was achieved through two gestures; a series of bespoke cabinetry display islands and a perimeter of customised stainless steel displays.
Placed strategically through the centre of the space, the display allows customers to wander between a field of products. Hanging steel rails adorn the perimeter of the store, highlighted by carefully selected walls finishes and lighting arrangements.
The selection of materials is juxtaposed in its form and tactility.
Intersections of natural and artificial materials are layered with travertine stone, Marblo translucent resin, and stainless steel. Materials were applied to the cabinetry to create a cohesive space to display merchandise.
The monochromatic material palette allowed each product to take centre stage. Intersections of natural and artificial materials are layered to produce a surreal retail experience and a unique interior landscape to display merchandise.
The ways in which the materials interacted with each other affirms a sense of play in the experience of the shopper.
The layout of the shop is able to be at once highly functional, yet constantly offering moments of unique exception to its user; a glimpse at a corrugated surface behind steel rails, or a bespoke resin joinery piece intersecting with an existing concrete column.
The project works seamlessly with the existing, integrating it in a way where it is not entirely clear what is additional and what was there before.
This ambiguity is rich in detail and intrigue.
Megan designed the space to stand in contrast to its context by creating a calm material and spatial approach that allowed the products to be heroic and stand at the forefront of the visitor’s experience.
Display Cabinetry Products Used
Marblo Opal Series – Summer Sand NOL3 – 7076C
Marblo Opal Series – Neutral NOL2 – 7002N
Natural Stone – Silver Travertine
Project Details
Project size – 140 m2
Completion date – 2019
Building levels – 1
Project Team
Designer
Megan Ryan
Megan Ryan is a multidisciplinary designer from Sydney, Australia, working in building design, interiors, cabinetry, textiles, and object design.
Always curious, with a deep passion for understanding the intricacies of each project’s true needs and desires, she strives to create meaningful, enduring quality in all aspects of design.
Megan understands the constraints of any project as an exciting opportunity for design to perform at its best by exploring unique solutions.
Builder
Raguz Building Services
RBS is undertakes technical construction, refurbishments, and interior fit-out projects from design to handover. The majority of their works fall within the $1 m to $5 m range.
www.raguzbuildingservices.com.au
Cabinetmaker
Display by Design
Display by Design offers their clients a complete in-house design, construction, and installation service, or in the case of architects, interior designers, and project managers they construct and install their designs for them.
Photography
Photo Gallery
Click on a thumbnail image to enlarge.
Design © 2020 Megan Ryan. All Rights Reserved.| Images © 2020 Liam Patrick. All Rights Reserved.
Get the Builtworks Letter
In every edition of the Builtworks Letter, you’ll get the behind-the-scenes backstory as to how buildings are designed, built, and brought to life.
You’ll hear compelling stories, learn surprising ideas, meet engaging characters, and discover unique voices.











