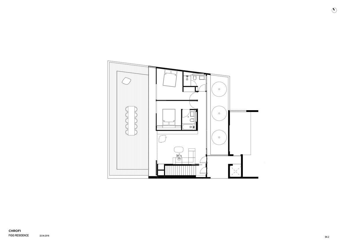
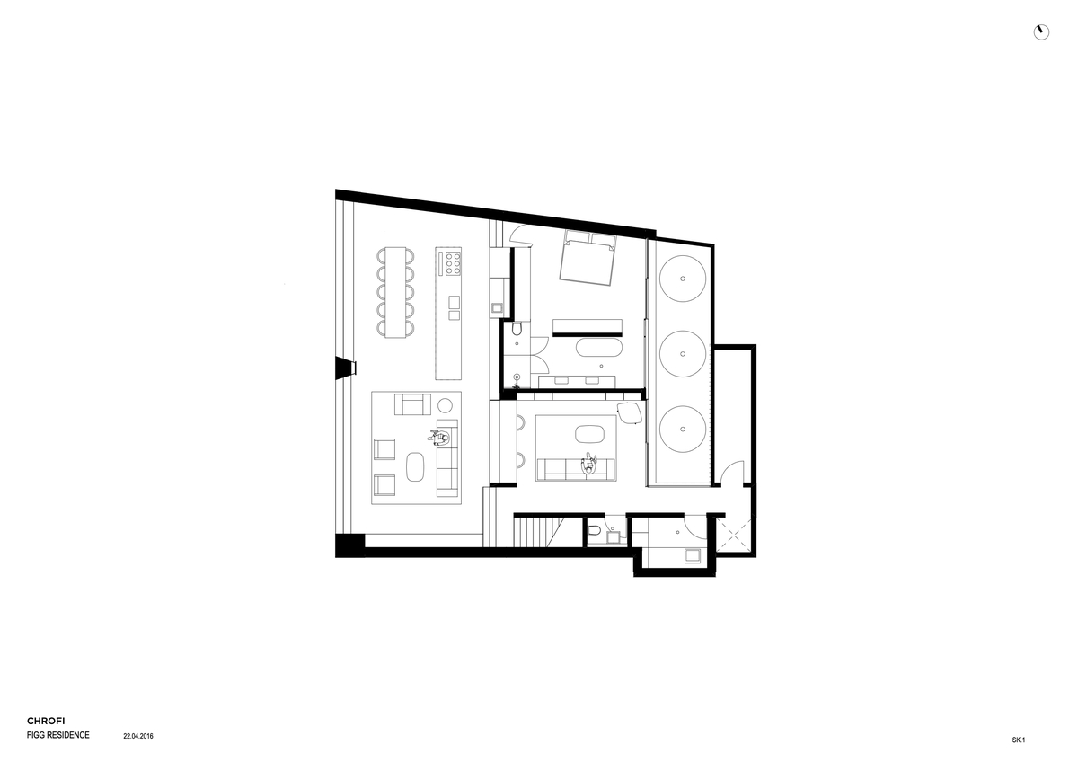
Sydney-based architectural practice CHROFI designed Church Point House situated on a steep one-directional Western facing site overlooking Sydney’s Pittwater.
The CHROFI design called for a large sunken courtyard to be cut into the escarpment at the rear of the dwelling to provide a meditative and calming outlook from adjoining spaces and a juxtaposition to the site’s expansive and sometimes extreme primary aspect.
Transparency within the dwelling’s core provides inter connectivity between these contrasting edges allowing the inhabitants to experience an ever-changing quality of light and atmosphere, whilst connecting to the landscape.
Project Details
Completion date – 2019
Project Team
Architecture
CHROFI
CHROFI was founded in 2000 as Choi Ropiha following the win in the international competition for the re-design of the TKTS booth in Times Square, New York. The practice studio in Manly, Sydney is now home to a team of 26 professionals headed by directors John Choi, Tai Ropiha, and Steven Fighera.
Interior Design
Triibe
Triibe specialises in interior design, styling, furniture design, and creative direction. Founded in 2013 by directors Christina Symes and Jessica d’Abadie, the studio, with offices in Sydney and Melbourne, combines their extensive experience both in Australia and internationally to carve a name and signature style in the industry.
Construction
Graybuilt
Graybuilt is owned and managed by Paul Gray. Paul started as a carpenter and with extensive training, single-minded dedication and experience became the builder he is today. Graybuilt’s work encompasses all aspects of residential and commercial construction, from highly detailed architectural work, through to minor alterations and additions.
Photography
Katherine Lu
Katherine is an established and well-regarded Sydney-based architectural photographer.
Photo Gallery
Click on a thumbnail image to enlarge.
Design © 2020 CHROFI and Triibe. All Rights Reserved.| Images © 2020 Katherine Lu. All Rights Reserved.
Get the Builtworks Letter
In every edition of the Builtworks Letter, you’ll get the behind-the-scenes backstory as to how buildings are designed, built, and brought to life.
You’ll hear compelling stories, learn surprising ideas, meet engaging characters, and discover unique voices.

















