This house, perched above the Pacific Ocean makes great use of a relatively tight site. It’s a compact family home makes the most of the spectacular location whilst ensuring the design withstands weather and offers enough flexibility, form and function both now and for the future.
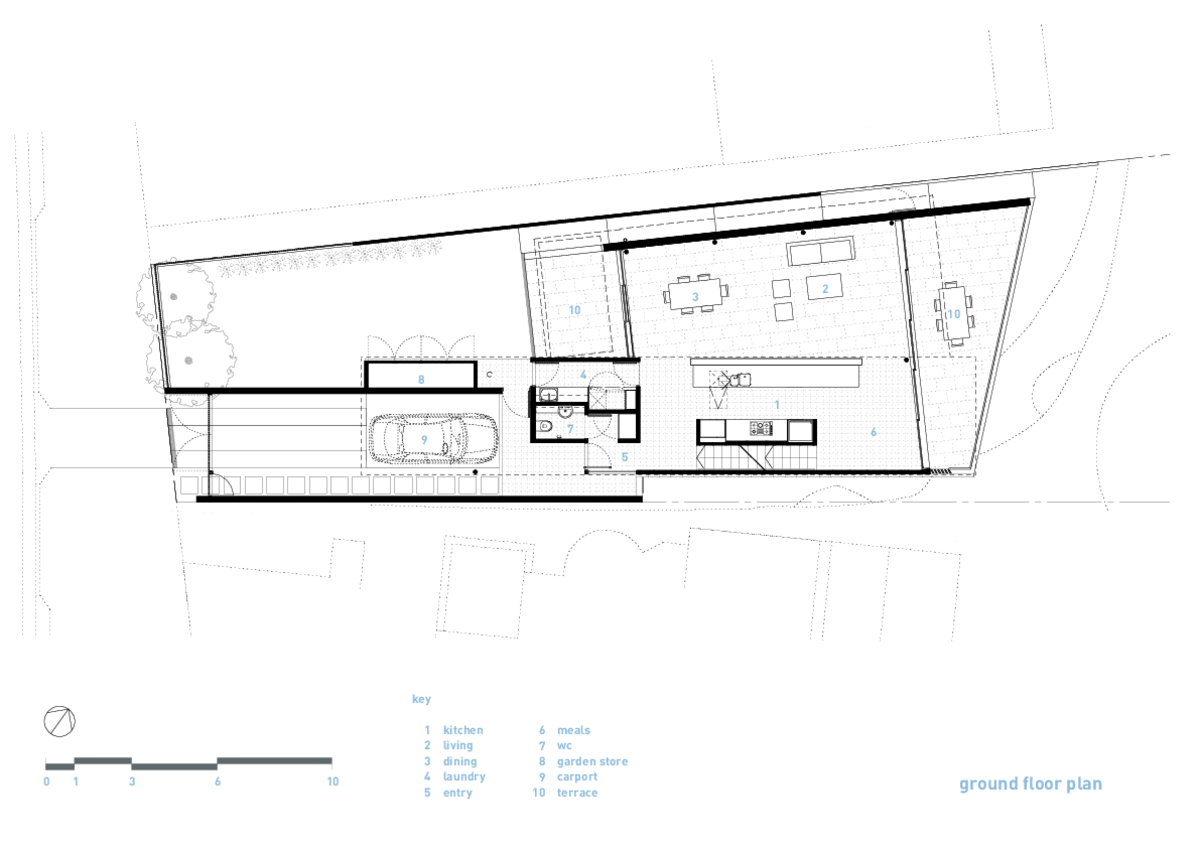
The geometry of the wedge shaped site has been reinforced by the building. The spaces on the ground floor are fluid and open-plan, directed toward the view and sunlight to the north and a protected courtyard garden to the south where the site narrows.
Careful placement of structural walls, high-level glazing and roof form created a generous living room with an abundance of natural light, ventilation, privacy and spectacular views.
Clifftop House, designed by Utz-Sanby Architects, is built on a tight urban site, perched on the edge of a cliff 100 metres above the Pacific Ocean and facing due north.
The design fits a compact 250m2 house for a family with three young children on a site of 556m2, between a four-storey apartment block and a large new house.
The primary challenge Utz-Sanby Architects faced on this site was to achieve privacy from neighbouring dwellings, create a useable garden, and to maximise the stunning views, northern aspect and sea breezes.
Project Details
Project Size – 250 m2
Site Area – 556 m2
Building Levels – 3
Project Team
Architecture
Utz-Sanby Architects
Utz-Sanby Architects has a broad range of experience and is interested in all types of architectural projects, including one-off houses, alterations and additions, heritage listed buildings, commercial premises, corporate fit-outs, multi-residential developments and re-use.
Construction
Peter Barnett Constructions
PBC Builders Sydney are long-standing builders of architecturally-designed homes, with their client roster comprising mostly repeat and referred customers. The PBC Builders team is renowned for the craftsmanship of their staff who are all long term employees.
They regularly complete projects for their client’s grown-up children.
Peter Barnett and his team enjoy their work and take great pride in leaving behind a successful project and a satisfied customer.
Doors and Windows
Aluminium And Glass Constructions
Aluminium and Glass Constructions is a family owned and operated company founded in 1994. From the very beginning Rick and Craig Elliott (they have been working in this industry for 35 years) set a high benchmark for design and manufacturing of products. The hand picked team of trades people share that ethic and ensure that every project stakeholder – from the architect and engineers to the builder and homeowner – receive outstanding customer service.
www.aluminiumandglassconstructions.com.au
Photography
Marian Riabic
Marian is a Sydney-based architectural and drone photographer.
Connect with Marian on LinkedIn
Photo Gallery
Click on a thumbnail image to enlarge.
Design © 2020 Utz-Sanby Architects. All Rights Reserved.| Images © 2020 Marian Riabic. All Rights Reserved.
Get the Builtworks Letter
In every edition of the Builtworks Letter, you’ll get the behind-the-scenes backstory as to how buildings are designed, built, and brought to life.
You’ll hear compelling stories, learn surprising ideas, meet engaging characters, and discover unique voices.










