Lisa Breeze Architects’ clients were seeking a clever and compact home.
The owners had restored the front of the house with the utmost respect before LBA’s involvement and wanted help to create a functional home with a small footprint.
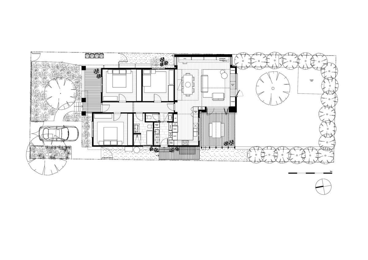
Lisa Breeze Architects achieved that with a combination of re-purposing the existing spaces and adding a small extension to the side and back.
They turned the old living room into a bathroom, powder room and walk-thru laundry.
Then, they opened and expanded the back of the home to create a new living, meals and kitchen area with a strong connection to the backyard.
The LBA design team played with the ceiling forms to create spaces within spaces, and used a number of skylights to bring soft natural light into the centre of the home.
They also paid homage to the simple heritage details of the era by referencing the overall form and textures of the old Californian Bungalow.
Sitting on a plinth of recycled bricks, the 3D timber cladding of the extension creates a lovely shadow play on the rear form, a quiet reference to the shadow and depth that traditional weatherboards provide.
LBA followed the timber and brick theme indoors with a recycled brick boundary wall that forms the back of the entertainment unit, storage, and desk.
Elsewhere, timber was used in flooring, bench tops, and a window seat with secret storage surround.
Sustainability was very important for everyone involved in this project, particularly the client, architect and builder.
So basic sustainability design principles were implemented.
By responding to the existing conditions and site orientation, the solutions included reliance on cross-ventilation for cooling, deep window reveals, and deciduous vines for shading in the summer.
In addition to the use of recycled materials plus low maintenance and durable finishes inside and out.
Most importantly the re-purposing of existing spaces and a restrained overall footprint were key to the overall design solution.
Project Details
Project Size – 136 m2
Site Area – 424 m2
Completion Date – 2017
Building Levels – 1
Project Team
Architecture and Interior Design
Lisa Breeze Architect
Lisa Breeze designs homes for and with the people who live in them. Bringing a personal touch to architecture, Lisa shares her passion for craft and detail. She thrives on the creative process, working with her clients to bring your home to life.
Photography
Caitlin Mills
Caitlin is a lifestyle and commercial photographer based in Melbourne.
www.caitlinmillsphotography.com.au
Photo Gallery
Click on a thumbnail image to enlarge.
Design © 2021 Lisa Breeze Architect. All Rights Reserved.| Images © 2021 Caitlin Mills. All Rights Reserved.
Get the Builtworks Letter
In every edition of the Builtworks Letter, you’ll get the behind-the-scenes backstory as to how buildings, structures, and places are designed, built, and brought to life.
You’ll hear compelling stories, learn surprising ideas, meet engaging characters, and discover unique voices.


















