Concrete Blonde was designed by Carter Williamson Architects as an architectural jewellery box.
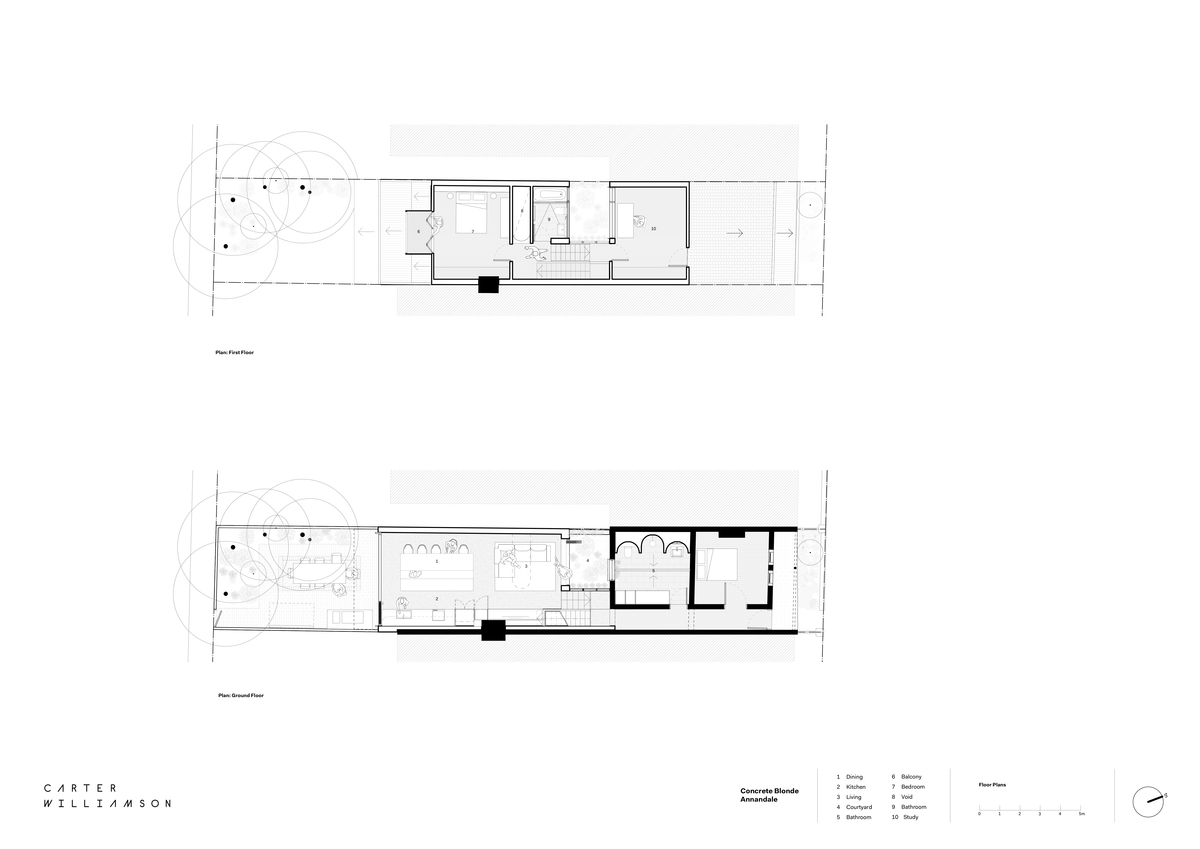
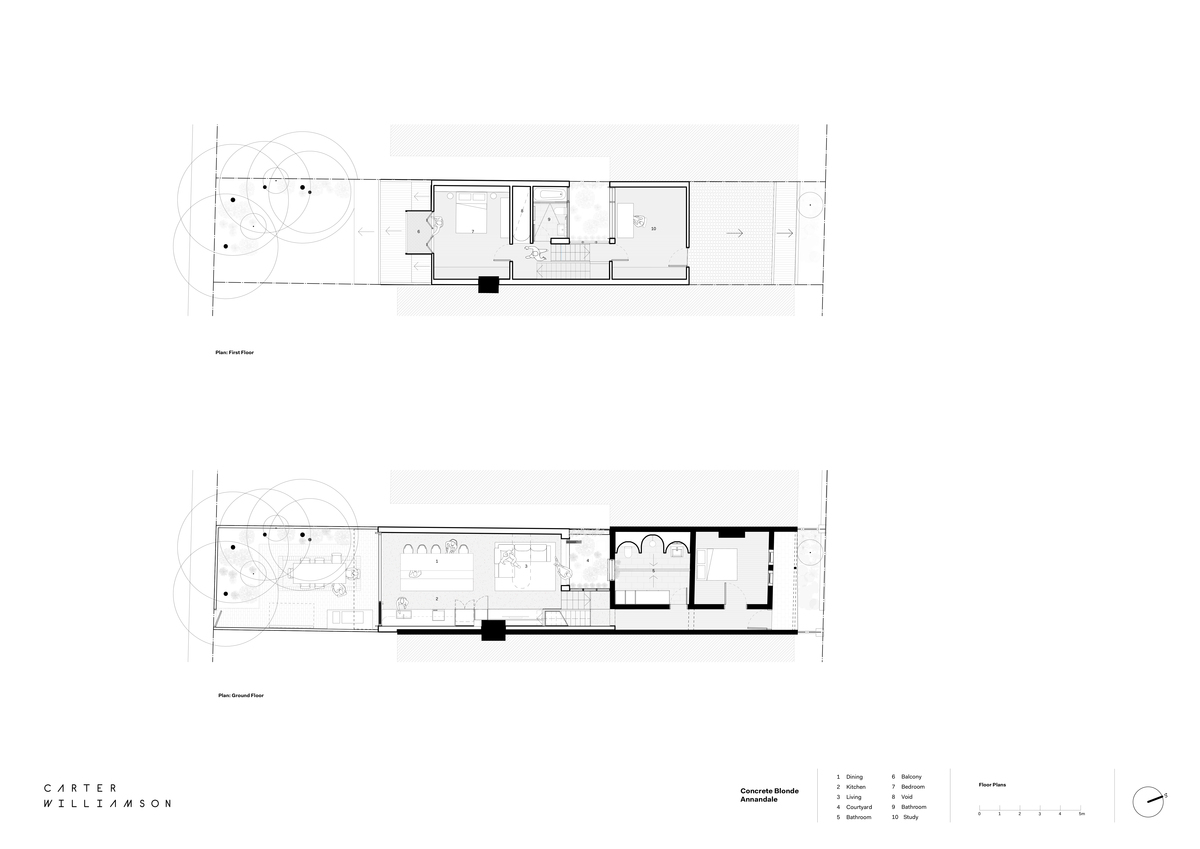
Located in Annandale, an inner city suburb of Sydney, Australia, this updated cottage unfolds from a modest heritage façade to a generously-spaced home.
Carter Williamson Architects expressed warmth through the use of earth tones and natural materials and captured light through skylights and a courtyard well.
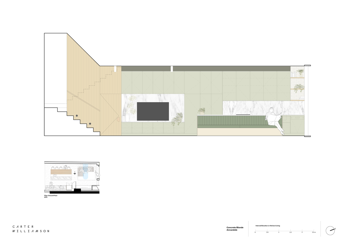
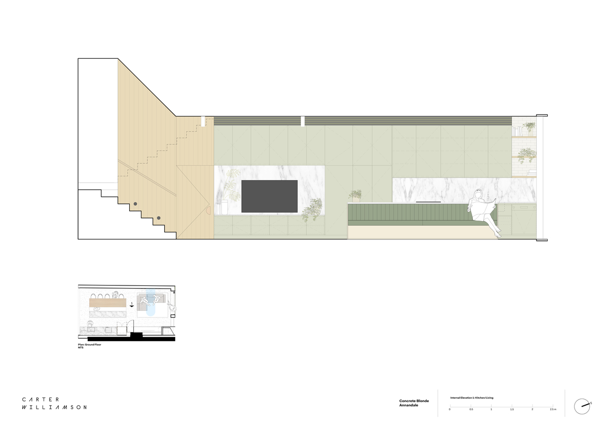
The living space flows into the home’s kitchen and dining area, black sliding glass doors dissolve away to connect the kitchen to the rear courtyard.
These four spaces – outdoor, kitchen, living and dining – coalesce as one, creating the heart of the home.
To facilitate light, a tile-lined and plant-filled courtyard mediates between the homes’ living and private spaces. One side of it addresses the main living area, the other the bathroom and stairs, providing bench seating facing the kitchen and living room where the family like to sit and talk.
Carter Williamson Architects permitted light to flood through the home by carving a curved void situated above the lounge. Natural light pierces the shared living and dining space, creating a calm, contemplative environment with a pleasing play of light and shadow throughout the day.
A palette of concrete and light brick was used along with custom timber furniture.
The kitchen bench transitions seamlessly to bench seating and dining in Concrete Blonde’s kitchen, with Tasmanian oak cabinetry and joinery finished in Dulux White Cabbage complimenting the dark-green leather upholstered bench seats.
The table is a collaboration between Carter Williamson and Will Brennan, an Orange-based furniture designer.
The greens through Concrete Blonde are a nod to the native gum trees swaying in the backyard, the homes former kitchen colour, and memories of our clients extended family homes in Greece.
Carter Williamson Architects’ clients brought a mindfulness of waste reduction, and were initially reluctant to renovate this century-old cottage.
But their attitude changed once CWA introduced a notion of quality materials that would last as long as those removed from the century old house, embodying the notion of “build it once, build it right”.
Carter Williamson Architects first consideration was to maintain as much of the existing heritage building as possible, to reduce demolition and waste.
Their second was to ensure that the use of concrete was as sustainable as it could be within the project budget.
The use of a heavy material palette of concrete, marble, and brickwork allowed Concrete Blonde to effortlessly regulate temperature.
Those quality materials trap cool air within the home during summer and keep warm air within during winter.
Openings throughout the home provide cross breezes year round, reducing the requirement of air conditioning.
A former bedroom is now the main bathroom containing a hidden laundry. The individual functions of the space – toilet, basin, and shower – have been subdivided into micro-spaces by the use of curved tiling.
These small gestures divide the large room into smaller spaces.
Carter Williamson Architects’ main challenge with this project was to create a generous, light-filled home on a tight 5m wide block with a south-facing yard, while still maintaining the heritage exterior and its place, aesthetically, within a row of eight homes from the same era.
This is why Concrete Blonde is a carefully crafted home that uses every inch of space to its advantage, a modest addition unfolding from its original facade and sitting at the same height as its neighbours.
Project Details
Project size – 135 m2
Site area – 155 m2
Completion date – 2019
Building levels – 2
Key Products Used
Bricks
Custom Furniture
Will Brennan Designs – Dining Table and Coffee Table, Thonet Chairs
Lighting
Project Team
Architecture
Carter Williamson Architects
Carter Williamson is a multiple award-winning design studio with a strong commitment to rigorous, beautiful and robust architecture. They believe that design quality can make a real difference to the way we live, work, and move through our world and that belief is central to the way they work.
The CWA team for Concrete Blond project included:
- Principal Architect: Shaun Carter
- Architect: Ben Peake
- Interior Design: Julie Niass
Landscape Design
Melissa Wilson Landscape Architects
Melissa Wilson Landscape Architects was founded in 2006. They provide design and documentation of large and small-scale projects residential and commercial projects, Their extensive plant knowledge is applied to all projects.
Photography
Katherine Lu
Katherine is an established and well-regarded Sydney-based architectural photographer.
Photo Gallery
Click on a thumbnail image to enlarge.
Design © 2020 Carter Williamson Architects. All Rights Reserved.| Images © 2020 Katherine Lu. All Rights Reserved.
Get the Builtworks Letter
In every edition of the Builtworks Letter, you’ll get the behind-the-scenes backstory as to how buildings are designed, built, and brought to life.
You’ll hear compelling stories, learn surprising ideas, meet engaging characters, and discover unique voices.



































