Coopworth

Coopworth

Designed by FMD Architects and nestled in the rural surrounds of Bruny Island, Tasmania, Coopworth is a contemporary interpretation of a country farmhouse.

The site’s resident Coopworth sheep, the wide-ranging views to the water and mountain ranges beyond, and the weathering red lead shacks dotted over the island, provide an ever-changing landscape with which the house converses.

FMD Architects consciously constrained the footprint of the house to maximize arable land.

Yet the design maintains generosity in its thoughtful internal arrangement.

Internally, the contrast of lofty volumes and snug spaces are accentuated by a utilitarian palette of plywood linings and concrete floors.

This draws focus to a dramatic ceiling lined with Coopworth wool from the property.

Sealed with clear, polycarbonate corrugated sheeting, the wool adds to the thermal performance, while celebrating the agricultural connections as an abstract wool fresco.

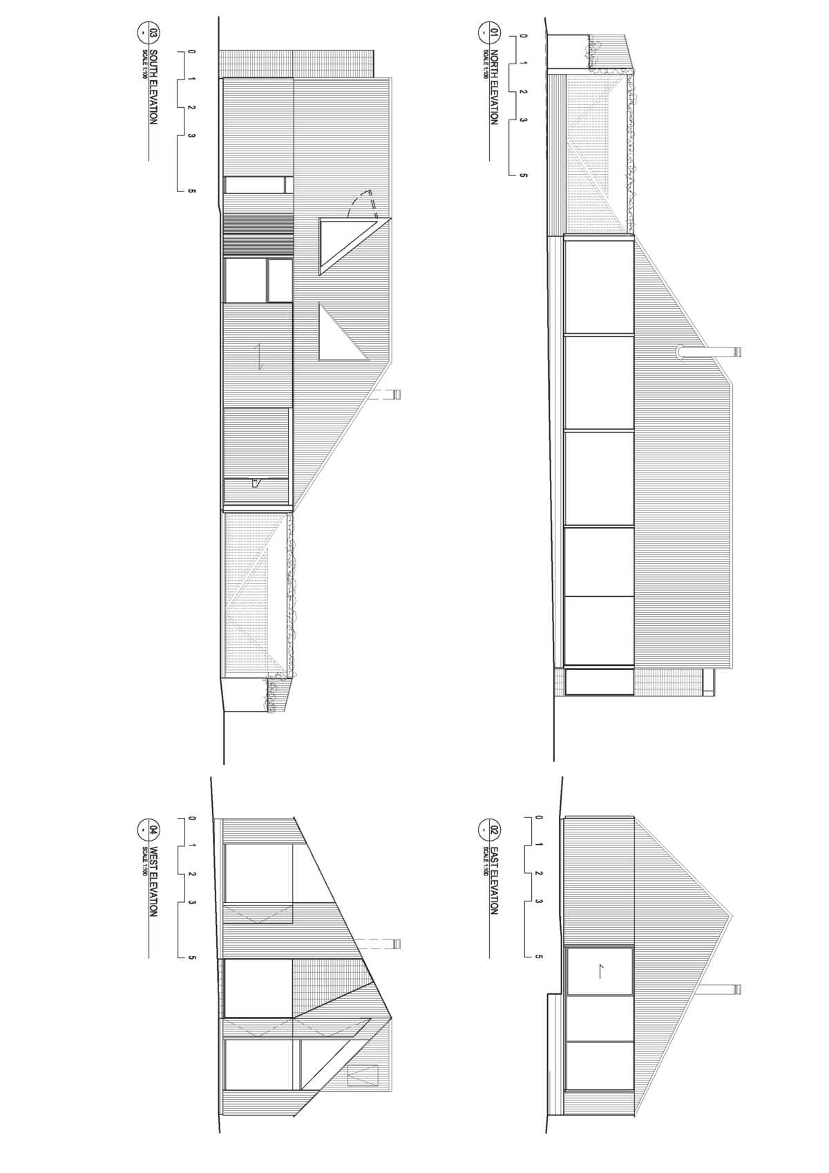
The northern elevation establishes a rhythm of window niches, capturing the view.

Frameless windows are pushed to the edge of the floorplate to embrace wild winds and rains – at once immersed in the beauty and brutality of the weather and well protected from it.

On the western elevation, the ubiquitous chimney stack seen on the historic shacks is reimagined as a sunken bath, thus connecting the bather to the surrounding paddock and resident sheep, as well as long views to the bay beyond.

While designed to accommodate two principal occupants, Coopworth can be opened up to host family and friends through creative interpretations of Australian verandah sleepouts and caravan bunk beds.

Window bays are bordered with sunken beds; a camping-like arrangement nurturing familial connections.

An attic-like mezzanine serves as a study space and guest bedroom, while an additional plywood-lined bed is discreetly integrated amongst a wall of joinery.

Bespoke details, including a folded steel firewood stand and leather-wrapped bathroom fittings, add further interior grain.

The house addresses accessibility, longevity, and sustainability.

In-ground trenches eliminate roof gutters, while all but one roof penetration is removed, mitigating leaks and fire risks.

Compact spaces that can be closed off when not in use significantly reduce both heating and cooling demands.

UV heat and radiation are absorbed by the ‘internal eave’ of day beds in peak summer, while concrete floors, wool-lined ceilings, operable ventilation panels, and ceiling fans effectively moderate temperatures.

A large solar array and water tanks on the nearby farm sheds provide self-sustaining water and power supply, while an efficient, slow-combustion wood fire is the main source of heating.

Spaces are designed for universal access, with consideration of families with disabilities and the couple’s potential future needs.

The house’s lightweight construction eased transportation of building supplies to the remote site, while local trades were called upon to reduce travel and build ties with the community.

Natural and locally sourced products were favoured, including plywood and recycled timber.

Furniture and LED lighting are locally designed and made.

Charred timber sculptures by local first-nation artist, Robby Wirramanda, provide an arresting, site-specific addition protecting the septic field from farm machinery, reiterating the balance between the pragmatic and poetic within the landscape.

Project Details

Completion Date – 2020

Project Team

Architecture

FMD Architects

FMD Architects is an architectural practice with extensive experience in architecture of varying scales, types and budgets.

The core work of the practice is boutique commercial, hospitality and residential work.

The focus on specific projects enables a high level of client service as well as an intense design process with rigorous detail.

www.fmdarchitects.com.au

Photography

Dianna Snape

Dianna Snape is a well-established and respected photographer based in Melbourne, Australia.

She specialises in interiors, landscape, and architectural photography.

www.diannasnape.com

Photo Gallery

Click on a thumbnail image to enlarge.

Design © 2022 FMD Architects. All Rights Reserved.| Images © 2022 Dianna Snape. All Rights Reserved.

The Builtworks Quest

At Builtworks, we’re on a multi-year quest to document, showcase, and spotlight the best of Australia’s built environment.

That’s why we’re creating this comprehensive online archive and educational resource that showcases a diverse and eclectic range of project types and scales.