The urban hub of Hawthorn in Melbourne attracts creatives, freelancers, and makers. They’re big users of co-working space, but there’s already plenty to choose from … albeit most of it a bit drab.
So is yet another co-working space needed?
Corso Interior Architecture’s client, CreativeCubes Co CEO and co-founder Tobi Skovon thought so.
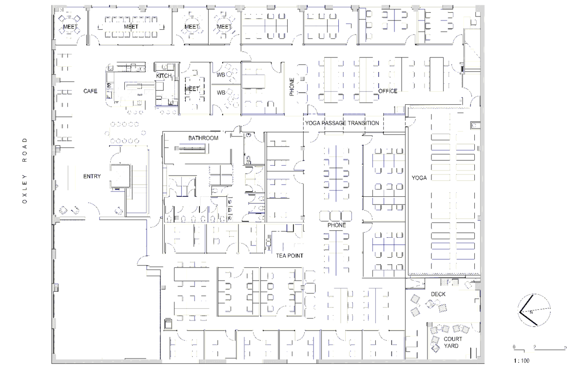
He envisioned the Hawthorn co-working project as something very different to the standard fare on offer, imagining it as having five core areas:
- yoga
- events
- cafe
- workstations/offices
- outdoor area
This dull square-shaped building of 1,450 m2 had existing windows along only two sides.
That made the opposite corner dark.
Yet natural light had to fall across the entire square-shaped tenancy because every workstation had to look, feel, and function as well as the next.
So the Corso Interior Architecture team devised a plan with an acoustically treated central hub.
The bathrooms, yoga space, and tunnel hall elements worked to break up the space, without introducing more corridors.
Thus, more natural light penetrated within.
Five primary colours formed the foundational musings of Corso Interior Architecture’s initial design.
Each palette delivered a visual contrast.
And created zoned common areas, without walls or barriers.
The colour repetition across artwork, signage, and carpets delivered order, structure, and legibility.
Workspaces had neutral tones, simple lines, and abundant natural light.
And transitions throughout the space were deft.
Sustainability was important to both client and Corso Interior Architecture.
So the space had to be flexible to accommodate future change with minimal sacrifice.
The bones of the space were brickwork…they were sandblasted and reused.
The roof truss was exposed and reused.
Wherever possible, materials were recycled.
And all paints and adhesives used were low in VOC’s.
Corso Interior Architecture’s work on this project won the best commercial design award at the 2019 Polytec Melbourne Design Awards.
Project Details
Project size – 1,450 m2
Project budget – $1,300,000
Completion date – 2018
Building levels – 1
Project Team
Architecture
Corso Interior Architecture
Corso Interior Architecture view each project as a complex puzzle, each with its own story. They strive to enhance and create, and whilst form and function are key, aim to effectively convey an idea, without presenting the obvious solution.
Photography
Ting En Wong
Photo Gallery
Click on a thumbnail image to enlarge.
Design © 2020 Corso Interior Architecture. All Rights Reserved.| Images © 2020 Ting En Wong. All Rights Reserved.
Other Co-Working Projects
The Commons Coworking, Barkly Street Collective.
Get the Builtworks Letter
In every edition of the Builtworks Letter, you’ll get the behind-the-scenes backstory as to how buildings are designed, built, and brought to life.
You’ll hear compelling stories, learn surprising ideas, meet engaging characters, and discover unique voices.












