CrossCut House

CrossCut House

Housing a family of four plus beloved pets, Crosscut House is a double-storey family home in Mosman.

Mosman is a well-regarded and highly-prized suburb on Sydney’s North Shore in Australia.

Built as a brick and sandstone federation period cottage, the dwelling had been altered and added to over several decades.

And although endowed with space and amenity, the home lacked clarity.

Its original side entry led to dark, compressed internal spaces disconnected from the landscaped garden and pool to the rear.

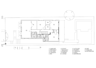
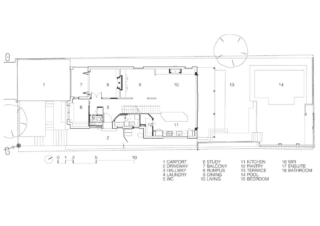
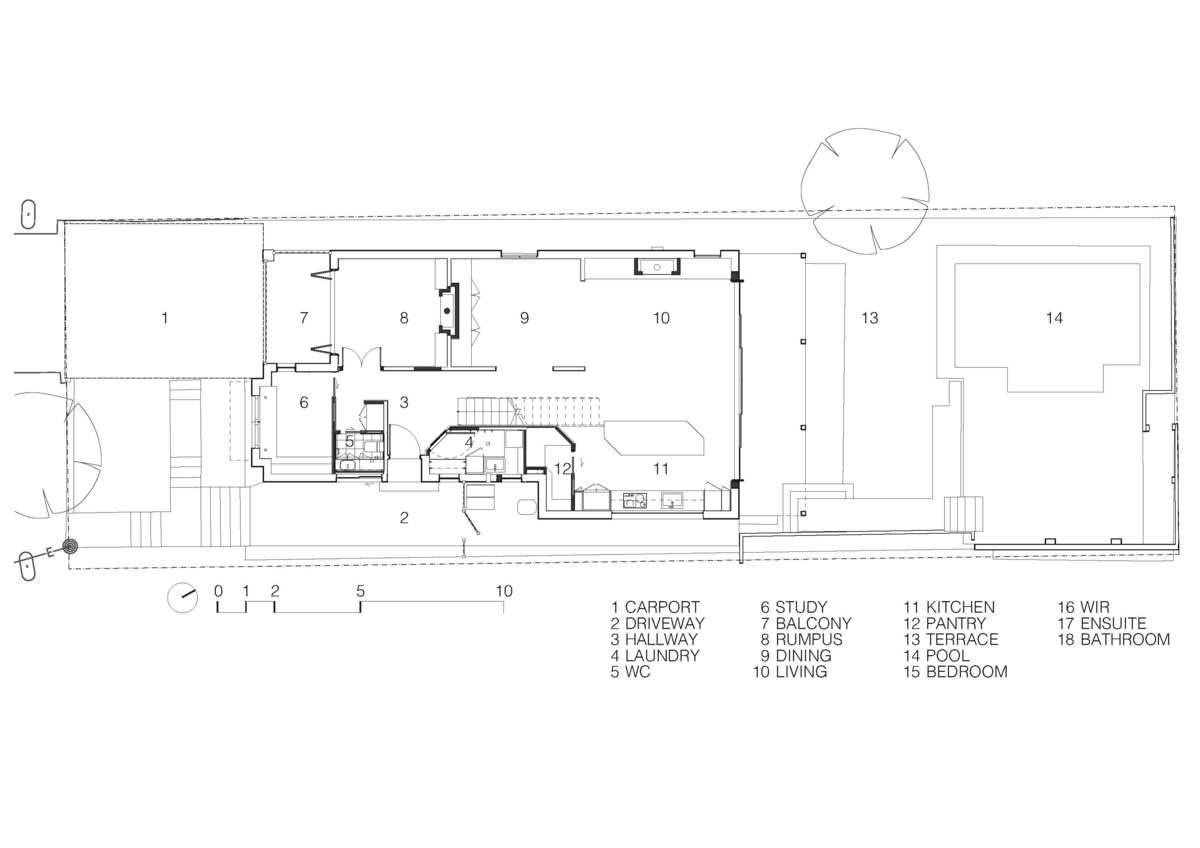
Bijl Architecture was commissioned to design a reconfiguration of this home.

Their design included:

  • Improvement of the dark and convoluted internal circulation spaces
  • A new kitchen with butler’s pantry
  • An open plan dining and living space that opens out to the landscaped garden and pool
  • Conversion of an awkward study into a comfortable ‘working-from-home’ space and powder room
  • New entry foyer and laundry
  • New first floor bathrooms and ensuites
  • New stair void connecting the two floors and opening up the house

Determined to make the most of the existing structure and proportions of the dwelling, the Bijl Architecture team – led by 🎼Melonie Bayl-Smith🎹 -reconfigured a handful of internal walls to realise the home’s potential.

They introduced a welcoming entrance, improved the circulation, and drew natural light deep within.

A new open-plan kitchen, living, and dining space now blurs outdoors with indoors.

Careful incisions and deft re-workings introduced a new logic and ample natural light.

Undertaking minimal work to the rear facade, the Bijl Architecture design created a simple journey from the front door through to the open plan living spaces and the rear garden.

By completely re-imagining the existing stairwell, the dwelling interior was transformed, with a new cantilevering stair and timber feature wall drawing natural light deep into the house.

The warmth of the timber is complemented by a refreshing monochromatic palette adopted throughout.

The Bijl Architecture design delivered a spacious, light filled dwelling with only a few changes to the existing doors and windows, without any additional floor space created.

Project Details

Completion Date – 2020
Building Levels – 2

Project Team

Architecture

Bijl Architecture

Bijl Architecture is an ambitious Sydney practice seeking to challenge the status quo.

Led by Melonie Bayl-Smith, they believe that our homes, schools, and places of gathering are an expression of our communities’ collective values and hopes, for now and for the future.

www.bijlarchitecture.com.au

Structural Engineering

ROR Consulting Engineers

Led by Rob O’Reilly, ROR is a well-regarded Sydney-based engineering practice.

www.rorengineers.com.au

Construction

Stuart Wilson Constructions

Stuart Wilson Constructions was established in 2005 and has a stellar reputation in Sydney’s residential building and construction industry.

www.stuartwilsonconstructions.com

Kitchen and Joinery

Driftwood Joinery

Driftwood Joinery is owned and operated by David Thrift, a 5th generation Joiner of 20+ years.

www.driftwoodjoinery.com.au

Photography

Tom Ferguson

Tom is a Sydney-based commercial photographer who is regularly commissioned by leading architects, developers, and major brands within Australia and internationally.

www.tomferguson.com.au

Photo Gallery

Click on a thumbnail image to enlarge.

Design © 2021 Bayl Architecture. All Rights Reserved.| Images © 2021 Tom Ferguson. All Rights Reserved.

Related: Melonie deconstructed one of her favourite projects on the Builtworks podcast. Click here to listen to the episode.