Davidov Architects Studio

Davidov Architects Studio

This new studio fitout was the first purpose designed space for the Davidov Architects’ practice.

They were determined to design a series of spaces that conveyed many of the architectural devices and their general approach to space that is evolving in their built work.

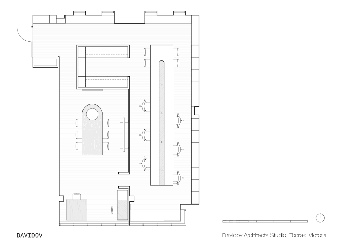
The interior is divided into two core spaces with a third minor space for services and back of house.

The commercial shell of the office runs north-south providing natural light and views through large windows towards the south.

This helps orientate the two linear spaces; the first is a meeting room, the second the workroom.

The Meeting Room

This room has three tables: 1 x  large (6-8 people), 1 x medium (2-4 people), and 1 x small (1-2 people).

Each allows for meetings of different scales and intents to be conducted in different ways, either more formally or casually depending on the appropriate dynamic and type of discussion or work to take place.

The Workroom

Davidov Architects is a young firm in a slow-growth mode.

The Melbourne-based practice is led by Robert Davidov.

So it was important to create an environment that allowed for growth whilst maintaining a close knit studio environment.

As such, the common table model was adopted which allows for natural growth along the spine.

The length of the table is also divided into two zones – work and talk – allowing for other areas to have informal or in-house conversations.

The interior for the studio space creates an interior that is free-flowing and unexpected.

The circulation between the two main spaces adds interest and scale and begins to explain our approach  to such things as compression and expansion, refuge, and prospect.

The small studio also allows for multiple environments and scenarios for individual and group work.

Opportunities include the different zones of the common table and the raised bar.

Conversations and meetings at different scales can range across the various meeting room tables.

Joinery is executed in a residential rather than commercial approach.

The hardwood is complemented by the use of natural stone and indoor plants.

Familiar domestic furniture, art, and sculpture has been brought into the studio to reinforce this setting and scale.

The design of the studio is innovative for versatility and range of options for working and interacting.

The two key functions of work and talk are catered for in a variety of ways that allows for each task to be modified and performed in more idiosyncratic ways.

Meetings can be held with two people by a window or a group around a large table.

Likewise the way in which work can be carried out can be varied between different spaces, environments, and dynamics which is an important distinction in a studio space of this scale.

Project Details

Project size – 101 m2
Completion date – 2018
Building levels – 1

Project Team

Architecture and Interior Design

Davidov Architects

As a design studio, Davidov Architects works together with their clients to distill their needs, discarding the latest trends, to arrive at an outcome that simply enhances and supports their lifestyle.

Davidov Architects’ designs are understated in character, opting for a sense of permanence and solidity in their execution. Material, space and light are modified through a lens of simplicity creating meaningful spaces that nourish and uplift.

Through a pared back approach to their architecture and interiors, Davidov Architects’ work spans a range of scales and typologies from private houses, multi-residential projects, homewares, and institutional work.

www.davidov.com.au

Photography

Jack Lovel

Jack Lovel is an architectural photographer based in Melbourne, Australia. With ten years worth of experience, Jack has worked with some of the leading architects and design practices in the field including Splinter Society, Carr Design, Christopher Elliott and Biasol. His editorial work has featured in global publications like Dwell, Elle Decoration, Houses and Habitus.

Alongside his freelance practice, Jack has spent three years documenting Iwan Iwannoff’s architectural legacy in Western Australia, culminating in a 2019 exhibition entitled The Architecture of Iwan Iwanoff – Through the lens of Jack Lovel at Perth’s There Is Studio.

This body of work was initially inspired by the Iwanoff-designed Jordanoff house that Jack grew up in, and is a testament to his long fascination with – and passion for – contemporary architecture.

www.jacklovel.com

Photo Gallery

Click on a thumbnail image to enlarge.

Design © 2020 Davidov Architects. All Rights Reserved.| Images © 2020 Jack Lovel. All Rights Reserved.

Get the Builtworks Letter

In every edition of the Builtworks Letter, you’ll get the behind-the-scenes backstory as to how buildings are designed, built, and brought to life.

You’ll hear compelling stories, learn surprising ideas, meet engaging characters, and discover unique voices.