Bourke and Bouteloup Architects designed the new Deakin University School of Medicine, Optometry Clinic at Deakin’s Waurn Ponds campus in Geelong, Victoria, Australia.
The clinic combines learning with an accredited optometry practice.
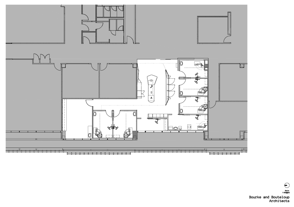
It provides an alternative model of education where optometry students are able to learn within a real world environment and interact with patients.
The project features a centralized learning zone with a retail display area, six clinical consultation spaces, a Clinical Discussion Room for students and supervisors, and a Clinical Research Room.
The walls and ceiling of the main display area are clad with bamboo panels, tying the design with the adjacent foyer as an extension of the public space.
The panels are perforated with an array of circles of varying sizes, referencing the Ishihara test and defining the space.
Services including lights and sprinklers are integrated into the perforation pattern creating a warm envelope as an entry to this health education facility.
Project Details
Completion date – 2019
Building levels – 1
Project Team
Architecture
Bourke and Bouteloup Architects
Bourke and Bouteloup Architects practice directors have a collective experience of more than thirty years in the architectural industry spanning a variety of project types.
Michael Bouteloup has worked with some of Melbourne’s well known architectural design practices including Lyons, Architectus, and as a senior associate at Paul Morgan Architects.
Sarah Bourke has also worked at prominent Melbourne practices including Allen Powell and Boschler Architects as well as working for her own practice.
Both directors have taught at RMIT University School of Architecture in Architectural Design, History and Technology.
Bourke and Bouteloup have been practicing together since 2007 on institutional projects.
www.bourke-bouteloup-architects.com.au
Photography
Tom Ross
Tom Ross is an Australian architectural and editorial photographer.
Photo Gallery
Click on a thumbnail image to enlarge.
Other Education Projects
Albert Park College Media Hub, LCI Melbourne, Leo Cussen Centre for Law.
Get the Builtworks Letter
In every edition of the Builtworks Letter, you’ll get the behind-the-scenes backstory as to how buildings are designed, built, and brought to life.
You’ll hear compelling stories, learn surprising ideas, meet engaging characters, and discover unique voices.











