Dedece is an established retailer of beautifully crafted and enduring furniture and lighting from designer brands such as Minotti, Knoll, and Paola Lenti.
They commissioned architects CO-AP to design their new Melbourne showroom.
It’s housed within a former goods warehouse on an industrial estate.
That’s why the building’s typology consisted of a double height warehouse and loading dock fronting the street with an adjoining two story administration unit at the rear.
Architects CO-AP’s design concept was simply to create “a room with two views”.
Existing facade openings were removed from the concrete tilt-up panel facade.
New internal structure allowed for the removal of multiple tilt-up modules to form new 4.4m high window bays at each corner and side to activate views of the park across the road and to an existing mature tree within the estate.
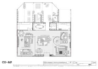
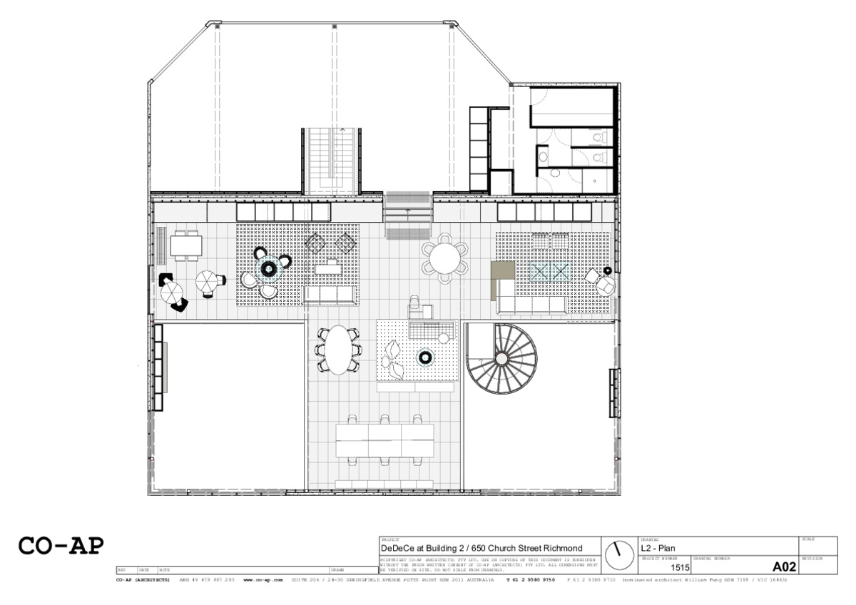
Internally, a T-shaped mezzanine was inserted into the double height space to form two dramatic voids framed by the new corner windows.
And a large sculptural staircase was set within one of these voids to break the internal spatial symmetry.
The new glass entry vestibule was recessed under the new mezzanine soffit, providing visitors with a spatial experience where they are compressed and released into the double height voids as they explore the furniture settings.
The material palettes for the lower and upper showrooms had to be complimentary where they overlap, whilst allowing the differences of Dedece’s two major brands – Minotti & Knoll – to be defined.
Hence the moody and sophisticated palette of Minotti downstairs meets a fresh modernist palette introduced upstairs for Knoll through the use of lightweight porcelain marble tiles.
Project Details
Completion date – 2017
Building levels – 2
Project Team
Architecture and Interiors
CO-AP
CO-AP is an award-winning architectural practice which takes a collaborative approach to realising fresh outcomes for each project, with an emphasis on research and development and an inherent regard for sustainability.
Established in 2005, CO-AP has completed a diverse range of projects including houses and apartments, showroom and office fit-outs, hospitality design, events, educational and retail design.
The practice thrives on challenging projects. Tackling difficult sites, complex briefs and strict planning controls enables us to seek alternative approaches to achieve better outcomes, and in doing so question the status quo.
Their design process often results in layers of complexity but always strives to distill an architecture that is simple, and executed with precision and clarity.
Photography
Ross Honeysett
Ross Honeysett is a high profile professional photographer based in Sydney, Australia.
Apart from creating outstanding architectural images, Ross has produced photographic projects for the Sydney Conservatorium of Music, Sony, and Levi’s jeans.
The National Portrait Gallery commissioned Ross to create a contemporary photographic portrait of Sydney creative group CO-AP Collaborative Architecture Practice for the 2009 exhibition Portraits + Architecture.
Photo Gallery
Click on a thumbnail image to enlarge.
Design © 2020 CO-AP. All Rights Reserved.| Images © 2020 Ross Honeysett. All Rights Reserved.
Get the Builtworks Letter
In every edition of the Builtworks Letter, you’ll get the behind-the-scenes backstory as to how buildings are designed, built, and brought to life.
You’ll hear compelling stories, learn surprising ideas, meet engaging characters, and discover unique voices.















