Delacombe Stadium

Delacombe Stadium

Delacombe Primary School is located in the growth corridor of Ballarat West in Victoria.

Enrolments are expected to increase.

Previously the school did not have a dedicated gymnasium facility and had partial use of the adjacent Doug Dean facility.

This was not of competition standard and provided poor internal comfort levels due to a lack of insulation and ventilation.

In addition, the school had identified the need for a flexible multipurpose room designed into the gymnasium.

They commissioned Kosloff Architecture to design a new stadium.

Detailed elements of the brief called for an indoor facility that would provide the maximum use potential from a wide range of users including school students and staff, local basketball and netball clubs as well as cricket/rugby/football clubs that would be seeking to use the amenities as an extension of the neighbouring community sports field.

Additional briefing items were for the project to provide a high-quality internal series of spaces that would be welcoming and warm, and appropriate for a range of activities beyond sports.

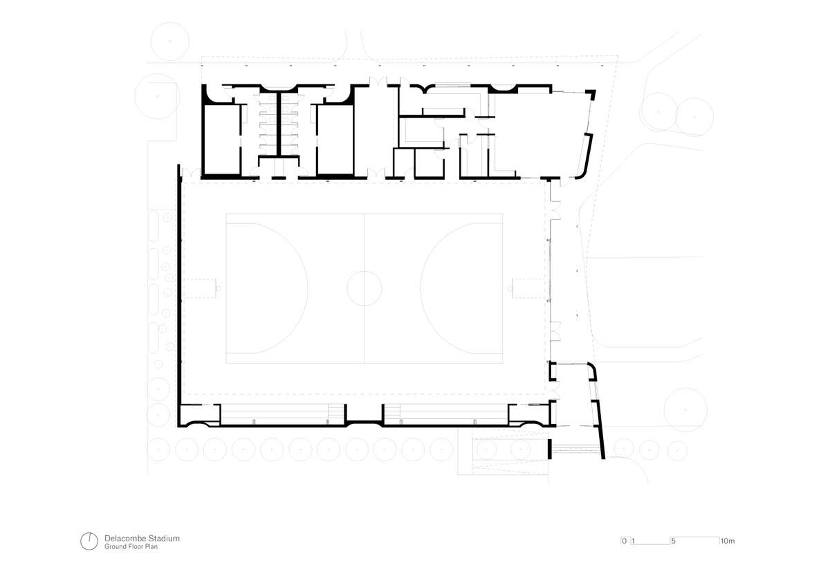
Acting as a ‘front door’ for Delacombe Primary School, the new stadium provides a contemporary and high-quality dedicated facility for competitive sports.

The project scope includes a competition-grade netball/basketball show court, amenities and change room facilities, storage, office, multipurpose/canteen spaces along with significant upgrades and improvements to the school street interface and adjacent play spaces.

The Kosloff Architecture design considered the importance of connection, with a shift from a community urban frontage to a smaller campus scale.

The siting and planning of the building arranged the much larger internal court volume facing the street, thus allowing for a student-scaled wing of lower height spaces to the north and east.

These lower height spaces allowed for direct amenities access from the outside, canteen access, and strong visual links between the internal spaces and outdoor areas allowing strong passive surveillance systems to operate.

The project has been designed with full wall and ceiling thermal insulation as well as acoustically absorbing internal wall and ceiling linings which reduce noise transmission and reverberation in the space.

The built outcome is a much calmer and quieter environment to occupy, with school assemblies, community events, presentations, and a wide range of other learning activities easily accommodated.

The stadium has a high focus on sustainability, using simple and passive design solutions to minimise the building’s environmental impact, with natural ventilation, light, and low-impact materials.

The passive design strategies utilised by the Kosloff Architecture design team allow the gymnasium to operate comfortably without the need for extensive air-conditioning or heating.

Insulation was provided not only to the roof but also to the full extents of the walls, and rigid insulation is also provided below the ground slab.

As Ballarat can be an environment of extremes, this insulative ‘coat’ allows the internal spaces to remain temperate during sub-zero temperatures, by providing a base stable internal temperature.

Natural air is brought in through low-level fans, with hot air exhausted at the high point of the roof.

Two large high-level industrial fans provide air circulation and an evaporative cooling effect for sports players.

These are virtually tuned to provide optimal airflow in warmer weather, increasing comfort in hot weather conditions and allowing extended usage and curriculum delivery beyond sports activities.

Southern diffuse natural light allows for reduced glare amenity and reduces the requirement for artificial lighting, whilst a deep undercover ‘eave’ surrounds the northern and eastern aspects, protecting from inclement weather and also reducing heat load in winter.

All external glazing is high-performance double glazing to allow the building higher levels of internal comfort without the need for mechanically augmented systems and fresh air is controlled by ‘smart’ C02 sensors distributed throughout the internal spaces.

These sensors continually monitor for occupancy levels and introduce fresh air as required automatically.

Rainwater is also being harvested from the new roof for use in irrigating school grounds.

As well as supporting after-hours and holiday care programs, Delacombe Stadium is being used by a diverse range of local sporting and community groups.

Project Details

Project Size – 1,480 m2
Site Area – 32,600 m2
Building Levels – 1
Completion Date – 2021

Project Team

Architecture

Kosloff Architecture

Kosloff Architecture believes that in order to build a highly engaged practice culture, they need to be willing to challenge existing ideas regarding ownership, succession planning, career trajectories, and modes of working.

www.kosloffarchitecture.com

Photography

Derek Swalwell

Derek is an architectural and editorial photographer from Melbourne, Australia. His name is synonymous with the photographic representation of the architectural landscape in Australia and beyond.

www.derekswalwell.com

Photo Gallery

Click on a thumbnail image to enlarge.

Design © 2022 Kosloff Architecture. All Rights Reserved.| Images © 2022 Derek Swalwell. All Rights Reserved.

The Builtworks Quest

At Builtworks, we’re on a multi-year quest to document, showcase, and spotlight the best of Australia’s built environment.

That’s why we’re creating this comprehensive online archive and educational resource that showcases a diverse and eclectic range of project types and scales.

Together with showcasing older exemplars of enduring merit, we spotlight and celebrate new and recent additions to Australia’s built environment.