Owner architect Robert Puksand describes his home as a ‘non-house’.
Although there’s a terrace-style typology due to the compact elongated site, the protruding exterior walls on the first floor cantilever into the foreground for privacy and sun shading.
Constructed in a new material called Permarock, the three-level house is as unconventional within.
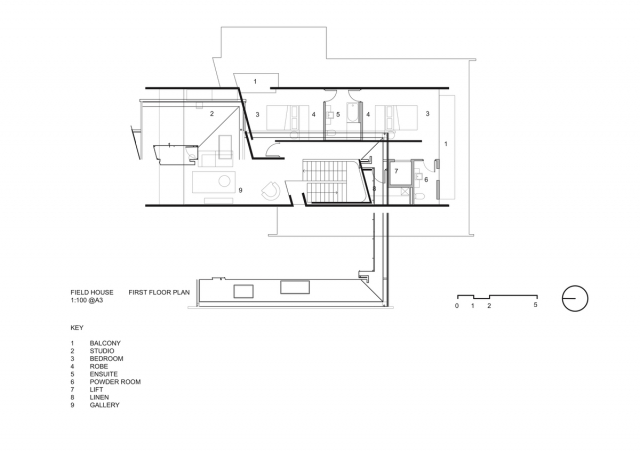
Loosely divided into living areas at ground level, including the main bedroom, with two additional bedrooms, a gallery and studio on the first floor, the delineation of spaces is ‘blurred’.
Elliptical-shaped walls set up sight lines that create new spatial perspectives, as does the controlled use of colour in the home, both inside and out.
While Puksand takes his craft seriously, he firmly believes that architecture should engage, activate and, importantly, engage the senses. And rather than being a static form, the house continually changes depending on where one happens to be within the home.
Project Details
Completion Date – 2017
Project Team
Architecture
Gray Puksand
Gray Puksand is a leading Australian architecture and integrated design practice with studios in Brisbane, Melbourne, and Sydney.
They create places of integrity designed to improve the way people work, learn and live.
Photography
Shannon McGrath
Shannon McGrath has been photographing architecture and interior design works for 15 years.
She is commissioned by pre-eminent architects and designers around Australia for her ability to get under the skin of a project, and not only capture its pure essence but also her client’s formal design intent.
Passionate and professional, Shannon’s images are known for their beautiful portrayal of light and form, with a soft realism that celebrates the subject matter.
Photo Gallery
Click on a thumbnail image to enlarge.
Design © 2021 Gray Puksand. All Rights Reserved.| Images © 2021 Shannon McGrath. All Rights Reserved.
Get the Builtworks Letter
In every edition of the Builtworks Letter, you’ll get the behind-the-scenes backstory as to how buildings are designed, built, and brought to life.
You’ll hear compelling stories, learn surprising ideas, meet engaging characters, and discover unique voices.















