The Balmoral House

The Balmoral House is located within the lower north-shore suburb of Balmoral in Sydney.

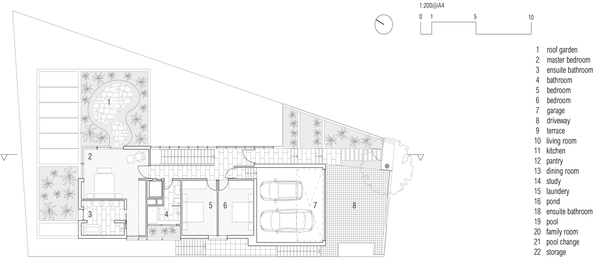
The site presents many difficulties.

It’s wedged shaped, on the low side of the street, hemmed in by two substantial existing houses and has just half the land area of its immediate neighbours.

Where previously the site would have enjoyed the benefits of a sunny rear yard beyond the rear building alignment, this is no longer the case with the yard having been sold-off to the neighbours.

CHROFI, a Sydney-based architectural practice, sought to find amenity, where on first appearance, there appeared to be little.

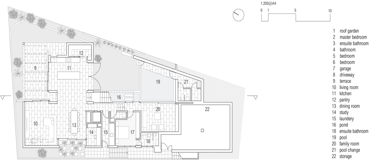
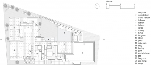
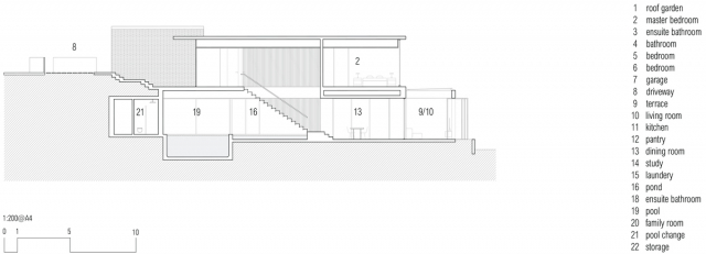
Their design stems from the first key observation; that the view to Middle Harbour is better from the lower ground level.

That was due to the height of the canopy of a nearby angophora that impedes views from the first floor level.

Placing the living areas on the lower ground level allowed the CHROFI design team to exploit setback controls to build closer to the rear boundary.

That delivered oblique views to the key local features of Balmoral Beach and Rocky Point Island.

[feature_box style=”5″ only_advanced=”There%20are%20no%20title%20options%20for%20the%20choosen%20style” alignment=”center”]

Get the Builtworks Letter

In every edition of the Builtworks Letter, you’ll get the behind-the-scenes backstory as to how buildings are designed, built, and brought to life. You’ll hear compelling stories, learn surprising ideas, meet engaging characters, and discover unique voices.



[/feature_box]

This strategy also provided the opportunity to extend these spaces into gardens and terraces to the limits of the site, maximising the sense of space of the ‘living domain’.

Every part of the site was utilised to create an array of connected interior and exterior spaces

The planning then became about ordering these living volumes and garden spaces to maximise access to view and sunlight and to structure them to accommodate an array of social situations for the young family of CHROFI’s client.

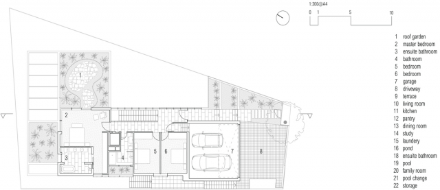
At first floor level, the garage and bedrooms are composed in a linear block perpendicular to the street.

This enable glimpses of district views from the street as a gesture to the public realm.

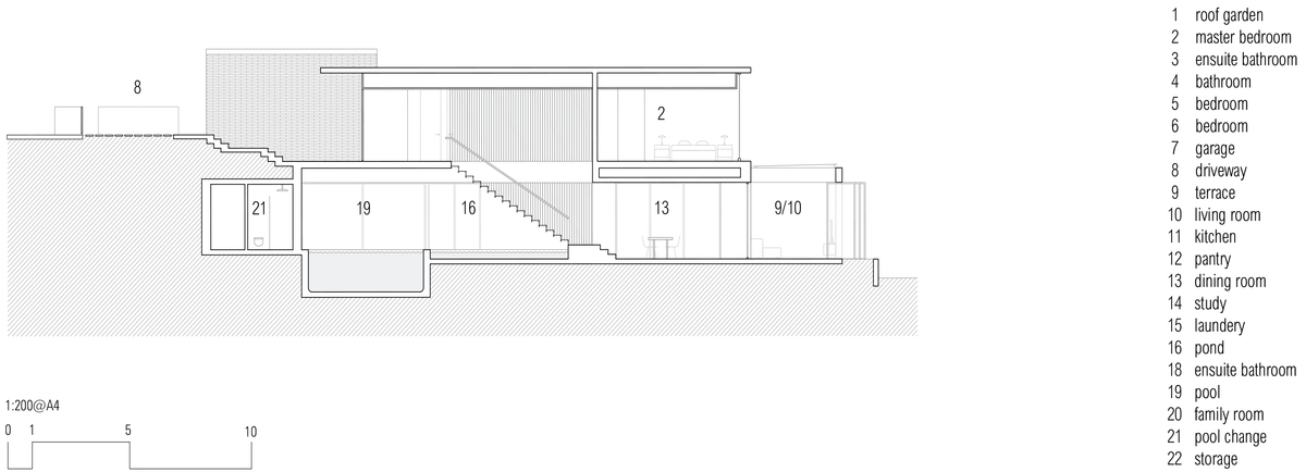
Critical to the success of the house is the journey from the street down to the living areas and vice versa.

A series of stairways break up the journey while the main glazed central stair is the centrepiece to the house as a light-filled piece of sculpture that hangs above a reflecting pond with pool beyond.

The architecture works as a series of stacked interconnected volumes that carefully manoeuvre down the site, wrapping around to establish a secluded light-filled courtyard and terrace area on the north-eastern side.

The expression is ‘minimalist modern’ to avoid visually complicating an already dense set of circumstances.

Warm natural materials including off-form concrete, neutral bricks, and blackbutt timber imbue the house with a calm quality.

And floor to ceiling glazing and large pivot and stacking doors create light-filled interiors, bringing the garden inside.

In the end, this design by CHROFI reverses the obvious strategy of an elevated living space with balcony facing the view.

Rather, the outcome is a grounded and compact family home sculpted around daylight, views to Balmoral and intertwined living and garden spaces that satisfy the social needs of a growing young family.

Project Details

Project Size – 264 m2
Completion Date – 2018
Building Levels – 2

Project Team

Architecture

CHROFI

CHROFI was founded in 2000 as Choi Ropiha following the win in the international competition for the re-design of the TKTS booth in Times Square, New York. The practice studio in Manly is now home to a team of 35 professionals headed by directors John Choi, Tai Ropiha and Steven Fighera.

www.chrofi.com

Photography

Katherine Lu

Katherine is a well-established, widely-published, and  Sydney-based commercial photographer specialising in architecture and interiors.

www.katherinelu.com

Clinton Weaver

Clinton is a commercial photographer in Sydney.

www.clinton-weaver.com

Photo Gallery

Click on a thumbnail image to enlarge.

Design © 2021 CHROFI. All Rights Reserved.| Images © 2021 Katherine Lu and Clinton Weaver. All Rights Reserved.

Get the Builtworks Letter

In every edition of the Builtworks Letter, you’ll get the behind-the-scenes backstory as to how buildings are designed, built, and brought to life.

You’ll hear compelling stories, learn surprising ideas, meet engaging characters, and discover unique voices.