Designed by Cox Architecture, the Footscray Nicholson Learning Commons was a major institutional initiative.
It sought to consolidate and create a highly visible address for each of the campus’ student services.
But it also had to maintain a cohesive identity for the facility overall.
And legibility that communicated with the diverse student cohort.
The project encompassed the refurbishment of 3,500m2 across two floors of a concrete and brick 1980s public works building.
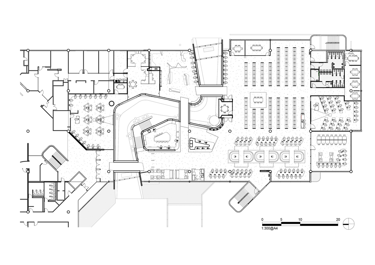
The Cox design outcome featured a meandering double-height laneway cut through the existing building, connecting the public space on each side and the two levels within the building.
The laneway references the scale and materiality of Melbourne’s vibrant and intimate city lanes, providing an easily recognizable access point for student services.
Double height internal facades along each side of the laneway open to the library, computer pit, cafeteria, career services, student engagement, and student support, each with a clear address and identity.
The volume of the laneway creates a panorama that encourages visual connection between spaces and levels.
This significant refurbishment and transformation have extended the useful life of the building with a greatly reduced ecological footprint compared to similar new-build development.
The project has been embraced by students and staff alike as the new heart of the campus and delivers a complex but unified environment for learning, technology, food, and interaction in an inherently legible and familiar space.
The Footscray Nicholson Learning Commons is a model of development likely to be more prevalent in established universities as funds come under pressure and significant new build works give way to adaptive reuse of existing structures.
Economically and environmentally, this approach is more sustainable than the demolition of sound but unfit for purpose existing buildings.
The significant intervention at the Footscray Nicholson Campus has provided a facility with the function and presence of a new build with a fraction of the new materials and environmental impact.
The project was also realized more quickly than a new build, minimizing the social impact on the student cohort.
The existing building at 32m wide had very poor daylight penetration, with the core functional spaces disconnected from the natural environment.
The project has opened an expansive skylight along the length of the commons lane, flooding the centre of the building with quality natural light.
Users are aware of the outside conditions as the quality of light changes through the day and at different times of the year.
Artificial lighting turns off automatically when natural lighting is sufficient.
The skylight is well insulated utilizing two layers of fibreglass sheeting and an additional layer of cellular polycarbonate sheeting.
The lane is also naturally ventilated when conditions are conducive.
The path cut through the existing waffle slab was plotted with the structural engineer to ensure a minimum of new steel support was required.
Only two new beams were needed to control the deflection of the existing slab.
Other ESD standard practice initiatives include low water use fittings, high quality and efficient artificial lighting, and low VOC and formaldehyde material selection.
Project Details
Project Size – 3,500 m2
Project Budget – $5,300,000
Completion Date – 2011
Project Team
Architecture
Cox Architecture
COX is a design-focused contemporary architectural practice with studios located in every major Australian city and a history spanning 60 years.
The key to their ethos is supporting the public life of our cities. Cox does this by ensuring each project makes positive contributions to its public realm – giving more than it takes.
Photography
Dianna Snape
Dianna Snape is an Australian architectural photographer based in Melbourne. She specializes in interiors, landscape, and architectural photography.
Her work features regularly in leading architectural and design magazines, both nationally and internationally.
Dianna is an Honours graduate of Melbourne’s RMIT BA (Photography) Course and has 15+years of experience in the field.
Photo Gallery
Click on a thumbnail image to enlarge.
Design © 2021 Cox Architecture. All Rights Reserved.| Images © 2021 Dianna Snape. All Rights Reserved.
The Builtworks Quest
At Builtworks, we’re on a multi-year quest to document, showcase, and spotlight the best of Australia’s built environment.
That’s why we’re creating this comprehensive online archive and educational resource that showcases a diverse and eclectic range of project types and scales.
Together with showcasing older exemplars of enduring merit, we spotlight and celebrate the very best new and recent additions to Australia’s built environment.






















