After the COVID-19 isolation period passes, a revitalised city heart awaits Perth commuters, shoppers and diners.
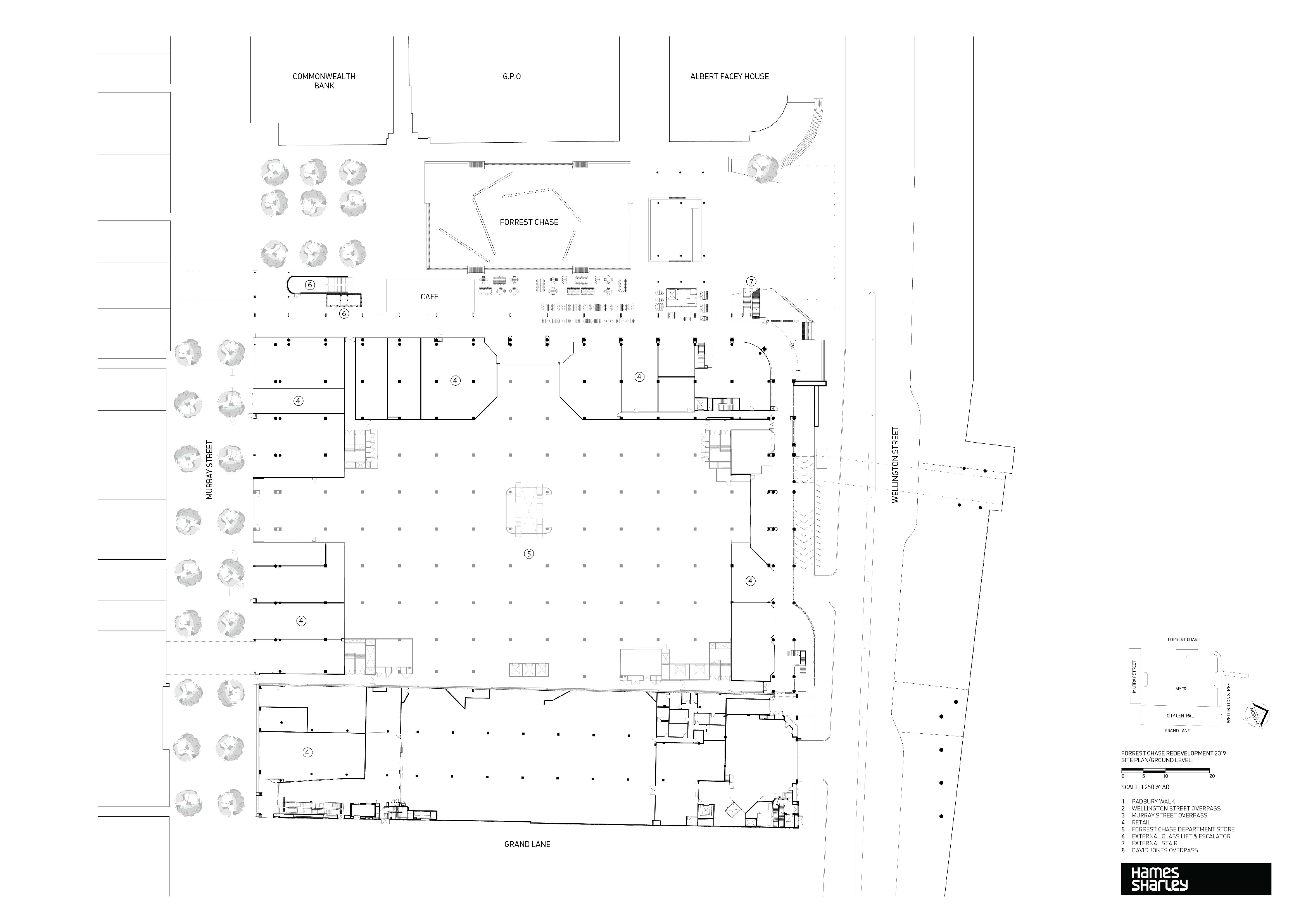
Renowned Perth architecture practice, Hames Sharley, were the lead architects on the redevelopment of Perth’s city centre, which includes a new façade for a large retail precinct, known as Forrest Chase, together with a re-imagined overpass on the Murray Street Mall and an enlivened gathering space, which locals refer to as Padbury Walk.
Hames Sharley Director Derek Hays says that although the design was conceived prior to the emergence of the COVID-19 pandemic, the approach was rigorously future-focused.
“Retail environments have been evolving for some time, as shoppers look to these hubs for much more than a retail experience,” Derek says.
“The desire to not only shop but to gather together for other recreational and/or dining experiences was evident long before the pandemic — and that pattern looks set to continue, long after the pandemic passes.”
In short, Hames Sharley’s goal was to elevate the precinct’s overall appeal.
“By improving connectivity between each site, and ‘future proofing’ for additional dining opportunities, the design helps facilitate greater engagement with all three locations,” Derek says.
Padbury Walk was originally constructed in the 1980s.
It is an elevated walkway that wraps around the perimeter of Forrest Chase.
Hames Sharley’s redesign focuses on the removal of previously existing visual and physical obstructions in the public realm.
And instead replacing it with the addition of a thin veil of stepping and layered fritted glass to provide improved sight lines to the retail shopfronts and adjacent Forrest Place, whilst still providing protection and thermal comfort for pedestrians.
The Walk’s original heavy concrete columns were replaced with steel columns to create a contrast with the masonry construction of the adjacent historic buildings, whilst maintaining the civic scale surrounding Forrest Place.
High aluminum-clad soffits, with glass skylights, create a grand scale and natural light for pedestrians and shoppers to enjoy.
By night, integrated and programmable LED lighting and large events LED screen allow the walkway to contribute to the vibrancy of the city after hours and during seasonal events in the city.
Two balconies located on the west and south elevations of the walkway provide future opportunities for retail outlets and pedestrians to break away from the main walkway to seamlessly observe city life.
Hames Sharley’s strategy for the Murray Street overpass was to redesign the bridge and canopy to invert the old structural design by locating the structural elements in the roof space.
This approach allowed for the introduction of delicate steel rods to suspend the thin concrete walkway and open sightlines to the city environs, Forrest Chase building, and retail located within.
A simple plane of the polished stainless steel was introduced to the soffit of the bridge with the intent to reflect the city’s activities to passers-by.
Finally, the perimeter retail offerings in Forrest Chase were re-planned to provide more appealing sized spaces in line with current retail requirements. And double-height shopfronts were designed to allow for retailers to fit out and revive Forrest Chase as a premier retail offering in Perth’s CBD.
Project Details
Project size – 43,000 m2
Completion date – 2020
Building levels – 2
Project Team
Architecture
Hames Sharley
Established in 1976, Hames Sharley has studios in Adelaide, Brisbane, Darwin, Melbourne, Perth, and Sydney. The practice only believes in opportunities – challenges and issues are only opportunities in waiting.
Their body of work is diverse and innovative with over ten areas of specialized and recognized expertise.
Photography
Douglas Mark Black
Douglas photographs architectural, design, and landscape architecture projects throughout Western Australia for local, national and multi-national client organisations within the construction sector.
With an international working background in architecture, Douglas brings a unique perspective to his photographic approach. His conceptual photography has been sold as limited edition fine art prints, used within commercial interiors projects, and featured on a number of international book covers.
Photo Gallery
Click on a thumbnail image to enlarge.
Design © 2020 Hames Sharley. All Rights Reserved.| Images © 2020 Douglas Mark Black. All Rights Reserved.
Get the Builtworks Letter
In every edition of the Builtworks Letter, you’ll get the behind-the-scenes backstory as to how buildings are designed, built, and brought to life.
You’ll hear compelling stories, learn surprising ideas, meet engaging characters, and discover unique voices.

















