Glasshouse @ Port Macquarie

Glasshouse @ Port Macquarie

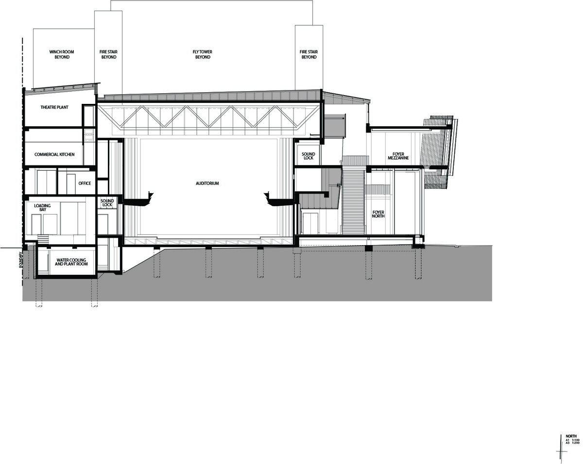
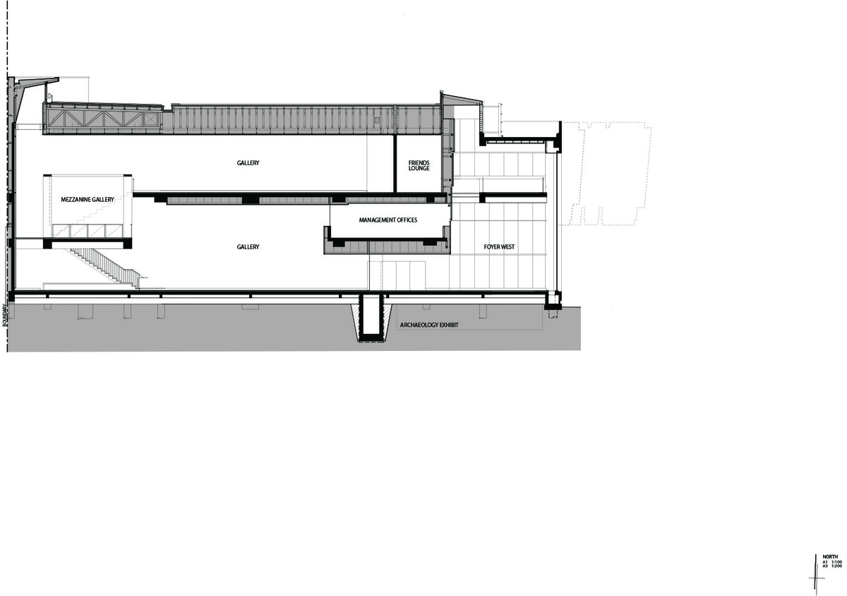
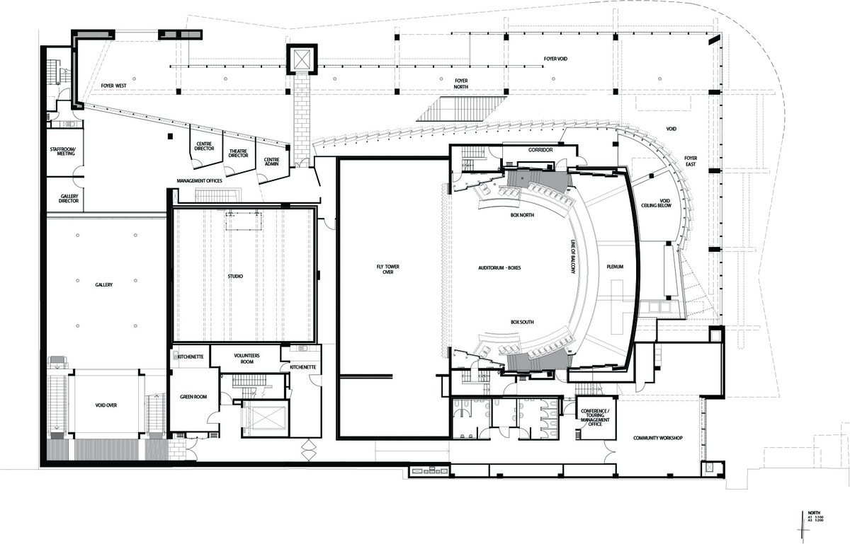
The Glasshouse: Arts Conference and Entertainment Centre comprises a 600-seat performing arts theatre, a 600m2 Regional Art Gallery, a studio theatre, conference facilities and a community workshop located in the centre of Port Macquarie, a rapidly-growing coastal city north of Sydney.

Designed by architects Tonkin Zulaikha Greer, their brief was to establish the Cultural Centre as the pre-eminent performance and exhibition arts facility in the region.

The design takes advantage of a view of the Pacific Ocean and is based on ‘openness’ and accessibility.

The gallery is located to share the foyer space of the theatre, allowing appropriate exhibitions to fill the public spaces of the building and, in low-visitation days, the centre to be operated with minimal staff.

Wrapped around the sculpted form of the tall auditorium, the foyers are open and glassy, and are naturally ventilated.

The foyer and building expression is generated by the contrasting orders of the city grid and the voluminous form of the theatre shell, with its level 3 echo, the glass ‘skirt’ cantilevering over Clarence Street.

Shaped voids and overhangs are created to facilitate street shade, airflow and an exciting architectural journey from street to auditorium.

The auditorium is a semi-traditional proscenium horseshoe, with a fully equipped lyric stage and fly tower.

Operable sound-screens enable the space to be used for classical concert music.

The orchestra pit is hydraulically raised and lowered to increase the flexibility of the space.

All sightlines have been computer modelled, and the sound performance designed to exacting standards.

The design anticipated significant archaeological relics from the Governor Macquarie convict era, in the form of footings of a series of 1820’s cottages.

They were not fully revealed until the existing site buildings were demolished, and once exposed the footings were preserved and revealed to the public in the basement and interpreted on the ground floor of the foyer.

The Tonkin Zulaikha Greer project team included Tim Greer, Trina Day, Regina Meyer, Roger O’sullivan, Peter Tonkin, Kon Vourtzoumis, Bettina Siegmund, Elizabeth Muir, Paul Rolfe, John Chesterman, Tamara Frangelli, Jennifer Fetner, Alison Osborne, Ben Daly, and Kon Vourtzoumis.

Project Details

Completion date – 2009

Project Team

Client

Port Macquarie-Hastings Council

Architecture

Tonkin Zulaikha Greer

Tonkin Zulaikha Greer has a special interest in public spaces, public buildings and “edge” architecture, often providing buildings with roles and uses outside their traditional functions.

The crossover between art and architecture is a springing point for a design philosophy, which takes each project as a new challenge, without reliance on established precedents.

Constant reinvention of their architecture brings a surprising diversity to their completed projects, with an on-going sense of exploration and discovery.

The work is consistently and thoughtfully grounded by appropriateness and sustainability.

www.tzg.com.au

Project Manager: Root Projects Australia

Quantity Surveyor: Currie & Brown

Structural Engineer: Simpson Design Associates

Façade Engineer: Arup Façade

Acoustics Engineer: Arup Acoustics

Services and Environmental Engineer: Steensen Varming

Hydraulics Engineer: Warren Smith and Partners

Access Consultant: Accessibility Solutions

BCA Consultant: Cityplan Services

Theatre Consultant: Entertech

Photography

Brett Boardman

Brett is a well-established commercial and architectural photographer based in Sydney.

www.brettboardman.com

Photo Gallery

Click on a thumbnail image to enlarge.

Design © 2020 Tonkin Zulaikha Greer. All Rights Reserved.| Images © 2020 Brett Boardman. All Rights Reserved.

Get the Builtworks Letter

In every edition of the Builtworks Letter, you’ll get the behind-the-scenes backstory as to how buildings are designed, built, and brought to life.

You’ll hear compelling stories, learn surprising ideas, meet engaging characters, and discover unique voices.