This project, designed by Sarah Kahn Architect, was a typical residential addition to an existing heritage listed terrace house.
But it was situated on a very special and unique site.
So it became an atypical project.
With the long western boundary directly abutting a leafy park plus street frontage to the site at both the front and rear of the property, the addition afforded a chance to maximize views of the park and to play with the sculptural 3D form of the new addition.
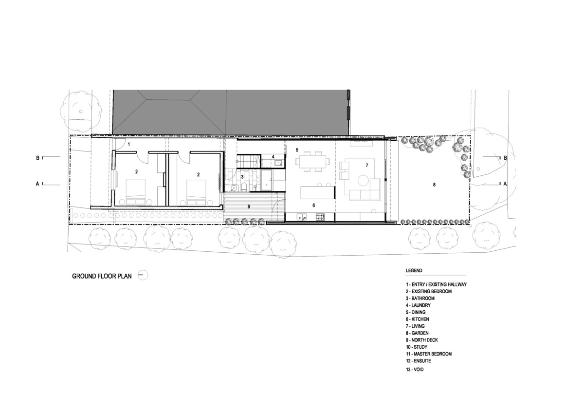
With a limited budget and a tight site, Sarah Kahn’s brief called for an update to the tired terrace house to create a modern three bedroom, two bathroom home for the young owner.
Increasing access to natural light and the very special views of the adjacent park were key aspects of the design, and creating more useable outdoor spaces directly connected to the interior.
Heritage overlays on the site called for retention of the existing front section of the house including the bedrooms and chimney.
The existing lounge and a series of rear additions were demolished to make way for the new addition, with the final completed house actually reducing the overall footprint on the site and creating a larger private rear garden and new north facing deck.
The new addition includes a bathroom, concealed laundry and an open living / dining / kitchen space on the ground floor with the master bedroom, ensuite and study on the first floor.
Light and volume are maximized within the small footprint of the addition by creating double height spaces and voids throughout the plan.
Windows at high level capture views of the surrounding roof-scapes and frame typical Brunswick views, beloved by the owner and architect alike.
The adjacent park becomes a part of the house with views of the mature trees captured along the park side of the house.
At ground level, wide glazed siding doors and full width windows connect the interior directly to the rear garden and new deck, making the relatively small spaces feel much larger.
The new addition is designed to contrast with the original retained house.
A robust red brick wall along the park boundary creates privacy and becomes a plinth for the new pale grey timber clad first floor form.
Reading as double height along the western boundary and raking down to single height on the east where it meets the neighbouring house, the first floor element becomes a sculpted and carved 3D form that seems to change shape as viewed from the park as you move around the property edges.
The external form is echoed internally, the ceiling rakes down dramatically through the double height living space highlighting the large windows facing the park.
Internally the finishes are simple and cost effective. White painted interiors are used throughout to maximize the light and feeling of space within the relatively small interior rooms.
Feature walls of natural finished plywood and dark painted timber window frames create contrast with the white and together create a simple backdrop for the owner’s eclectic furniture and art collection.
A pop of colour appears in the kitchen where the owner’s favourite teal colour is used in the joinery alongside white, black and plywood.
The final outcome is a home that has a very public face and embraces this exposure to the park, yet feels like a private sanctuary within.
Framed views and light enter the interior spaces throughout the new addition, providing glimpses of the surrounding neighbourhood and park at every step.
A site that was apparently seen by other potential buyers as a liability with its exposed boundary and public face, was luckily embraced as a rare opportunity by the owner and has now provided a unique setting and great potential for the completed home.
A little pot of gold.
Project Details
Project Size – 122 m2
Site Area – 183 m2
Project Budget – $470,000
Completion Date – 2020
Building Levels – 2
Architecture
Sarah Kahn Architect
Sarah Kahn Architect is a small, design driven-practice based in Melbourne. Their focus is on creating unique and light-filled residential spaces that connect with the outdoors. They work across a range of single new residences and alterations and additions projects.
www.sarahkahnarchitect.wixsite.com
Construction
PM and R Constructions
Led by Phillip Murdoch and Adam Robertson, PM and R Constructions are well-established residential builders based in Melbourne.
Photography
Tatjana Plitt
Tatjana is an award-winning artist and architecture/interiors photographer based in Melbourne. She completed her Bachelor of Media Arts at RMIT University and has exhibited her work throughout Australia and internationally.
Inspired by the power of architecture to shape how we feel, think and behave, Tatjana creates images that capture the mood and emotion of spaces.
Photo Gallery
Click on a thumbnail image to enlarge.
Design © 2021 Sarah Kahn Architect. All Rights Reserved.| Images © 2021 Tatjana Plitt. All Rights Reserved.
Get the Builtworks Letter
In every edition of the Builtworks Letter, you’ll get the behind-the-scenes backstory as to how buildings are designed, built, and brought to life.
You’ll hear compelling stories, learn surprising ideas, meet engaging characters, and discover unique voices.












