Designed by Atelier Red+Black, and set on a large picturesque block in suburban Melbourne, House in Silhouette is a contemporary home with country roots.
This large family home was designed with its context and client brief firmly in mind.
With accentuated gable forms and a durable material palette of corrugated steel and white painted brickwork, the house has a strong identity, yet sits quietly in the landscape.
In order to facilitate a busy family life, the home allows spaces to be easily closed off when not in use, or opened up when the need arises.
Another key consideration was embracing garden spaces, courtyards and the majestic eastern views.
In an area that is dominated by faux-heritage homes, House in Silhouette demonstrates how architecture can provide a sense of place to the street, whilst also providing a family home set in the landscape.
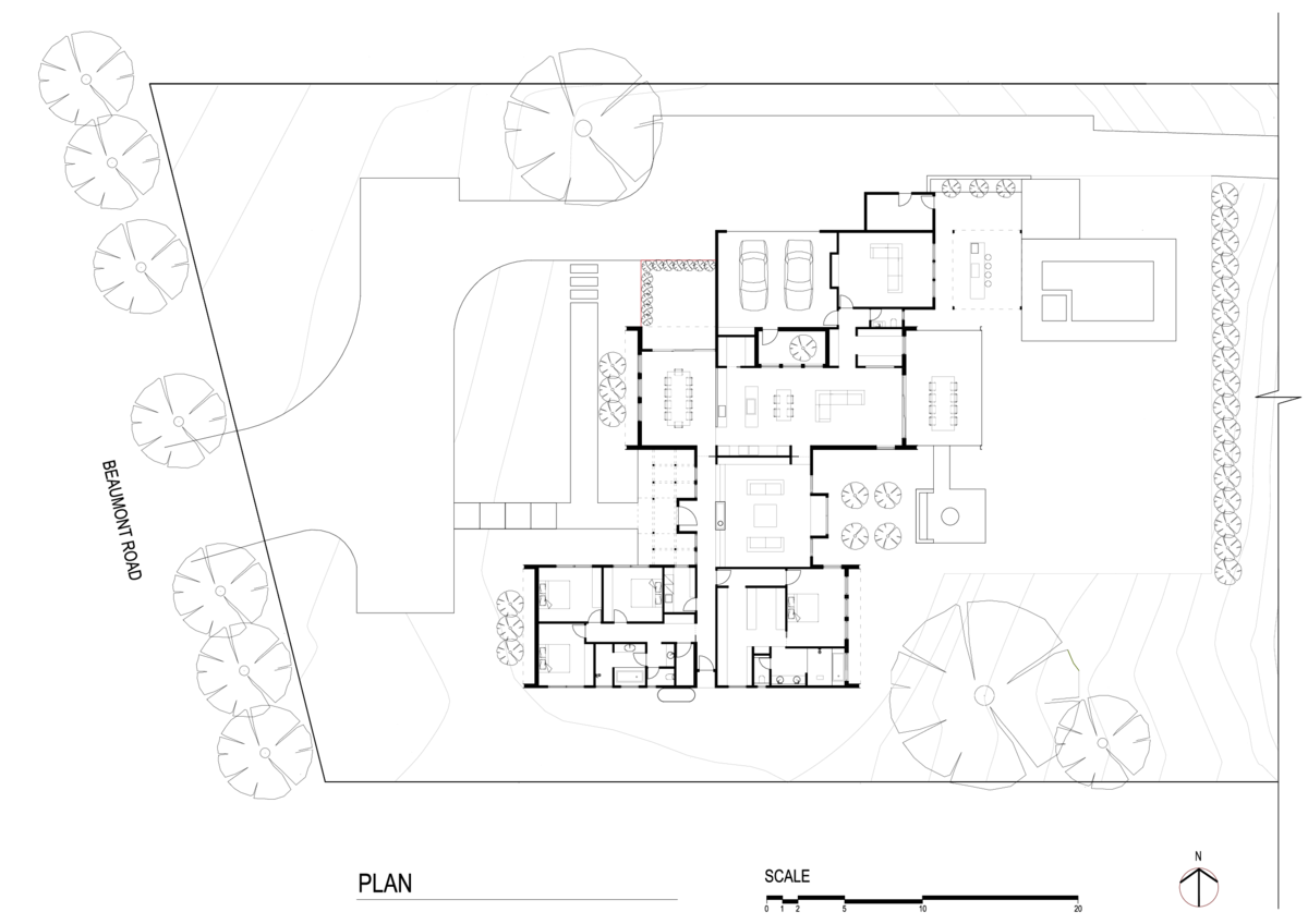
The brief for House in Silhouette was for a large family home on a sloping 1.6 acre site in Berwick.
As Melbourne’s suburbs have grown outward, Berwick now sits on the edge of the city.
Not rural, yet not suburban, the subject site is a low density lot, suitable for an equestrian enthusiast or a hobby farmer.
In order to respect this context, the design was envisaged as a contemporary and durable Australian house with strong visual references to a country farmhouse.
Central to the planning of the home was an inherent need for flexibility.
The home needed to operate in two distinct modes.
Firstly, as a luxurious yet efficient home for a couple approaching retirement.
The house also needed to accommodate the extended multi-generational family who would often stay during holidays.
To achieve this, a gabled wing containing 3 bedrooms and a bathroom can be completely closed off via sliding doors when not in use.
House in Silhouette is a piece of architecture that directly responds to its context and client brief.
In an area that is dominated by excessive, faux-heritage houses, House in Silhouette demonstrates how architecture can provide a sense of place to the street and suburb, whilst also providing a family home set in the landscape.
House in Silhouette was also designed to give the inhabitants an inherent flexibility to fully occupy the rooms in a way which would give them the full satisfaction and sentiment of home.
The idea was to enable active homemaking over time, rather than prescribing a space that would limit the choices of art or artefacts for the family.
This flexibility extended to the consideration of decorations for Christmas celebrations, which are a very important aspect for Atelier Red+Black’s clients.
Project Details
Project Size – 454 m2
Site Area – 6,816 m2
Completion Date – 2018
Building Levels – 1
Project Team
Architecture
Atelier Red+Black
Atelier Red+Black is a vibrant architecture practice led by Architects Sonia Sarangi and Michael Smith. The practice was founded in Fitzroy in 2014 and has completed a variety of projects right across metropolitan Melbourne.
Photography
Peter Bennetts
Peter’s work regularly features in the Australian publications Architecture Australia, Artichoke, Belle, Inside, AR, Monument, inside, and Vogue.
He is a frequent contributor to Wallpaper, Frame, Mark, Dwell, Domus, Casabella, and other international publications too.
Peter’s photography has appeared in numerous books including four monographs and the two volumes of the Phaidon Atlas of Contemporary World Architecture.
Peter’s architectural images have been described as having “a remarkable crystalline stillness” and he is known for his “straight-shooting” style of architectural photography, focusing on the formal, material and atmospheric qualities of a project.
Photo Gallery
Click on a thumbnail image to enlarge.
Design © 2021 Atelier Red+Black. All Rights Reserved.| Images © 2021 Peter Bennetts. All Rights Reserved.
Get the Builtworks Letter
In every edition of the Builtworks Letter, you’ll get the behind-the-scenes backstory as to how buildings, structures, and places are designed, built, and brought to life.
You’ll hear compelling stories, learn surprising ideas, meet engaging characters, and discover unique voices.



































