Designed by Ashley Halliday Architects, the Kangaroo Island Air Terminal is more than a state-of-the-art regional air transport hub.
It is a unique world-class cultural venue.
More than a landmark, image or icon, it is the product and instigator of dialogue – interaction and exchange between people, with the terminal and its breathtaking natural setting.
Its figure, originality, and future are inspired by research, understanding and dialogue with the island’s inhabitants.
Shared design principles underpin all design decisions at every scale including:
- Seclusion (Island)
- Connection to Unspoilt Nature
- Personal Relationships
- Authenticity
- Peace and Restoration
Seclusion (Island)
Kangaroo Island is first and foremost a land apart.
Located off mainland South Australia, KI is a secluded island and a place of extremes where powerful forces shape the remote coastline and nature balances precariously and beautifully in harmony at the edge of the Southern Ocean.
It is a unique destination and arch Ashley Halliday Architects’ architectural response was appropriately unconventional, distinctive, and deeply connected to place.
Their architectural response was something ‘different’ – innovative, unexpected, facilitating of the experience of arriving at a secluded island, and in harmony with nature.
It comfortably immerses people in KI’s unique natural environment and enchants them with serendipitous moments of discovery, surprise, peace, and tranquillity – creating a powerful, intimate, and memorable experience.
Whilst meeting IATA Class C terminal design guidelines, conventional design paradigms (pedestrian flow and security) were challenged and transcended.
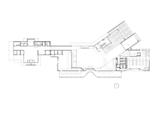
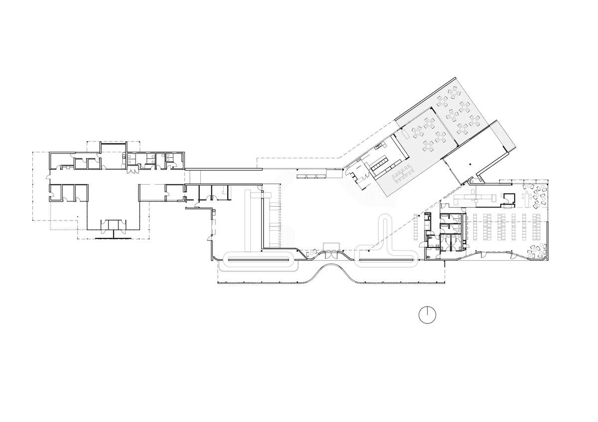
The compartmentalised nature of conventional terminal planning was carefully unpacked by the Ashley Halliday design team.
Open space flows freely through the interior of the terminal following well-defined circulation patterns.
Arrivals, departures, and visitors are focused around a central hub space – achieved by adding a third diagonal leg to the terminal pier and co-joining it with the generous check-in and arrivals hall to create a highly flexible multi-use (24-hour) KI brand hub; comprising a cafe, bar, kitchen, retail, art gallery, exhibition, promotion, and function space.
The brand hub showcases healthy, natural, and genuine products that are made on the island.
A natural, welcoming and restorative ambience is created through an open plan layout, legible wayfinding, an abundance of natural lighting and ventilation, and an uncomplicated material palette including:
- warm grey tile flooring
- hardwood and local limestone feature walls
- off-white wall linings
- high-performance clear glass
- black steel bar detailing
Kangaroo Island’s characteristic unspoilt natural landscape is framed by the converging roof form and expansive glazed wall framing presenting a memorable scenic vista from most vantage points within the terminal.
The terminal’s enhanced’ community function has strengthened the terminal’s cultural purpose and smoothed out the peaky nature of morning and evening aircraft arrivals that originally left the terminal empty and without purpose during the day.
Connection to Unspoilt Nature
Kangaroo Island’s soul is synonymous with its unique environment, wildlife, and natural features.
The design team’s architectural response promotes a unique and engaging dialogue between guests, KI’s iconic un-spoilt natural landscape, its history, and local produce – blurring the boundaries between indoors and outdoors and giving primacy to nature.
Arriving passengers are greeted by a simple and elegant contemporary building sitting distinctively within Kangaroo Island’s characteristic open and unspoilt natural setting.
An engaging, sensitive, sophisticated, and simple architectural language was developed by Ashley Halliday Architects that doesn’t intrude upon nature.
The built form exists in harmony with the landscape.
Arrivals are greeted by a striking curvilinear weathered timber façade, detailed to express and celebrate the effects of weather and time – an authentic and defining aspect of the island’s weather-beaten character and resilience.
The terminal’s arrival door is identified by a salient white veil that echoes the movement of the curved and weathered facade.
Arrivals are instantly connected to country, being afforded an epic view of nearby native scrub land immediately upon entry.
The terminal architecture is defined by the profound experience it offers travellers as a purveyor of a unique natural landscape.
Design strategies developed and deployed by Ashley Halliday Architects for this project included:
- amplifying people’s awareness of the unique landscape through visual transparency
- façade breathability
- weather protection
- tactile physical connection with the elements (earth, air, fire and water)
- innovative ecologically sustainable design strategies that promote health and well-being
- a refined, elegant and timeless contemporary building envelope that exudes practicality and simplicity
Personal Relationships
The Kangaroo Island Community is passionate, welcoming, sincere, and inspired by its unique surroundings.
Kangaroo Island has ‘that’ effect.
It’s an extraordinary hub and circulation nexus where people welcome, reconnect, rebuild, farewell, work and exchange quality produce – fundamentally a place for people.
The terminal architecture as envisaged by the Ashley Halliday design team optimises traveller experience, aids in their orientation on Kangaroo Island, and promotes positive personal interaction and commercial exchange – promoting the island’s people, their story, and future potential.
To achieve this, the building listens as much as it speaks.
Authenticity
One of Kangaroo Island’s unique aspects is the authenticity of its people and the diverse range of authentic experiences it offers.
Ashley Halliday Architects’ design process involved close collaboration with Kangaroo Islands brand partners (local goods and services), artists, and contractors, to develop a unique design concept that truly represents and showcases Kangaroo Island.
The design team’s approach that allowed the islanders to colonise the air terminal and make it their own with their unique produce, artwork, native nursery plants, and labour bodes well for the architecture to continue its purpose in instigating future dialogue.
Peaceful/Restored
Kangaroo Island is a much sought-after destination for its peaceful and restorative qualities. The KI terminal welcomes people to KI’s unspoilt natural landscape and inspires them to continue their journey and ‘go-within’ – to be inspired by nature with moments of deep clarity, connection, and peace.
The terminal is comfortable, small-scale, and well-appointed, offering thoughtfully considered facilities with a few simple luxury touches.
The look and feel are something different – more ‘nature-lodge’ than ‘commercial terminal’.
It is innovative, unexpected, and facilitates the experience of nature and wildlife.
The terminal comfortably introduces people to KI’s unique natural environment and offers serendipitous moments of discovery, surprise, peace, and tranquillity – creating a powerful, intimate, and memorable experience.
Health and well-being are promoted in the terminal through an ambitious and intelligent ESD (Environmentally Sustainable Design) approach.
Highly innovative energy, natural ventilation, and dynamic thermal modelling assessment influenced the building’s geometry, envelope, facade porosity, materiality, and indoor climate strategies.
Design elements that will deliver significant environmental benefits to the island and enhance its growing international reputation include:
- significantly reduced energy consumption and costs, achieving net-zero carbon emissions (through the addition of an additional 70 kW solar PV system)
- promoting the island’s electric car charging network initiative
- creating a predominantly naturally ventilated and daylit environment that provides significant health benefits to users of the terminal through enhanced indoor air and light quality
Project Details
Project Size – 2,100 m2
Project Budget – $7,000,000
Completion Date – 2018
Building Levels – 1
Project Team
Architecture
Ashley Halliday Architects
Ashley Halliday is an acclaimed contemporary architecture and interior design practice rapidly drawing attention for its high profile and award-winning work.
Photography
Sam Noonan
Sam Noonan is a specialist architectural and interior photographer based in Australia.
Photo Gallery
Click on a thumbnail image to enlarge.
Design © 2022 Ashley Halliday Architects. All Rights Reserved.| Images Sam Noonan © 2022. All Rights Reserved.
The Builtworks Quest
At Builtworks, we’re on a multi-year quest to document, showcase, and spotlight the best of Australia’s built environment.
That’s why we’re creating this comprehensive online archive and educational resource that showcases a diverse and eclectic range of project types and scales.
Together with showcasing older exemplars of enduring merit, we spotlight and celebrate new and recent additions to Australia’s built environment.




















