Kelvedon Park in Tasmania is home to the Taroona Football Club.
But despite being arguably the most picturesque ground in Australia, the original change rooms were obsolete and the Club needed additional change rooms, club rooms, and amenities to cater for increased participation.
So AKA Architects were commissioned.
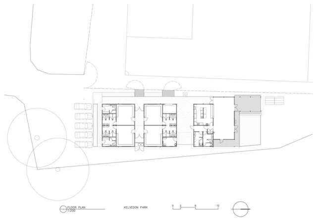
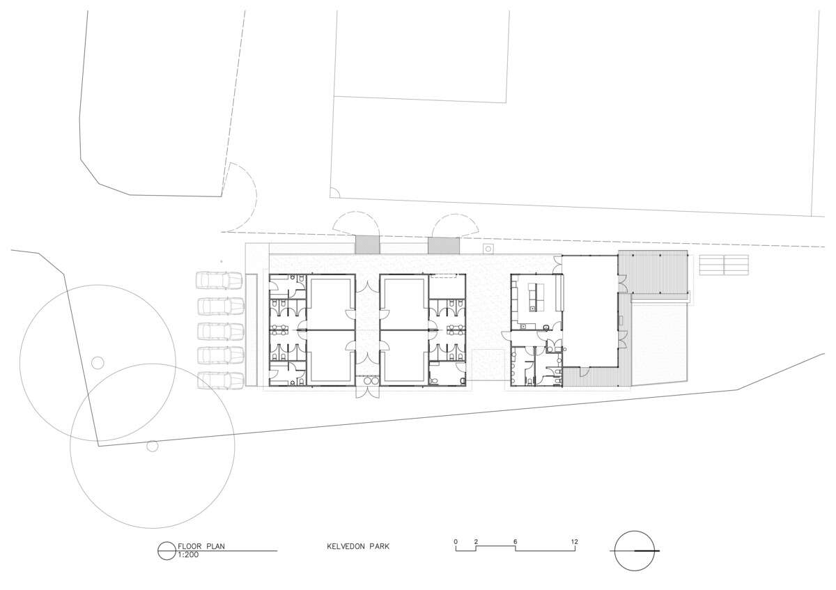
Their design comprised a pavilion that stretches long and low between the pitch and the water.
The design team minimised the height and form to reduce the visual impact on neighbours.
And degrees of transparency offer views over and through the building to the water beyond.
The new building combines a range of enclosed and undercover spaces for diverse user groups including players, match officials, volunteers, and spectators.
Four change rooms and two referee rooms allow male and female matches to be played one after the other.
AKA Architects carefully considered the sequence of spaces; a covered walkway leads past the change rooms to the function space, with framed water views revealed between the pavilions.
The function space is located at the northern end, central to the pitch, and opens out to enviable views of the Derwent River below.
A covered verandah extends pitchside, providing an elevated and protected platform for spectators in all weather conditions.
And the sheltered external spaces are open and accessible for the community to enjoy year-round.
The architect’s extensive background in team sports helped contribute to a successful program resolution.
Their understanding of matchday sequences and the needs of facility users enabled a measured design, reducing the number of fixtures and maximising efficiency.
Minimising duplication, both of materials and space, was important when presented with budget and site constraints.
Early collaboration between the architects and engineers developed an economic structural strategy that included a lightweight structure and separate slabs able to move independently.
The ply lining used throughout the change rooms doubles as structural bracing.
Continued involvement during construction saw the architect and builder work closely together.
Collaboration with a landscape architect saw low-maintenance, water-sensitive native landscaping integrated into the design.
The simple palette of materials selected by AKA Architects was durable, economical, and beautiful.
Abundant natural light and ventilation, combined with warm and natural materials, make for a welcoming experience for participants to enjoy.
The function space enjoys the benefits of passive solar design – heating is rarely required, even during the colder months.
The project has been warmly embraced by the community it serves and the fortunes of the Club – both on and off the field – have improved dramatically.
Last season the women’s team went undefeated and has recently been readmitted to the Womens’ Super League.
Funding for the project came from a variety of sources, including a “Leveling the Playing Field” grant to improve facilities for female participation.
Restraint and carefully considered design were required to deliver a high-quality public building with natural light, colour, texture, rhythm, and warmth rarely seen in a regional community sports facility.
AKA Architects’ clients are very pleased with the result saying, “Taroona Football Club’s new rooms at Kelvedon Park have transformed the club and set us up for a successful future.
Already, the rooms have provided the Club with the quality facilities required to support our application to enter the Women’s Super League Competition which has led to our successful re-entry into top-tier women’s football in Tasmania in 2021.
Most importantly, the rooms have created a sense of excitement within the club and have created many opportunities for members to get together both with team-mates and others within the football community for training purposes and socialising.“
Project Awards
RAIA Tas Chapter People’s Choice Award 2021
Project Details
Project Size – 320 m2
Site Area – 25,360 m2
Completion Date – 2020
Building Levels – 1
Project Team
Architecture
AKA Architects
Tasmania-based AKA Architects delivers site-specific designs responsive to people, climate, and place providing socially, economically, and environmentally responsible design whatever the purpose or application.
Photography
Natasha Mulhall
Natasha has established relationships with valued clients in the architectural, tourism, and community sectors, such as Liminal Studio, Brand Tasmania, The Taste of Tasmania, and Landcare Tasmania.
Photo Gallery
Click on a thumbnail image to enlarge.
Design © 2022 AKA Architects. All Rights Reserved.| Images © 2022 Natasha Mulhall. All Rights Reserved.
The Builtworks Quest
At Builtworks, we’re on a multi-year quest to document, showcase, and spotlight the best of Australia’s built environment.
That’s why we’re creating this comprehensive online archive and educational resource that showcases a diverse and eclectic range of project types and scales.
Together with showcasing older exemplars of enduring merit, we spotlight and celebrate new and recent additions to Australia’s built environment.



















