Architect Adele McNab was briefed by her sausage-manufacturer client to design additional production and storage space, a new product showroom, and a kitchen for their warehouse.
The project started with a study of materials best suited to withstanding salt (used to preserve natural sausage casings), the hardiness of a working warehouse, and meeting specific food safety standards.
Instead of deploying a standard design, a fresh and inspiring concept was created, whilst always delivering on function.
Refrigeration equipment is required for preservation of the product and it consumed the bulk of the budget.
Rather than compromise the design, a simple and inexpensive material palette was utilised in a way that enhanced it.
Among other details, the stainless steel kitchen benchtop has a slender design with its shark tooth edge detail and the fibre cement splashback works cohesively with the tone of the cabinet doors and concrete walls.
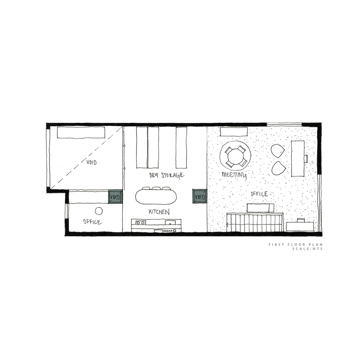
The kitchen is at the heart of the warehouse space with its open, warm and comfortable design.
The concept is designed for people to gather, cook, and converse about sausage making.
With capacity for cooking classes, a specially designed sausage making room, and interactive product display, the space makes butchery fun and accessible to all.
The upstairs area was doubled in area through building a new mezzanine.
Exposed raw concrete replaced the old plaster board walls and an open balustrade allowed visibility and flow into the downstairs production area.
A new double height ceiling was integrated with pendant lighting to create both a lofty and intimate experience. The ceiling was finished in a tonal green to complement this.
The material palette consisting of concrete, stainless steel and plywood, to give a no frills and fresh look consistent with the business’ focus on transparency and innovation.
Translucent polycarbonate walls and lightwells spread natural light throughout the whole warehouse.
Round portal windows also provided light into, and visual relief from, the confines of the refrigerated area.
These features limited the need for artificial lighting and made the space more enjoyable to work in.
Adaptive reuse of materials was thoughtfully considered with this project.
For example new cupboard fronts adorned the existing kitchen joinery internals. And existing furniture was restored or materials reused for new furniture pieces.
Stripping back the existing plasterboard walls to expose the structural concrete walls beneath, reduced the need for new material usage and expressed the simple and functional finish palette of the project.
Fixed windows can now be opened for cross ventilation and connection with the outdoors; a connection strengthened by a multitude of plants.
The passive cooling and lighting has reduced power usage.
And these features have also increased worker satisfaction.
Project Details
Project size – 183 m2
Site size – 99 m2
Project Budget – $155,000
Completion date – 2019
Building levels – 2
Project Details
Architecture
Adele McNab Architect
New Zealand born, and now Sydney based, Adele McNab graduated from Unitec School of Architecture with a Bachelor and Masters degree in architecture. While studying in NZ she worked for an architecture practice specialising in hotels throughout NZ and the Pacific Islands. As a Graduate Architect Adele moved to Australia working at Bruce Stafford Architects for 7 years as Project Architect for high end residential projects across Sydney and New Zealand.
Photography
Ben Hosking
Ben Hosking is an Architectural Photographer from Melbourne, Australia. He studied photography at RMIT, and has worked as a freelancer in the field since 2008. His work has been published both locally and internationally by publishing houses such as Taschen, Gestalten, and Thames and Hudson.
Photo Gallery
Click on a thumbnail image to enlarge.
Design © 2020 Adele McNab. All Rights Reserved.| Images © 2020 Ben Hosking. All Rights Reserved.
Get the Builtworks Letter
In every edition of the Builtworks Letter, you’ll get the behind-the-scenes backstory as to how buildings are designed, built, and brought to life.
You’ll hear compelling stories, learn surprising ideas, meet engaging characters, and discover unique voices.













