Designed by Cox Architecture, the National Institute of Circus Arts (NICA) project involved the construction of new training and performance spaces as an expansion of existing facilities.
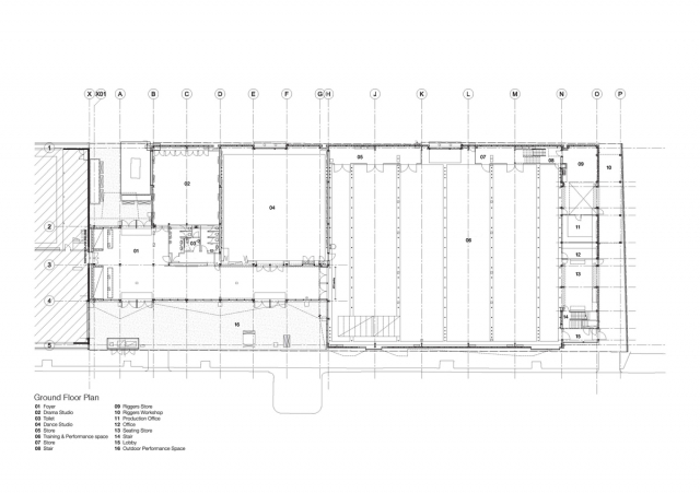
The design and briefing process extended to include a master plan for the precinct that included a performance and training space with 800-seat capacity, movement and drama studios, a multipurpose foyer space to support public performance and exhibition, an outdoor performance/gathering space, and associated ancillary spaces.
Through the reinterpretation of the dialogue between performer and stage, this contemporary home for the circus arts showcases and supports a thriving industry in a facility that expresses the potentialities of innovative training and performance techniques.
Over-scaled backstage doors shout “roll up, roll up”, while a contextually and theatrically inspired blue glass ribbon playfully signifies the visual tag of the street and institution, flowing and dancing across the façade of the building.
The flexible and efficient structural design supports numerous rigging configurations and catwalk systems to enable the facility to attract and conduct a myriad of events.
Simple operational systems have been designed so operation and maintenance can occur with minimal professional oversight, maintaining accessibility to the broadest possible range of users and promoting genuine community engagement.
Project Details
Project Size – 2,200 m2
Project Budget – $7,500,000
Completion Date – 2007
Project Team
Architecture
Cox Architecture
COX is a design-focused contemporary architectural practice with studios located in every major Australian city and a history spanning 60 years.
The key to their ethos is supporting the public life of our cities. Cox does this by ensuring each project makes positive contributions to its public realm – giving more than it takes.
Photography
Dianna Snape
Dianna Snape is an Australian architectural photographer based in Melbourne. She specializes in interiors, landscape, and architectural photography.
Her work features regularly in leading architectural and design magazines, both nationally and internationally.
Dianna is an Honours graduate of Melbourne’s RMIT BA (Photography) Course and has 15+years of experience in the field.
Photo Gallery
Click on a thumbnail image to enlarge.
Design © 2021 Cox Architecture. All Rights Reserved.| Images © 2021 Dianna Snape. All Rights Reserved.
The Builtworks Quest
At Builtworks, we’re on a multi-year quest to document, showcase, and spotlight the best of Australia’s built environment.
That’s why we’re creating this comprehensive online archive and educational resource that showcases a diverse and eclectic range of project types and scales.
Together with showcasing older exemplars of enduring merit, we spotlight and celebrate the very best new and recent additions to Australia’s built environment.














