Powell Street House

Powell Street House

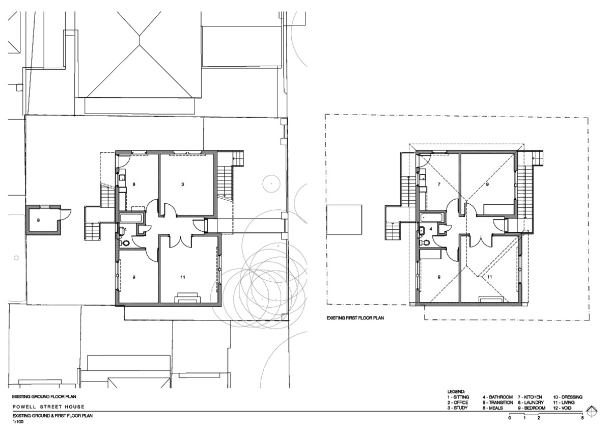
Occupying a compact site in South Yarra, this existing 1930’s duplex comprised a ground floor and first-floor apartment, each with its own external access.

Robert Simeoni Architects’ clients wanted to unite these two dwellings to form a single residence.

The existing house had a quiet interior and muted light.

The design was developed in response to this with deliberate quietness, and the creation of a long diagonal view through the existing shallow floor plan.

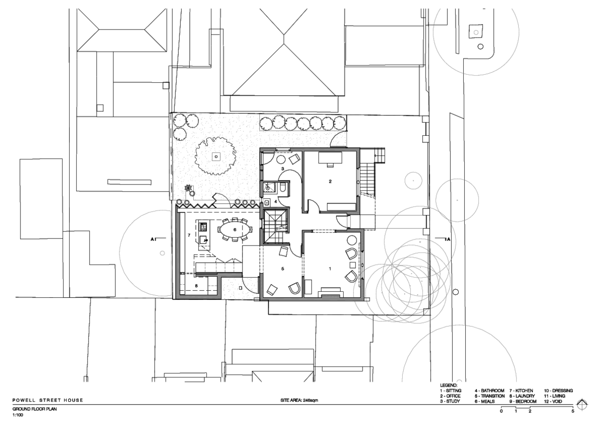
The ground floor addition formed a double-height volume that incorporates a carefully located high-level window and was conceived as a quiet space, with ambiguous connections between the existing and the new, the outside and inside.

Bathrooms were designed with a selection of materials evocative of the 1930’s architecture of the original house.

The addition and the new architectural elements read as newly inserted elements within the existing fabric, and contrast with the materiality of the original.

This is expressed in the use of steel for the window frames and external cladding.

Views were curated through the new steel windows utilising a combination of clear and opaque glazing.

Internal colours were selected to connect spaces and respond to the varying volumes and light conditions throughout the house.

Project Details

Project Size – 190 m2
Site Area- 234 m2
Completion Date – 2018
Building Levels – 2

Project Details

Architecture

Robert Simeoni Architects

Robert Simeoni Architects was established in 1996 and has developed a reputation for carefully considered design, detail, and construction.

The practice has a reputation for producing high-quality architecture across a variety of typologies including residential, religious, institutional, public, and community buildings.

www.robertsimeoniarchitects.com

Photography

Derek Swalwell

Derek is an architectural and editorial photographer from Melbourne, Australia. His name is synonymous with the photographic representation of the architectural landscape in Australia and beyond.

www.derekswalwell.com

Photo Gallery

Click on a thumbnail image to enlarge.

Design © 2021 Robert Simeoni Architects. All Rights Reserved.| Images © 2021 Derek Swalwell. All Rights Reserved.

The Builtworks Quest

At Builtworks, we’re on a multi-year quest to document, showcase, and spotlight the best of Australia’s built environment.

That’s why we’re creating this comprehensive online archive and educational resource that showcases a diverse and eclectic range of project types and scales.

Together with showcasing older exemplars of enduring merit, we spotlight and celebrate the very best new and recent additions to Australia’s built environment.