This family home, designed by Steffen Welsch Architects, aims to reduce operational energy through passive solar and services and minimise embodied energy through compactness and choice of materials.
Passive solar design principles were applied rigorously: zoning, layout, planning, building form, material selection, solar control, cross ventilation, and details that reduce thermal bridging.
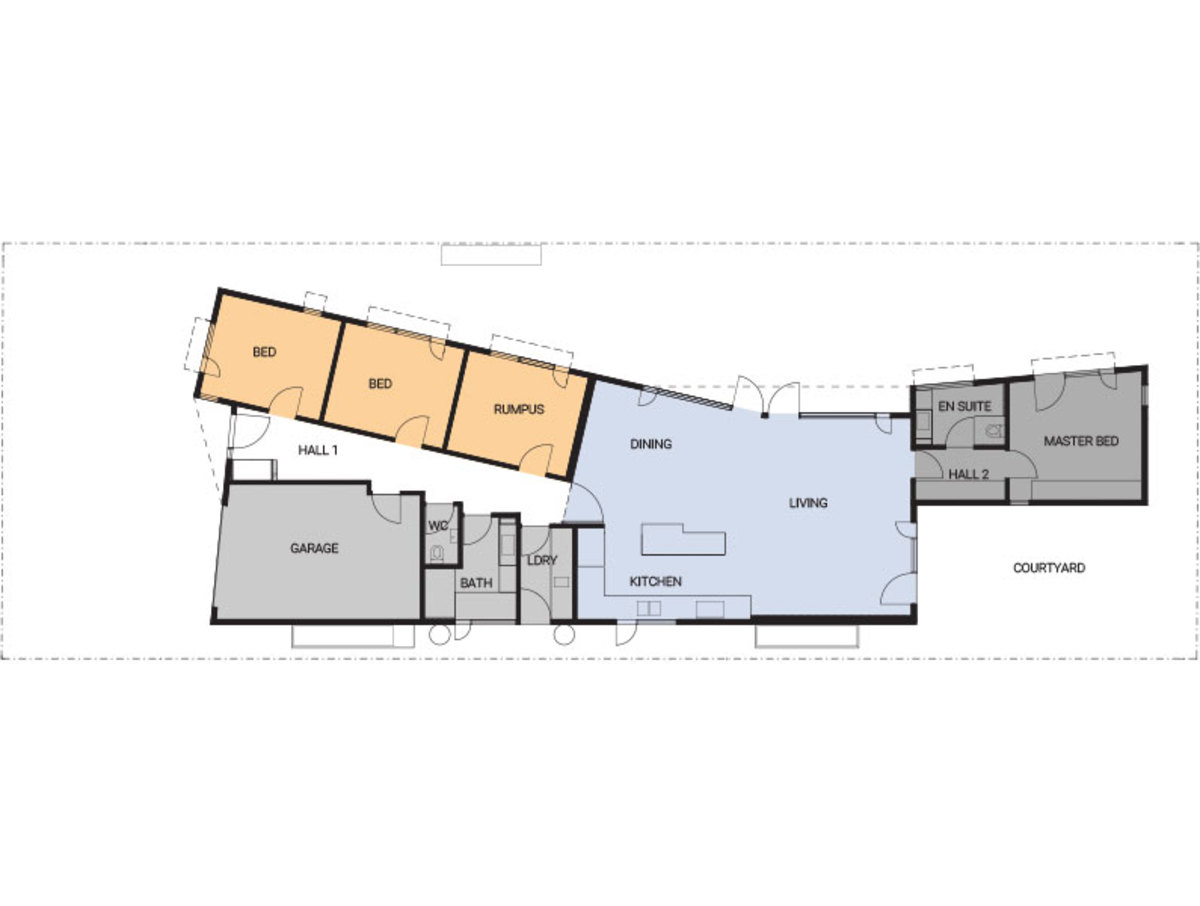
All habitable rooms face north, storage and utility areas face south.
The footprint is smaller than that of similar homes.
The materials were chosen for optimum thermal performance and low embodied energy where possible: timber trusses instead of structural steel, recycled brick, FSC certified timbers, double and triple glazed windows and insulated hatches.
As a result, the home achieves a rating of 7.4 stars.
The roof is laid out to accommodate an 8.7kw solar PV System and 11,200 litres of rainwater storage is connected to garden, WC, laundry, shower, and all vanities.
Hot water and hydronic underfloor heating rely on heat pumps; there is no gas.
The building is modest.
But a simple twist in plan, roof overhangs and expressive sun shading give it a generosity like that of a Californian Bungalow.
Project Details
Completion Date – 2019
Building Levels – 1
Project Team
Architecture
Steffen Welsch Architects
Steffen Welsch Architects provide architectural services through an entire project from establishing a project brief to design, planning, documentation and construction and post construction evaluation.
Photography
Tatjana Plitt
Tatjana is an award-winning artist and architecture/interiors photographer based in Melbourne.
She completed her Bachelor of Media Arts at RMIT University and has exhibited her work throughout Australia and internationally.
Inspired by the power of architecture to shape how we feel, think and behave, Tatjana creates images that capture the mood and emotion of spaces.
Photo Gallery
Click on a thumbnail image to enlarge.
Design © 2020 Steffen Welsch Architects. All Rights Reserved.| Images © 2020 Tatjana Plitt. All Rights Reserved.
Get the Builtworks Letter
In every edition of the Builtworks Letter, you’ll get the behind-the-scenes backstory as to how buildings are designed, built, and brought to life.
You’ll hear compelling stories, learn surprising ideas, meet engaging characters, and discover unique voices.















