Orchard Manufacturing Co.

Orchard Manufacturing Co.

BENT Architecture designed a new facility for Orchard Manufacturing, offering a new approach to factory design that creates a happy and healthy workplace inspired by nature.

As a company, Orchard Manufacturing espouse a natural ethos.

Yet it’s hard to imagine an environment further removed from nature than a manufacturing plant.

Inspired by the ideology of artist and activist Friedensreich Hundertwasser, BENT Architecture’s design this new production facility is different.

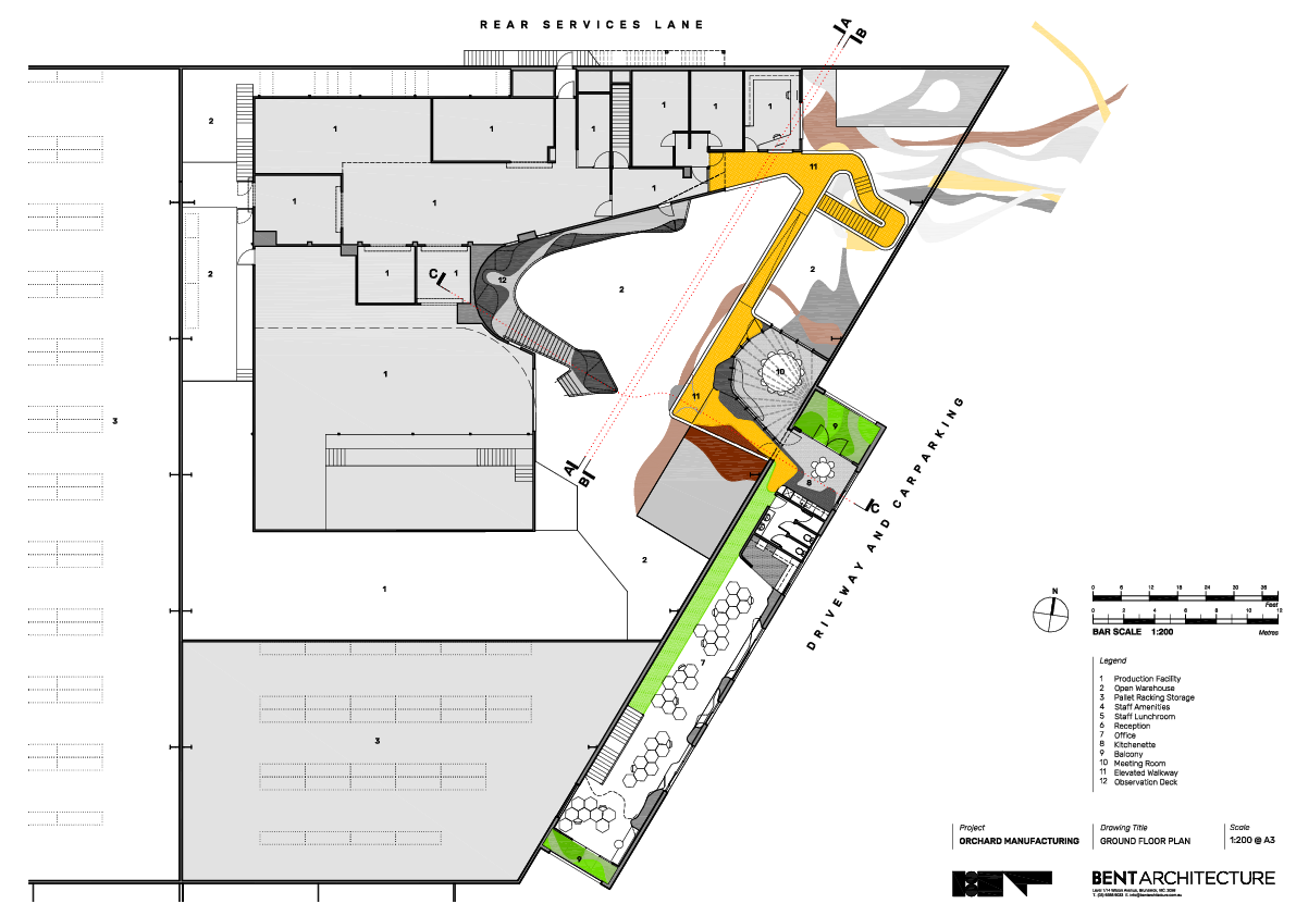
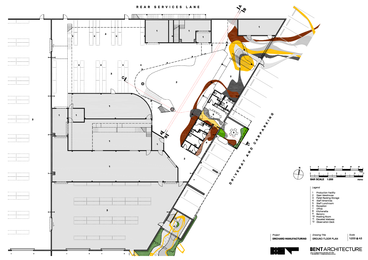
It takes the spirit of the surrounding natural world and weaves it through the interior of an existing warehouse shell.

“The spiral lies at that very point where inanimate matter is transformed into life. I am convinced, for example, that the act of creation has the nature of a spiral. The true spiral is not geometric but vegetative. It has swellings, becomes thinner and thicker and flows around obstacles who are in her way.” – Friedensreich Hundertwasser

Harnessing the vegetative spirals of Hundertwasser, the spirit of the landscape – expressed through colour and texture – is encouraged to flow from the nearby indigenous reserve into the interior of the production facility.

These elements ebb and flow around the interior, informing the selection of finishes and materials and even inspiring naturally undulating floors.

The project creates an engaging and vibrant work environment, the antithesis of the sterile and oppressive environments typically associated with production facilities.

Colour, texture and organic shapes create an uplifting and exciting space, bringing a smile to employee’s and visitor’s faces alike.

BENT Architecture’s brief for this project was to create an innovative and engaging workplace that would not only meet the practical needs of a new production facility for Orchard Manufacturing, but would also reflect the natural origins of the company.

Practically, the brief called for a series production and administrative spaces that would typically be quite separate in this type of building – sometimes in completely different buildings on other sides of the city.

Orchard Manufacturing’s approach was to integrate and, where possible, overlap these functions in order to create a cohesive working environment, where employees from different parts of the company were brought together as one.

The creation of an inspiring work environment that represented the natural ethos of the company was an essential part of the brief. BENT Architecture’s approach was to take the spirit of the surrounding natural world and weave it through the interior of the existing warehouse shell, using colour, texture and organic forms to create an uplifting and exciting space, bringing a smile to employee’s and visitor’s faces alike.

Project Details

Project size – 2,950 m2
Site size – 9,325 m2
Completion date – 2019
Building levels – 2

Project Team

Architecture

BENT Architecture

BENT Architecture is an innovative design practice based in the inner-Melbourne suburb of Brunswick.

The practice is led by Directors Paul and Merran Porjazoski.

www.bentarchitecture.com.au

Structural Engineer

Clive Steele Partners

Clive Steele Partners is a specialist firm of Consulting Structural and Civil Engineers based in Melbourne with representation in both Sydney & Brisbane.

www.clivesteele.com.au

Construction

Rossiter Constructions

Established in 2001, Rossiter Constructions Pty Ltd is a medium sized Commercial/ Industrial construction company.

www.rossiterconstructions.com

Photography

Tatjana Plitt

Tatjana is an award-winning artist and architecture/interiors photographer based in Melbourne.

www.tatjanaplitt.com

Photo Gallery

Click on a thumbnail image to enlarge.

Design © 2020 BENT Architecture. All Rights Reserved.| Images © 2020 Tatjana Plitt. All Rights Reserved.

Get the Builtworks Letter

In every edition of the Builtworks Letter, you’ll get the behind-the-scenes backstory as to how buildings are designed, built, and brought to life.

You’ll hear compelling stories, learn surprising ideas, meet engaging characters, and discover unique voices.