OURHOUSEWANDAL

OURHOUSEWANDAL

Design + Architecture designed OURHOUSEWANDAL with sustainability, low maintenance, and natural ventilation in mind.

OURHOUSEWANDAL is a low budget, family home with a difference.

Having traveled extensively and become accustomed to using minimal space wisely, the young family client wanted their first family home to reflect their love of the great outdoors and have a natural, rural feel, despite being located in a well-established Rockhampton suburb.

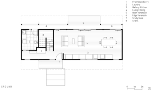
Street appeal and uninterrupted views of their expansive backyard and beyond was something they also desired for the property, which influenced the home’s shallow plan, position on the long arrow block, and the use of bold geometric shapes.

Open plan living spaces with large floor-to-ceiling windows and doors are central to the sustainable design of this slightly elevated two-story home in order to capitalise on natural light and cross ventilation.

The home’s large overhanging eaves, back deck, and strategic rear-facing orientation also help to minimise its reliance on artificial heating and cooling while making the most of their garden view.

All material choices were shaped by three criteria: environmental sustainability, low maintenance, and cost effectiveness, hence the use of zinc cladding on the exterior walls and room as well as fibre cement on the lower level.

Since the client’s budget was limited, standard materials like sliding doors, windows, and kitchen were utilised in a thoughtful, creative way that contributed to the natural, modern, open plan design – giving a luxe feel for less.

Arriving at the final design was a collaborative process between the builder, architect, and the client.

The client, an engineer, was highly involved in the project and had a large impact on the design.

This close working relationship enabled the overall cost of the project to be kept tight and within the client’s modest budget.

Environmental sustainability was a key component of the OURHOUSEWANDAL project brief as the young family client requested that their home compliment their existing sustainable lifestyle.

To subsequently minimise its environmental impact, the home is elevated to provide maximum ventilation and orientated to take advantage of the natural light and incredible cross breezes that the location affords.

Open plan living spaces with large floor-to-ceiling windows and doors combined with large overhanging eaves also help to minimise its reliance on artificial heating and cooling.

Low cost, sustainable materials such as zinc cladding on the exterior walls and roof were also used where possible to reduce the home’s environmental footprint, minimise ongoing maintenance requirements, and maximise the overall livability for its inhabitants.

Project Details

Project Size – 150 m2
Site Area – 1,200 m2
Project Budget  $300,000
Completion Date – 2020
Building Levels – 2

Project Details

Architecture

Design + Architecture

Design + Architecture is an award-winning architecture studio founded in 2013 in Rockhampton by Colin Strydom. The practice focuses on modern and alternative architectural designs for all industry sectors throughout Central Queensland.

www.designaa.com.au

Photography

Scott Burrows

Architectural and interiors based photographer with studios in Melbourne and Brisbane but travels nationally and internationally staring at buildings.

www.scottburrowsphotographer.com

Photo Gallery

Click on a thumbnail image to enlarge.

Design © 2021 Lisa Breeze Architect. All Rights Reserved.| Images © 2021 Caitlin Mills. All Rights Reserved.

The Builtworks Quest

At Builtworks, we’re on a multi-year quest to document, showcase, and spotlight the best of Australia’s built environment.

That’s why we’re creating this comprehensive online archive and educational resource that showcases a diverse and eclectic range of project types and scales.

Together with showcasing older exemplars of enduring merit, we spotlight and celebrate the very best new and recent additions to Australia’s built environment.