The owners of this 100 year old Queenslander cottage in Wooloongabba, Brisbane retained Bones Studio to help design an extension to transform their tiny one-bedroom home into a 4-bedroom home suitable for a growing family.
While Chris Brandon of Bones Studio was busy planning and designing the extension, they collaborated with the home owners as they lovingly and painstakingly restored the original cottage with great respect to its heritage.
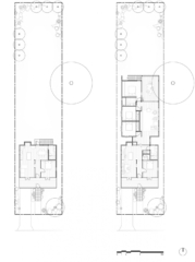
The extension was designed to impact as little as possible on the original building.
The addition of a battened transition space with translucent roofing allowed abundant natural light to filter through and brighten what would otherwise have been a dark interior.
Its lower ceiling enhances the journey from old to new, opening out into a large living room with framed views through high-level windows to the sky.
Being an inner-city property and close to a freeway, it was a must to consider acoustics and privacy in the design and layout of bedrooms and living areas.
The deck was positioned to face North and East, borrowing the mature Lilly Pilly tree on the neighbouring property for shelter and outlook.
Project Team
Architecture
Bones Studio
Established in 2015, Bones Studio is an architectural practice with a strong focus on creativity and collaboration, anchored by commercial sensibility.
Its founders Chris Brandon and Allana Chiu are both Registered Architects with over 20 years of combined experience across a range of typologies including commercial, residential, retail and hospitality.
Photography
Cathy Schusler
Cathy Schusler is an Australian-based commercial photographer that specializes in architecture, interiors, and travel photography. Her work has been featured in publications such as Architectural Digest, Houses, and Belle Magazine.
Photo Gallery
Click on a thumbnail image to enlarge.
Design © 2021 Bones Studio. All Rights Reserved.| Images © 2021 Cathy Schusler. All Rights Reserved.
Get the Builtworks Letter
In every edition of the Builtworks Letter, you’ll get the behind-the-scenes backstory as to how buildings are designed, built, and brought to life.
You’ll hear compelling stories, learn surprising ideas, meet engaging characters, and discover unique voices.










