Whiting Architects’ brief was for a couple down-sizing from a large home in Brighton, Melbourne (with pool and large garden) to a city ‘town house’.
It needed options for family gatherings, entertaining, and having guests and various grown up kids to stay.
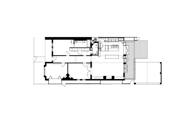
The renovation included an entertaining area with good sized dining table and sitting area for gatherings of the large and growing extended family.
But it still needed intimacy when occupied by a couple.
Project Details
Project Size – 269 m2
Site Area – 338 m2
Completion Date – 2015
Building Levels – 1
Project Team
Architecture and Interior Design
Whiting Architects
Whiting Architects is an Architecture and Interior Design studio with over 25 years’ experience.
Director Steven Whiting’s qualifications in both Interior Design and Architecture define the firms’ signature style and form a design philosophy that centres on the premise that there is no separation between disciplines.
Associate Directors Eleanor Eade and Josie Somerville have brought energy, passion and creative expertise to Whiting Architects over the last six years, providing a youthful and dynamic approach to the practice.
Photography
Sharyn Cairns
Sharyn is at the forefront of commercial photography in Australia, with a specialist portfolio spanning interiors, food, travel, and lifestyle. She is committed to creating beautiful images that capture a mood and an emotion, playing with light and shadows to create levels of depth and distinctive memorable scenes.
Her work is featured in notable international and local magazines: Gourmet Traveller, Vogue Living, Belle, Dwell, Kinfolk, Elle Decoration UK, House and Garden UK, Living Etc UK and many others.
Sharyn collaborates with architects, designers and creatives on unique projects and has photographed numerous cookbooks for well-known chefs such as Maggie Beer, Shane Delia, Guy Grossi, Tobie Puttock and Jacques Reymond.
Click on a thumbnail image to enlarge.
Design © 2020 Whiting Architects. All Rights Reserved.| Images © 2020 Sharyn Cairns. All Rights Reserved.
Get the Builtworks Letter
In every edition of the Builtworks Letter, you’ll get the behind-the-scenes backstory as to how buildings are designed, built, and brought to life.
You’ll hear compelling stories, learn surprising ideas, meet engaging characters, and discover unique voices.












