Pitch House

Pitch House

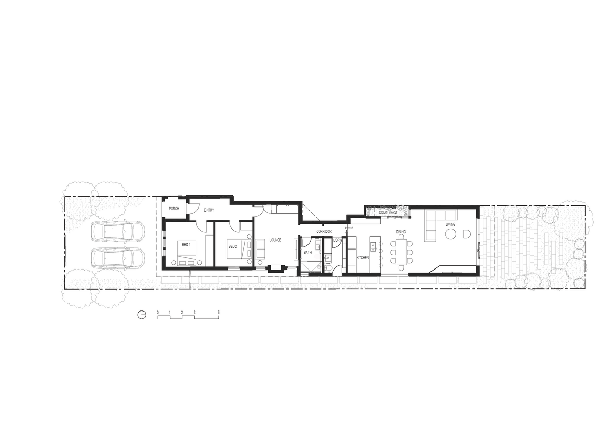
Designed by FMD Architects, Pitch House extends itself as a series of defined spaces that unfurl to form a generous interior, filled with light from a high-level window above.

Partitioned by its neighbouring twin, Pitch House reinvigorates what was previously a discontinuous plan, granting the space a new relationship with light, its side courtyard, and backyard.

The architecture develops a narrative around the ‘pitch’, a form that extends to its highest point, the humble glow framing the open interior, whilst reflecting the continuous slope of the existing roof.

The dwelling retains its existing character, greeting occupants with the pre-established places of respite.

A single step marks the transition between past and present.

There, timber is greeted by concrete.

And a revitalized ceiling, lined with shiplap timber, pitches to expose the interior to natural lighting.

A humble glow provides definition and beauty to the timber cladding.

A moment of spatial disconnection springs from the interior – acting as a beacon of light that infiltrates the space with the morning sun – unobstructed by the dwelling’s twin.

A striking kitchen bench mirrors this interior, reflecting the perception of continuity, and allowing light to deflect around its perimeter.

Descending through the space, a distinct shiplap-lined ceiling connects the living to the backyard beyond, contrasting against the subtle white finish of the interior walls.

These humble interior finishes are complimented by a matt tiled finish in the kitchen, with a crisp finish to the storage units elegantly contrasting the striking ceiling.

A sliding door opens the veil to the backyard – an eave signaling the end of the shiplap ceiling – and the beginning of a beautifully landscaped garden that awaits our client’s environmental immersion.

Sitting against the fence is a concrete bench – housing a barbeque.

Concrete pavers are thoughtfully set out from the glazing’s edge towards the garden’s edge.

FMD Architects designed Pitch House as a representation of design sustainability.

  • A concrete slab was used to take advantage of the thermal mass gained from the northern sun with the eave protecting against excessive exposure when the sun is at its harshest.
  • The interiors are highly insulated, with double-glazed windows delivering highly-effective thermal and acoustic performance.
  • A plethora of locally sourced materials was used.
  • LED strip lighting is fitted within the shiplap cladding, amplifying the continuity of the timber lining, and energizing the interiors.

Pitch House plays into the sense of continuity, establishing a thoughtful consideration of the old and the new.

Project Details

Completion Date – 2021

Project Team

Architecture

FMD Architects

FMD Architects is an architectural practice with extensive experience in architecture of varying scales, types, and budgets.

www.fmdarchitects.com.au

Construction

Creato Homes

Creato Homes are Melbourne-based architectural bespoke builders.

www.creatohomes.com

Photography

Tatjana Plitt

Tatjana is an award-winning artist and architecture and interior photographer based in Melbourne.

www.tatjanaplitt.com

Photo Gallery

Click on a thumbnail image to enlarge it.

Design © 2022 FMD Architects. All Rights Reserved. | Images © 2022 Tatjana Plitt. All Rights Reserved.

The Builtworks Quest

At Builtworks, we’re on a multi-year quest to document, showcase, and spotlight the best of Australia’s built environment.

That’s why we’re creating this comprehensive online archive and educational resource that showcases a diverse and eclectic range of project types and scales.

Together with showcasing older exemplars of enduring merit, we spotlight and celebrate new and recent additions to Australia’s built environment.