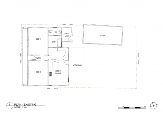
This small home in St Kilda, Melbourne started life as a prefab cottage.
It shipped as a kit from Boston, USA and was erected in the 1850s.
It had fallen into ruin and was on its last legs.
From a pragmatic standpoint, it warranted demolition.
But that was not its fate.
A Heritage Planning Overlay prohibited demolition.
And the property owners wanted to restore it.
So they commissioned Jost Architects to design a scheme that incorporated:
- open plan living
- dining room
- kitchen
- rumpus room
- bathroom
- walk in pantry
- walk in laundry
- master bedroom with ensuite bathroom and walk in robe
- 2nd and 3rd bedrooms
- an outdoor area
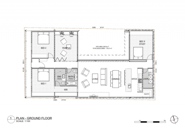
Josh Architects’ delivered the brief on the tight 238 m2 site by building around “the back yard” in a “U” shape facing north.
The aim was to create a contemporary space blending new and classic features.
The structure was value engineered by planning sensible spans and cantilevers.
That way, it used less steel, favouring timber framing instead.
Material selections were mostly made on a cost and value-for-money basis.
They had to be kid-friendly, hard-wearing, and low-maintenance, yet aesthetically pleasing too.
And sustainability was also important to the client.
So everything had to be sustainable, durable, and good value.
Some of the material selections included:
- white cork flooring
- white acrylic bench tops and white fittings
- orange studded rubber flooring
- original 1870s layered wallpaper
- rustic recycled messmate timber boards
- hydronic heating, thermally passive design, with no air-conditioning
The home is progressive and functional.
It’s a minimalist, simple, and timeless building that respects its history while adding another layer to its story.
Project Details
Project size – 176 m2
Site size – 238 m2
Project Budget – $420,000
Completion date – 2014
Building levels – 1
Project Team
Architecture
Jost Architects
Jost Architects is an architectural practice based in Melbourne established by Patrick Jost in 2005. The firm has been involved in a diverse range of projects in the institutional, residential, and commercial sectors.
Photography
Andrew Wuttke
Photo Gallery
Click on a thumbnail image to enlarge.
Design © 2020 Jost Architects. All Rights Reserved.| Images © 2020 Andrew Wuttke. All Rights Reserved.
Get the Builtworks Letter
In every edition of the Builtworks Letter, you’ll get the behind-the-scenes backstory as to how buildings are designed, built, and brought to life.
You’ll hear compelling stories, learn surprising ideas, meet engaging characters, and discover unique voices.






















