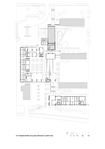
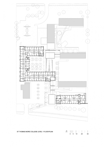
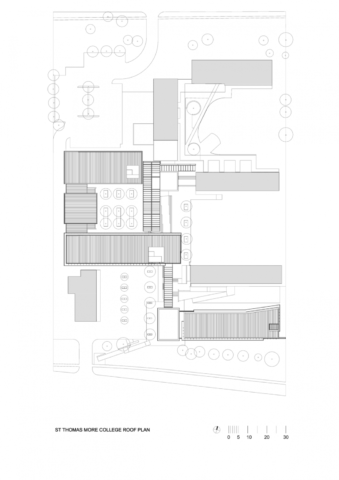
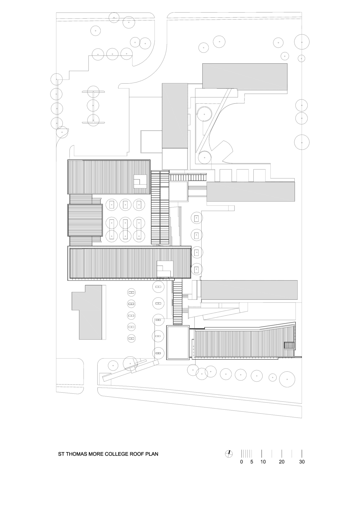
Cox was commissioned to provide full architectural services for a (NRAS) Student Accommodation facility at St Thomas More College.
The redevelopment represents a wholesale re-positioning of the college architecturally as well as operationally.
The primary objective was to “re-badge” the college delivering dramatically improved amenity and facilities for students and staff.
The intended outcome of the Cox design was to create an outstanding living and learning environment where a diverse collegiate community would be encouraged to develop and excel.
The new buildings were conceived and designed as substantial and important additions to the University’s Crawley campus, providing a much stronger physical presence for both the college and the University on the University campus’s primary, ceremonial frontage.
These additional buildings were therefore conceived as important material additions to the University landscape, with significant capacity to strengthen the University’s architectural identity and physical presence along its eastern gateway.
Project Details
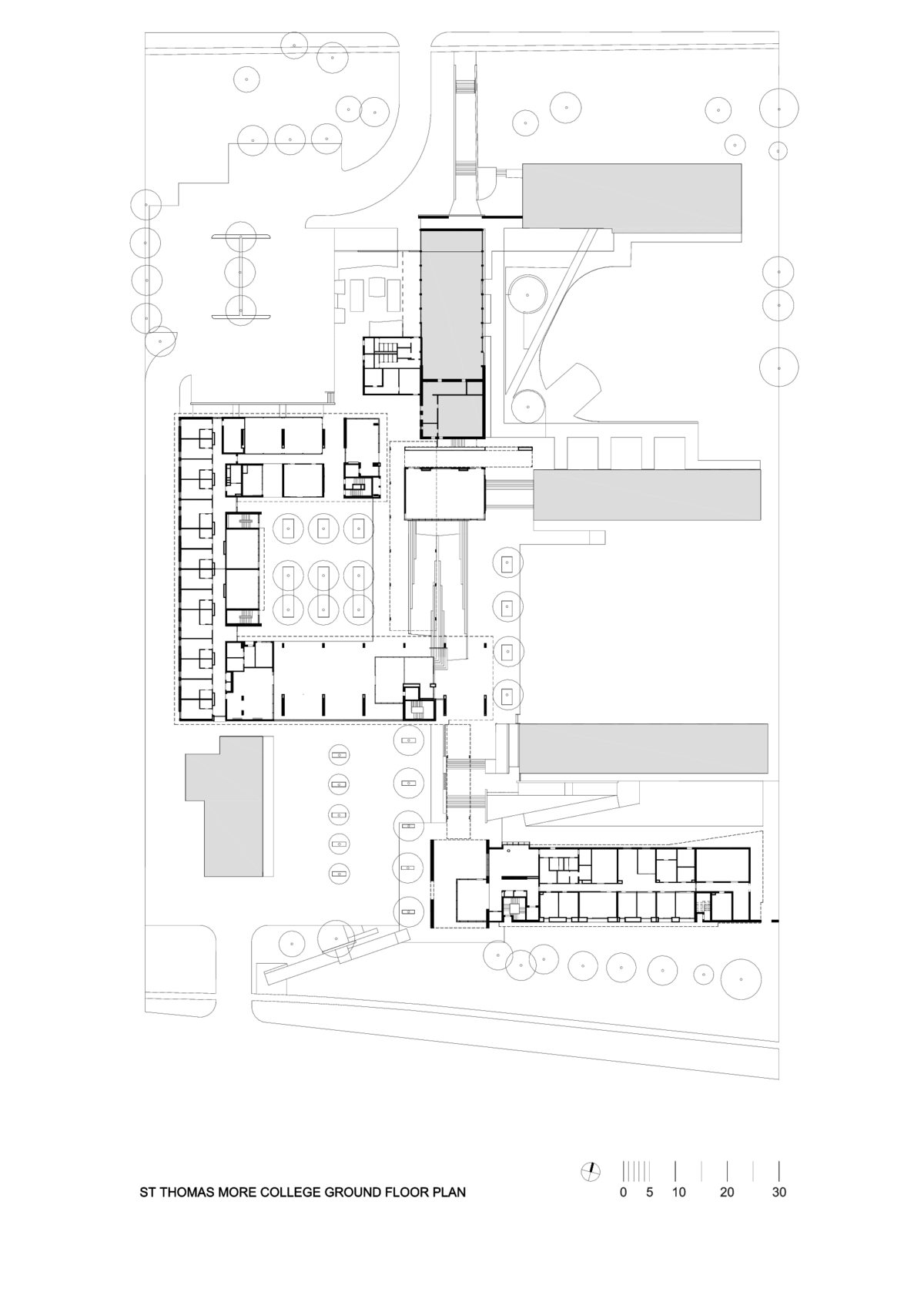
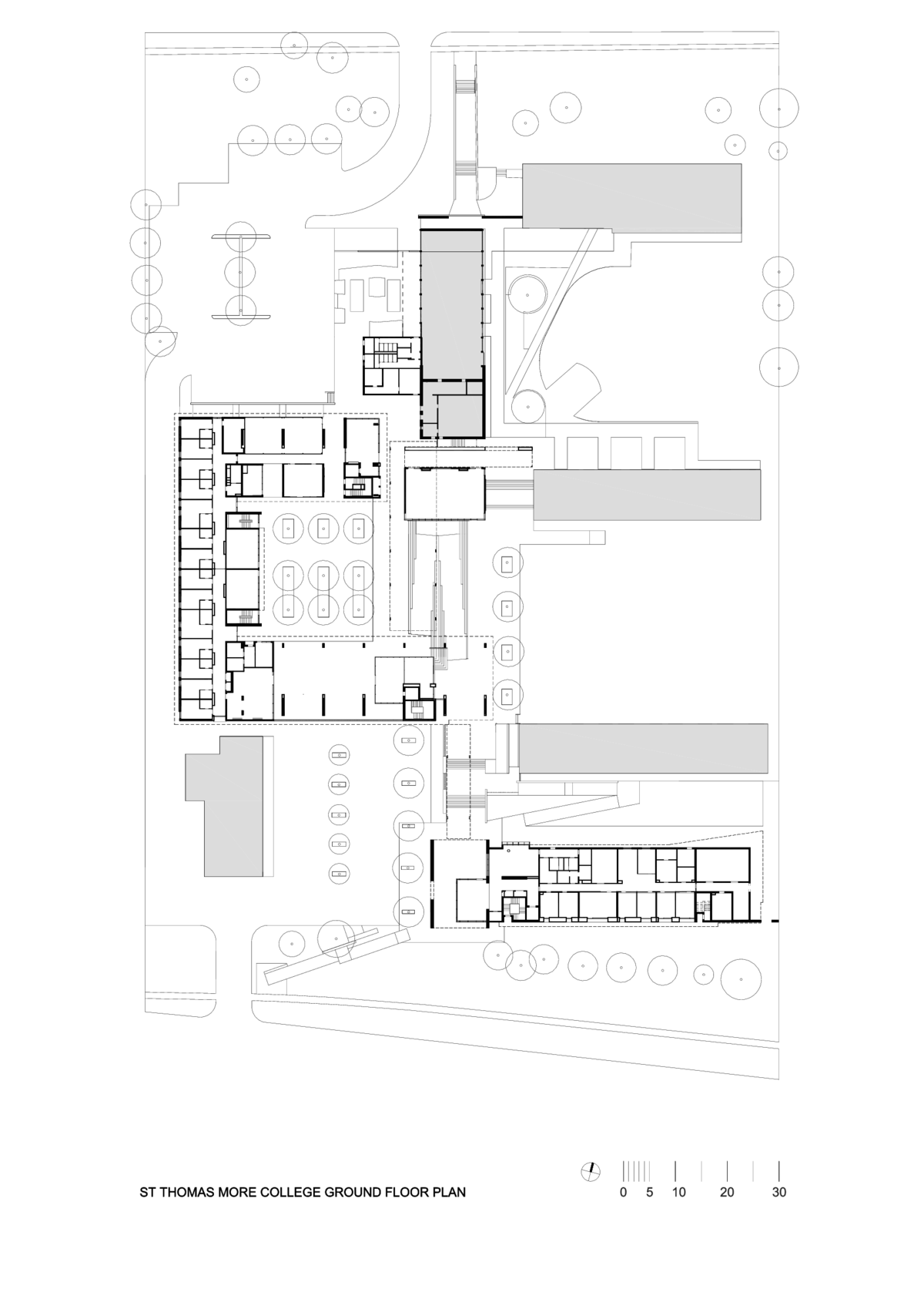
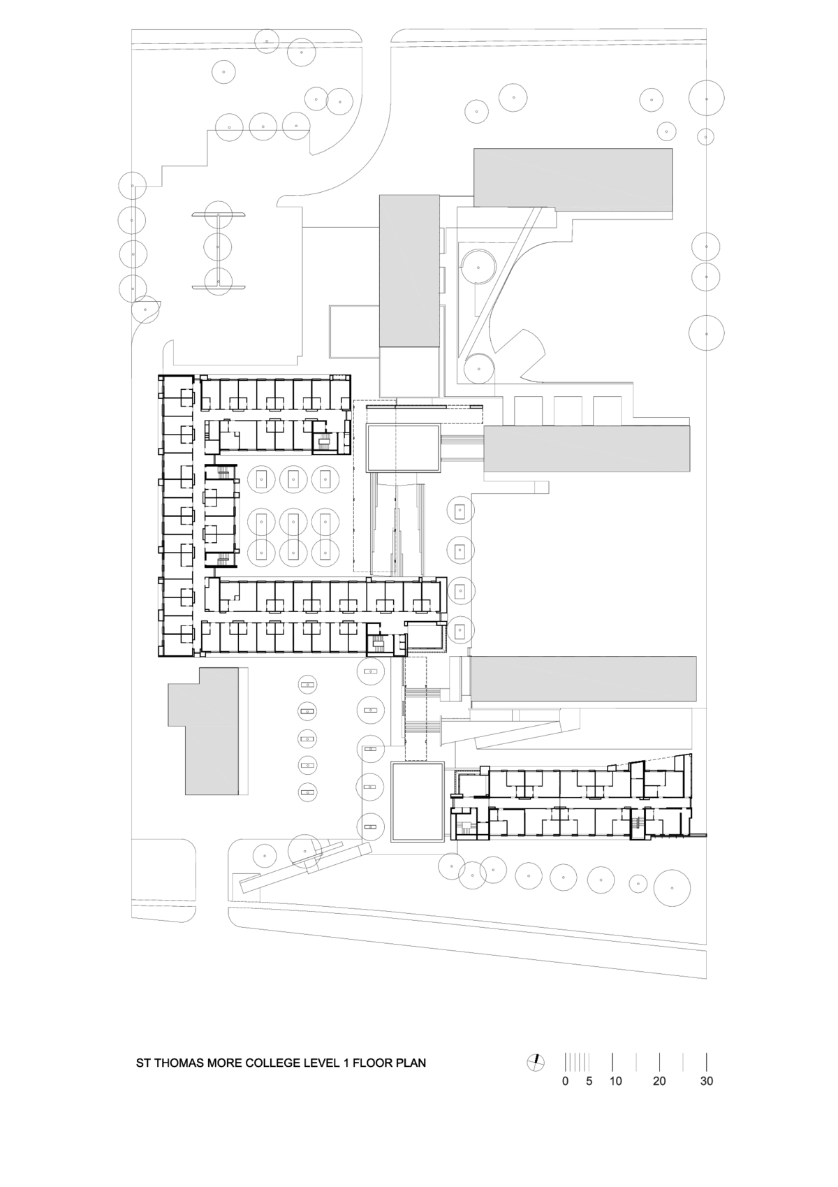
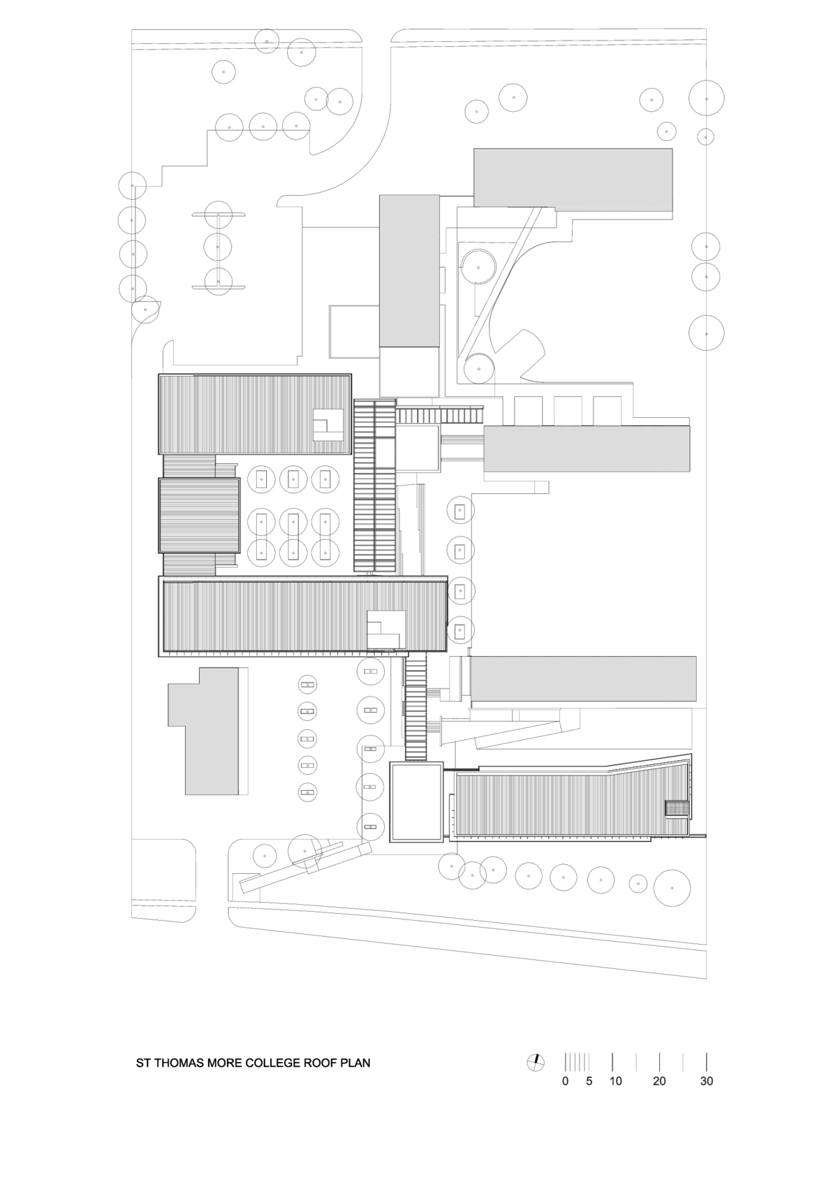
Project size – 16,731 m2
Completion date – 2016
Project Team
Architecture
Cox Architecture
COX is a design-focused contemporary architectural practice with studios located in every major Australian city and a history spanning 60 years.
Key to their ethos is supporting the public life of our cities. Cox does this by ensuring each project makes positive contributions to its public realm – giving more than it takes.
Photography
Alison Paine
Alison Paine is a professional architecture photographer and graphic designer who worked for large Perth architectural practice Cox Howlett & Bailey Woodland Architects for fifteen years.
Her last eight years there was in the capacity of Graphic Design Manager and in-house photographer.
Then in 2011, Alison established Alison Grace Photography where she specializes in architecture and interiors, working for some of Australia’s leading architects and designers.
Photo Gallery
Click on a thumbnail image to enlarge.
Design © 2020 COX. All Rights Reserved.| Images © 2020 Alison Paine. All Rights Reserved.
Get the Builtworks Letter
In every edition of the Builtworks Letter, you’ll get the behind-the-scenes backstory as to how buildings are designed, built, and brought to life.
You’ll hear compelling stories, learn surprising ideas, meet engaging characters, and discover unique voices.













