A new two-storey addition with significant alteration works were undertaken on an existing cream brick house in Rosanna.
Rosanna is a suburb of Melbourne, Victoria, Australia, 12 km north-east the Central Business District.
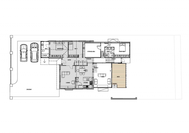
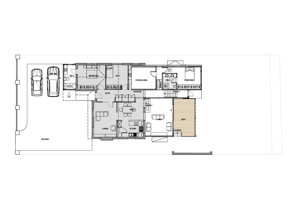
Designed by SG2 design, the new additions take advantage of the sloped site by creating additional bedroom and living areas within a series of stepped cubed forms.
The configuration of these intersecting forms and openings helps encourage cross-flow ventilation throughout the house.
The additions are in stark contrast to the traditional suburban house, yet respect its overall roof heights and proportions.
New living areas open onto landscaped surrounds and a new cantilevered study makes one feel suspended in nature.
Project Details
Project Size – 226 m2
Site Area – 596 m2
Completion Date – 2019
Building Levels – 2
Project Team
Architecture
SG2 design
Sebastiano Ghezzi is an architect with a broad interest in all aspects of design, from small objects through to master-planning.
Structural Engineering
DC Group
Divitaris Consulting is an independent Melbourne based engineering consulting practice, specialising in the provision of structural and civil engineering services throughout Australia.
Photography
Hans van der Post
Hans is a commercial photographer based in Eumundi on Queensland’s Sunshine Coast.
www.vanderpostphotography.com.au
Photo Gallery
Click on a thumbnail image to enlarge.
Design © 2021 SG2 design. All Rights Reserved.| Images © 2021 Hans van der Post. All Rights Reserved.
Get the Builtworks Letter
In every edition of the Builtworks Letter, you’ll get the behind-the-scenes backstory as to how buildings are designed, built, and brought to life.
You’ll hear compelling stories, learn surprising ideas, meet engaging characters, and discover unique voices.












