Carla Middleton Architecture was engaged by their pilot and architect client to create a private, spacious and light-filled home for a growing family of four.
The old house was a dark, poorly planned home, which had a poor connection to the backyard which caused the young family to take themselves out and about throughout the day in search of sunlight.
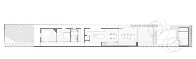
A major challenge for the design team was the narrow nature of the site and how to accommodate key elements of the program including five bedrooms, three bathrooms, a home office, a kids’ playroom, and large living, dining and kitchen spaces.
The nature of the site and the surrounding neighbourhood context conspired to pose a major challenge to the competing requirements of providing privacy from overlooking adjoining neighbours, whilst at the same time, opening up the house to natural light.
Natural light and privacy were secured primarily via the extensive use of skylights.
These skylights were successful in delivering an abundance of natural light and providing the occupants with a sense of the day outside without having to go anywhere.
Rainy days are now really cherished inside looking up at the rain and clouds.
The use of skylights in the bathrooms rather than windows opposite neighbours’ windows meant the bathrooms receive plenty of natural light without having to keep windows and blinds closed for privacy.
The skylights at night enable bathing in privacy under a blanket of stars and moonlight.
Carla Middleton Architecture’s design solution draws occupants deep inside the dwelling towards an unexpected void of high open space.
The high void was designed to create a sense of space and capture the northeast sun as it wraps around the house.
The rear skylight and window frame a large melaleuca tree in the backyard.
Roof windows connect the occupants to the trees, sunshine, rain, clouds and stars whilst privately protecting them from close neighbouring buildings.
The new ground floor is a long sequence of the open kitchen, dining, lounge, and outdoor spaces seamlessly flowing deep into the site.
The upstairs level was planned for quiet bedrooms and bathrooms, separated from the living areas.
A considered garden and outdoor dining area were carefully designed by Pepo Botanic Design.
Given the close proximity of local beaches and parks, the size of the backyard was not a priority.
But the clients wanted to create a connection to the large existing melaleuca tree which had been hidden by two huge phoenix palm trees that were removed during construction.
So a large rear skylight was incorporated into the design which now looks up to the leafy tops of the existing Melaleuca tree.
Cavity sliding doors allowed for the living room to use the full width of the site and open up the house to the backyard.
The space below the stairs was designed for a bar and coffee area to expand on the kitchen area whilst utilising the space below the stairs.
And an operable skylight in the hallway on the first floor allows for the hot air to rise in the void and be released.
Project Details
Project Size – 208 m2
Site Area – 310 m2
Completion Date – 2019
Building Levels – 2
Project Team
Architecture
Carla Middleton Architecture
Carla Middleton Architecture CMA is a boutique residential architecture firm founded by Carla, a registered architect with over 15 years of experience. Her speciality is in the delivery of end-to-end residential architecture, prioritising liveable, comfortable spaces that are modern and stylistically enduring.
Landscape Architecture
Pepo Botanic Design
Talented visual artist Nicola Cameron established Pepo in 2000, looking to weave her experience in photography and film into a different and creative living medium. Landscape design and horticulture provided the perfect platform to conceive her beautiful creations, passion for unique design aesthetics and love of plants.
Photography
Tom Ferguson
Tom is a Sydney-based commercial photographer who is regularly commissioned by leading architects, developers, and major brands within Australia and internationally.
Photo Gallery
Click on a thumbnail image to enlarge.
Design © 2022 Carla Middleton Architecture. All Rights Reserved.| Images © 2022 Tom Ferguson. All Rights Reserved.
The Builtworks Quest
At Builtworks, we’re on a multi-year quest to document, showcase, and spotlight the best of Australia’s built environment.
That’s why we’re creating this comprehensive online archive and educational resource that showcases a diverse and eclectic range of project types and scales.
Together with showcasing older exemplars of enduring merit, we spotlight and celebrate new and recent additions to Australia’s built environment.



































