The Boulevard

The Boulevard

Designed by MJA Studio, the Boulevard is the first purpose-built Student Accommodation project to be built within Perth’s city core.

This award-winning project signals an important opportunity for urban renewal in an area of the city that’s undergoing significant change and where planning controls impose no height limit.

Providing homes for 573 students in one building poses a number of design questions.

Student accommodation projects are often yield-driven.

So they are designed with a minimum unit footprint and this often delivers sub-optimal living conditions for the students, especially in large-scale projects like this one.

But rather than being driven solely by unit yield, the underlying principle of this project was to provide safe and well-designed homes for students that contribute to their well-being.

That’s why the MJA Studio design team created generous and fun communal zones that encourage student interaction

Their design ensures you can’t disembark the lift and travel directly to your private room without first moving through communal breakout spaces and the potential for incidental interactions that may be found there.

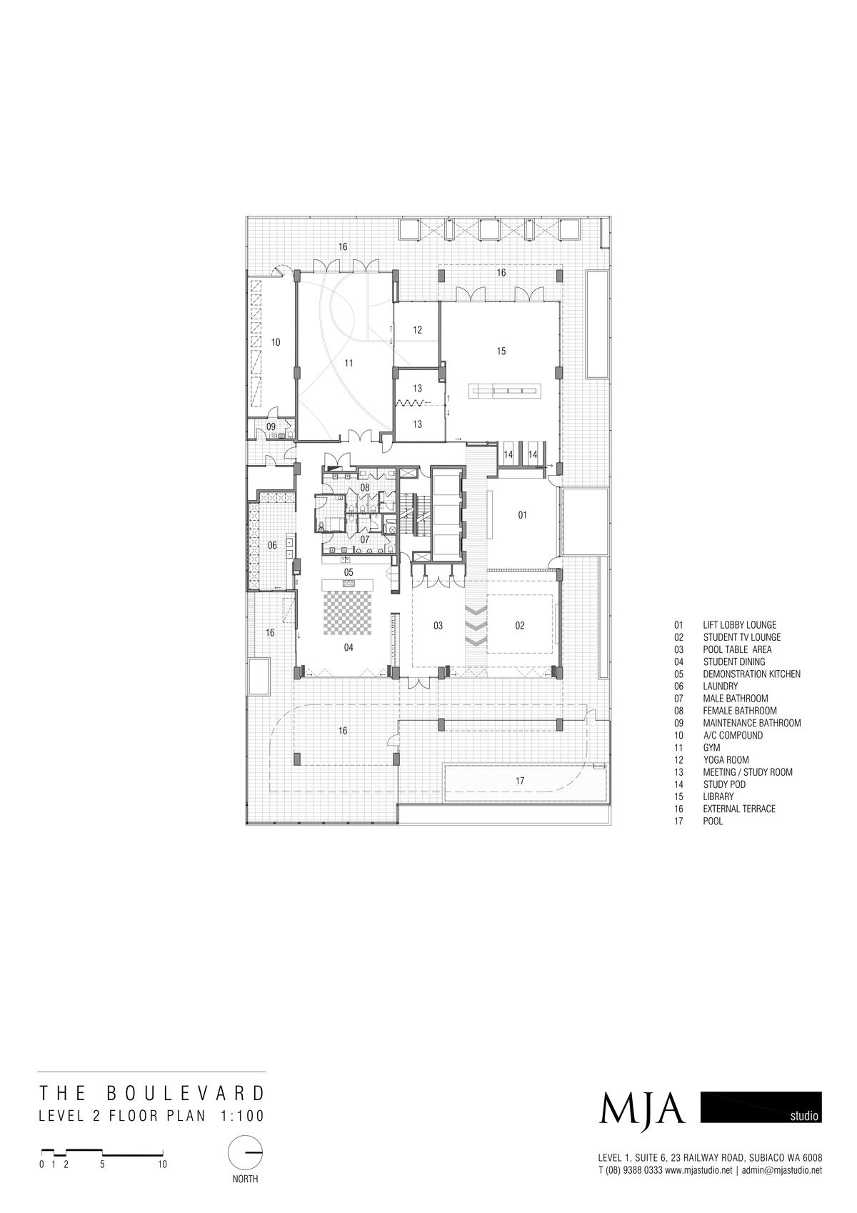
This approach was carried into the planning of Level 2 where the facilities for day-to-day domestic duties like washing your clothes are located adjacent to games, kitchen, lounge, and terrace areas.

This communal floor on Level 2 is separately zoned between active entertainment, passive study, and private exercise zones.

But each individual area has direct access to the outdoors.

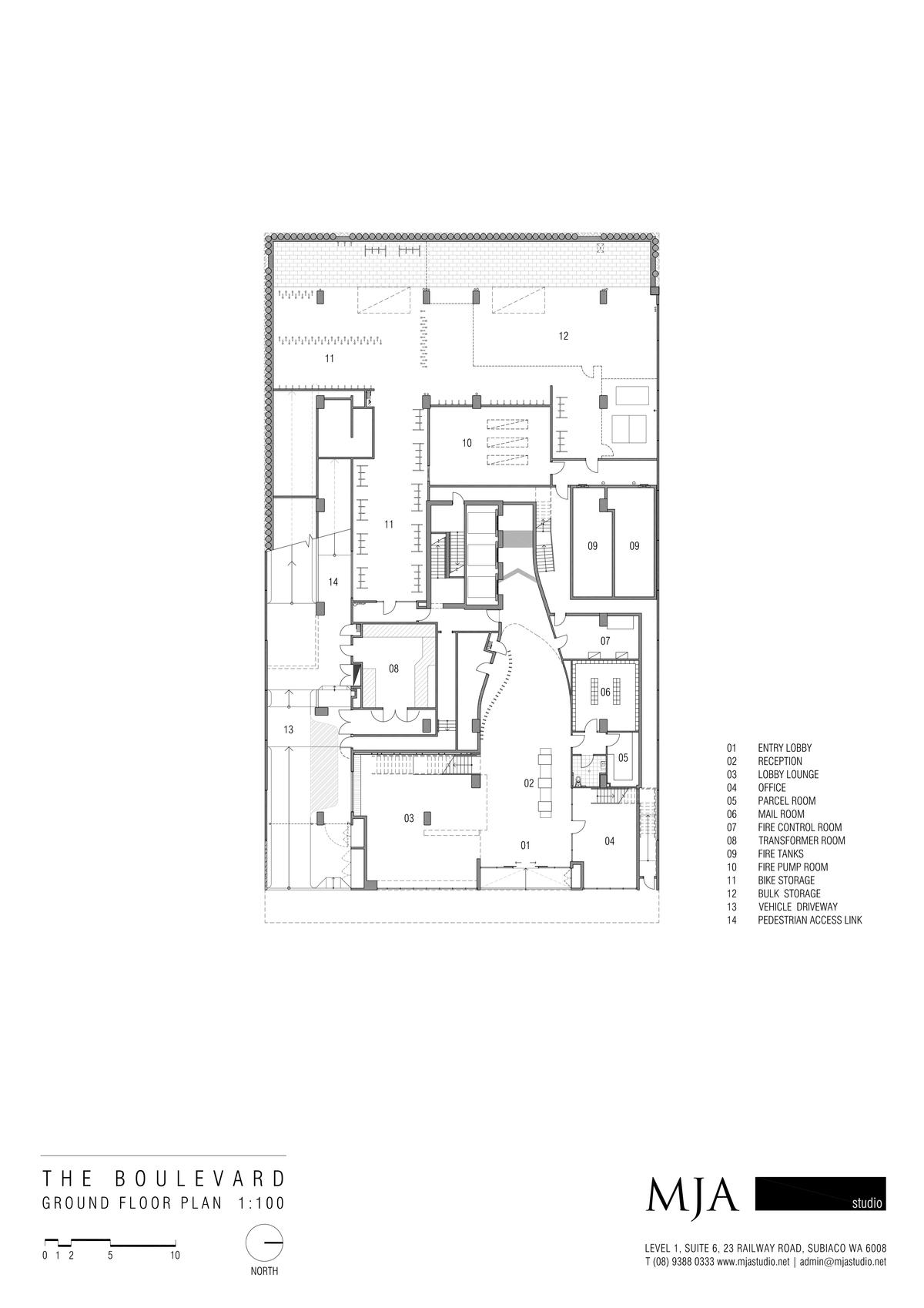
The Ground level lobby is generous in space and volume to accommodate periodic influxes of students and their many bags, but also has street-level lounge areas for students to observe activities within and outside on the street.

A green and blue colour palette was used externally to reinforce a sense of safety, growth, and to encourage study.

Internally, yellow was used in communal areas to promote mental activity, cheerfulness, and happiness.

The building’s unique offset H-shaped tower footprint was tailored to maximise frontage and increase access to natural light and ventilation in interior spaces.

This increase in natural light coupled with a considered lighting design has reduced the maximum illumination power density by 60% which contributes to the building’s overall 15% reduction in energy use.

This passive approach to sustainability is supported by active systems like the centralised gas hot water plant, high-efficiency VRF air conditioning, and self-separating bin chutes to maximise recycling.

Reducing the carbon costs of travel is supported by a student’s car sharing scheme and the provision of three times the number of bicycle bays required under the relevant code.

The H-shape footprint also creates deep reveals to the eastern Stirling streetscape façade, the western façade that is read clearly over existing heritage buildings from Francis St, and the new Museum.

These deep reveals split the vertical building mass into two slender volumes that slide up against one another, significantly reducing the perception of bulk.

The longer north and south elevations have taken cues from the United Nations Building in New York designed by Niemeyer/Corbusier as a way of separating the mass of vertical blocks.

Project Awards

Winner of the 2019 – AIA WA Chapter Awards: Multiple Housing: Architecture Award

Project Details

Completion Date – 2019

Project Team

Architecture

MJA Studio

MJA is a dynamic and nimble design practice that aims to create happy and healthy buildings that drive positive change in the built environment, exceed the expectations of their clients, and provide tangible community benefits. The firm operates from Subiaco in Perth and Fitzroy in Melbourne.

www.mjastudio.net

Photography

Dion Robeson

Dion is an architectural, interior, and commercial fit-out photographer based in Perth, Western Australia.

www.instagram.com/dionrobeson

Photo Gallery

Click on a thumbnail image to enlarge it.

Design © 2022 MJA Studio. All Rights Reserved.| Images © 2022 Dion Robeson. All Rights Reserved.

The Builtworks Quest

At Builtworks, we’re on a multi-year quest to document, showcase, and spotlight the best of Australia’s built environment.

That’s why we’re creating this comprehensive online archive and educational resource that showcases a diverse and eclectic range of project types and scales.

Together with showcasing older exemplars of enduring merit, we spotlight and celebrate new and recent additions to Australia’s built environment.