Set within a stunning CBD heritage listed building, a mid-80’s modern style, modest apartment was entrusted to In Design International (IDI) with the clients’ clear brief to return a “practical weekender” for personal use to accommodate family including two young grandchildren.
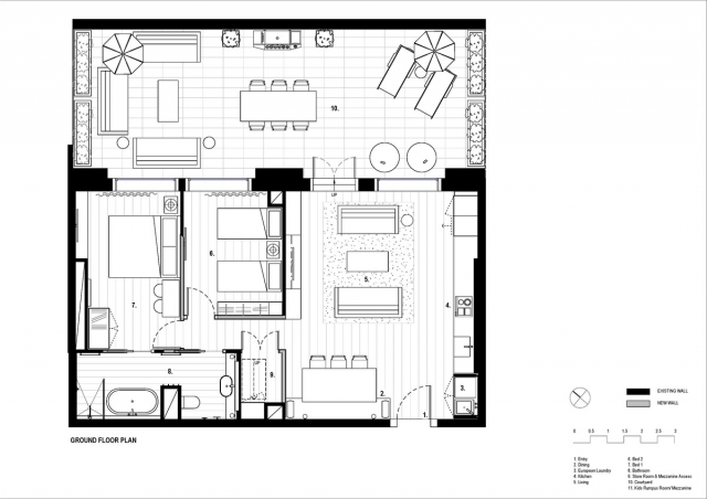
The layout and design encompassed a holistic approach to the entire apartment. IDI relocated partition walls while working around structural elements and rises to improve spatial planning of this tiny weekender.
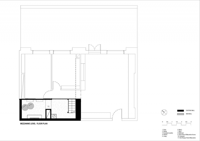
Working meticulously to avoid unnecessary slab core drilling, IDI maintained the position of the WC but negotiated variations to other plumbing fixtures with ease. The end result is a two-way ensuite/bathroom with a mezzanine storage room above, accessible only by a hidden electronic drop down stair case via a broom closet. (AKA ‘the secret room’ as the grandchildren now call it.)
For consistency with the passageway floorboards, IDI used timber look floor tiles. A stunning marble and porcelain elongated hexagonal mosaic feature wall off-set with simple warm grey main body tiles compliments an incredible on trend natural marble half height wall.
With no direct natural light it was paramount to achieve brightness via artificial light and the inclusion of a hardwired magnifying mirror made a world of difference.
With a nostalgic clawfoot bath, telephone shower, locally hand-blown glass wall sconces, custom aged iron tapware, marble slabs and intricate tiling details, this bathroom is a complement to the historic glory of the heritage building it rests within.
The brief called for practical yet feminine open-plan living suitable for supervising young children at play. IDI elected to pay homage to the apartments heritage listing and created what appears to be a reveal of hidden architectural and interior treasures previously buried underneath years of ‘modern’ make overs.
Despite Heritage Council approval, the Body Corporate wouldn’t endorse air-conditioning installation. IDI therefore took occasion to redesign the RCP to create a storage attic and ‘secret’ children’s play area, accessible only by a mechanical drop-down ladder.
Material. Italian floorboards
Finish and furnishing strategy. High level quality and comfort plus a focus to maximise living zones
Sustainability principles. All appliances are min 5 star wells rated. All materials used are ethically sourced and sustainable.
Budget. The budget for this project was open-ended.
Collaborations. Articolo, Christopher Boots, Zuster, bespoke joinery and upholstery Designer Rugs, CDK Stone, Great Dane, Satara
Creating a dialogue between the existing building and the new interior was the primary concept behind this project. This project demonstrates, through the recreation of an historicist interior, the importance of honouring those architectural creatives who came before, as well as how the seamless integration of contemporary Australian design within historic spaces can be achieved, to ultimately create a layered narrative.
This layered narrative ultimately becomes the contribution to contemporary Australian interior decoration, as it speaks of the work by current designers and suppliers to further sustain the fabric of the building envelope, as well as the clients’ financial support for the local design industry and its advancement.
Excellence thus is inherent within this project, as these narrative elements combine to achieve a successful interior outcome, where past and present, coexist.
IDI’s philosophy for sustainability is not strictly dedicated to the environment. It encompasses sustaining and encouraging local talent. IDI collaborates and supports Australian industry and suppliers. The decoration and detail demonstrate the ongoing importance of honouring those creatives who came before IDI’s involvement, yet injecting a contemporary vision.
Honouring the Heritage listing and considering the tiny footprint, IDI elected to recreate the grandeur of the times, rather than align the design to a more urban look.
Project Details
Completion date – 2019
Project Team
Architects
In Design International
In Design International (IDI) was founded in the French Alps by director Penny Del Castillo. The studio is now based in Melbourne, Australia and boasts an award-winning team of interior architects and designers that has an extensive portfolio of completed refurbishments.
IDI has completed work for some of Australia’s iconic hotels, including most recently Sebel Sydney Manly Beach, Adina North Bank, Sebel Flinders Lane, (Grand Mercure) Basildene Manor WA, Novotel Brisbane among many others.
IDI is accustomed to creating bespoke spaces for exclusive wellness retreats and spas like the ones complete for Novotel Nusa Dua, Grand Mercure Puka Park, One Wybelenna Brisbane, O’Reilly’s Lost World – Rainforest Retreat, and Batu Karang Resort & Spa.
Private residential projects extend across bachelor living and beach houses to contemporary homes for both high profile executives and celebrities.
In Design International’s offering has spread to date only by word-of-mouth from repeat clientele who respect the studio’s dynamic team of experienced talent, with principals across interior design, furniture design, fashion, graphics, and hospitality.
www.indesigninternational.com.au
Photographer
Isamu Sawa
Born in Japan and raised in Australia, Isamu Sawa is one of Australia’s leading commercial photographers with a career spanning more than 25 years. He has worked for commercial clients including Mercedes Benz, Mazda, Holden, Domaine Chandon, and Penfolds.
Sawa’s editorial work has also featured in GQ, The Age and Vogue magazines.
Apart from archtectural and interiors photography, he regularly shoots portraits of well-known identities including fashion designer Jean Paul Gaultier, actor Geoffrey Rush, and champion cyclist Cadel Evans.
Supplier Collaborations
Articolo Lighting
Design studio Articolo has explored ‘the art of light’ through handcrafted artisanal lighting pieces since 2012. Founded by celebrated designer Nicci Green, Articolo’s lighting collections explore the unique individuality and subtle differences intrinsic to mouth blown glass coupled with a timeless design aesthetic.
When lit, these sophisticated forms cast unique patterns and movements that reflect an unparalleled shadow play of light unique to Articolo. With a view to going beyond simply decorative lighting, Articolo aims to create pieces that function as true sculpture.
Christopher Boots
Established 2011, the Christopher Boots studio was founded on material and metaphysical exploration of quartz crystal, birthing a signature aesthetic. Exploring relationships between architecture, symbology and geometry found in nature offers a contemporary interpretation of pattern, structure and symmetry.
Zuster
Zuster is Dutch for sister. In design terms, Zuster symbolises a legacy of quality Australian design and craftsmanship that embraces five generations of Dutch family heritage.
Today, sisters Wilhelmina McCarroll and Fleur Sibbel draw on Zuster’s hand-crafting expertise to forge a signature approach that is distinctive in its beauty and refinement.
Exceptional craftsmanship combined with bespoke detailing and intuitive function infuses the Zuster collection with provenance and heirloom appeal.
Drawing on the sisters’ shared passion for fashion, art and furniture, Zuster’s furniture and homewares collection is notable for its exquisite detailing and refined finishing.
Each piece is a statement in its own right, designed to enrich and elevate your home spaces, and become part of your family history.
CDK Stone
For over 35 years, CDK Stone has been supplying high quality, premium Natural Stone and stone products. Our diverse range now includes Natural Stone, Neolith, Northstone, Tools & Equipment, Stone Care and Stone Working Machinery.
With branches in five states of Australia and two locations in New Zealand, CDK Stone has become the leader in the Australian Stone Industry. Servicing the spectrum of industry professionals to homeowners and renovators, CDK Stone is the home for premium stone.
Great Dane
Great Dane is Australia’s eminent curator of Scandinavian furniture and lighting. Established in Melbourne in 2002, their unbridled passion for timeless Scandinavian design has seen them establish an inimitable reputation for quality, service, craftsmanship and knowledge.
Over the years, Great Dane has built a number of strong partnerships with celebrated Scandinavian manufacturers and designers.
They have contributed to the awareness of Scandinavian design in Australia, and thrive on sharing this knowledge with customers and collectors via their distinguished, hand-picked ranges.
Personally chosen by founder Anton Assaad, this hands-on approach to buying affords integrity, maintains authenticity and ensures that their customers have access to the very finest furniture and lighting ranges available.
Comprising Australia’s most extensive range of classic and contemporary Scandinavian pieces, the breadth and depth of Great Dane’s showroom collections is only surpassed by their sheer quality and exclusivity.
Satara
Satara Australia supplies the Australian retail, designer and commercial markets with a range of high quality, hand crafted, indoor and outdoor furniture and homewares, inspired by natural materials and global trends.
Satara’s collections are designed to enable their customer’s appreciation and enjoyment of the great Australian lifestyle.
Photo Gallery
Click on a thumbnail image to enlarge
Design © 2020 The Grand. In Design International. All Rights Reserved. | Images © 2020 Isamu Sawa. All Rights Reserved.
Get the Builtworks Letter
In every edition of the Builtworks Letter, you’ll get the behind-the-scenes backstory as to how buildings are designed, built, and brought to life.
You’ll hear compelling stories, learn surprising ideas, meet engaging characters, and discover unique voices.















