I
n 2016, Wesley College’s Glen Waverley campus lost a series of homerooms for Year 5 and 6 students to an electrical fire.
Rather than replace the buildings and their function, the school asked Cox Architecture to conceptualise a much more ambitious scheme, one that would become a panacea to a broad range of issues.
With the brief evolving rapidly, as the school assessed its priorities, Cox Architecture started with the campus master planning potential and by posing to the school a much more fundamental shift.
Rather than re-house Year 5 and 6 students in the same central location, Cox asked whether the location better suited a new centre for Year 9 students.
This shift identified a conceptual arc across the campus, beginning with the Junior School in the southwest corner and culminating with the Senior School in the northeast.
By locating Year 9 as a separate year in the heart of the campus and the centre of that arc the Cox design team also recognised Wesley’s pedagogic approach to Year 9, with students being somewhat transient, spending a term living in a rural campus and honing their life skills before they leap into Senior School and its demands.
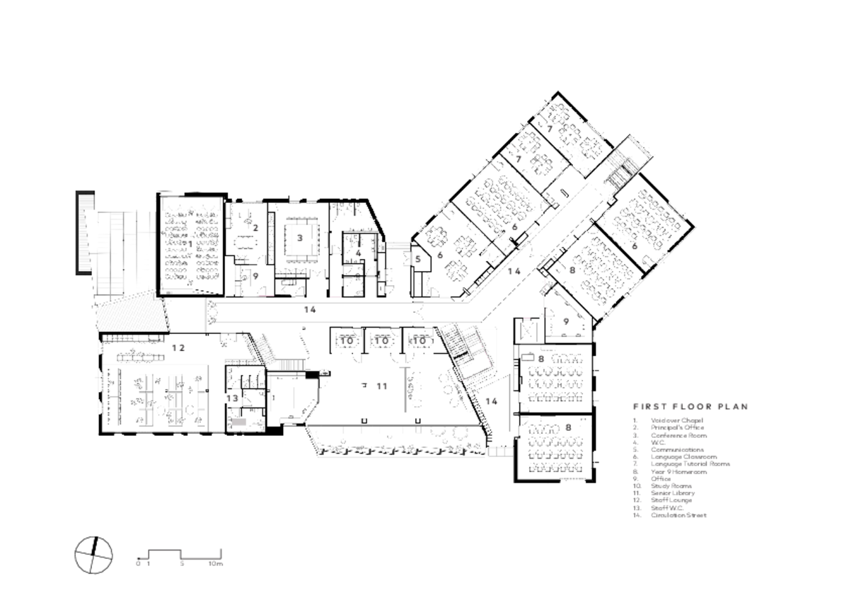
Around the Year 9 Homerooms, the building grew rapidly, with the school committing to building a Chapel (something mooted since the campus was first conceived), a single campus library, a much-expanded Languages and LOTE centre, a collaborative learning theatre as well as the new front reception and staff lounge for the campus.
The architectural response to this divergent roster was to conceptualise the building as a series of destinations along the main street.
This street was given a civic quality with a terrazzo stone paving and at the building’s heart, a large open stair takes students up and down all levels.
This organisational device ensured the building was both easily navigated and that the large numbers of students entering and exiting the building together would be managed.
From this, Cox Architecture worked with the school to massage the plan, locating the library to the south to benefit from the even south light and face a newly created landscaped courtyard, the chapel was placed front and centre, its height accentuated not only as an ecclesiastic gesture but also as a civic marker of the new building as the front door of the campus.
Having completed a number of projects on the campus, the ubiquitous presence of raw concrete masonry was understood.
This project both challenged this palette with its warm and subtly variegated bricks, whilst also recognising that anything other than a solid masonry building would appear thin and flimsy in its context.
Cox Architecture worked with the services and ESD team to deliver a project that re-uses a large percentage of its roof water, generates 100kw of solar electricity and has finely tuned the envelope with fresh-air systems to classrooms, highly insulated walls, and roofs as well as provide shade to windows where needed most.
Project Details
Project Size – 4,300 m2
Project Budget – $20,000,000
Completion Date – 2019
Project Team
Architecture
Cox Architecture
COX is a design-focused contemporary architectural practice with studios located in every major Australian city and a history spanning 60 years.
The key to their ethos is supporting the public life of our cities. Cox does this by ensuring each project makes positive contributions to its public realm – giving more than it takes.
Photography
Fi Storey
With an eye for design and attention to lighting and detail, Fiona Storey is a professional Interiors Photographer who has dedicated their career to documenting structures through clean and creative photography.
Photo Gallery
Click on a thumbnail image to enlarge.
Design © 2021 Cox Architecture. All Rights Reserved.| Images © 2021 Fi Storey. All Rights Reserved.
The Builtworks Quest
At Builtworks, we’re on a multi-year quest to document, showcase, and spotlight the best of Australia’s built environment.
That’s why we’re creating this comprehensive online archive and educational resource that showcases a diverse and eclectic range of project types and scales.
Together with showcasing older exemplars of enduring merit, we spotlight and celebrate the very best new and recent additions to Australia’s built environment.















